Casa Individuala Parter in Constructie, Popesti | Finalizare 2026

€ 259.000

Popeşti, Judeţul Cluj

Nr. camere:
4
Suprafață utilă:
147,77 mp
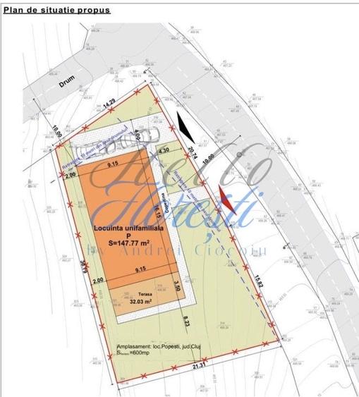
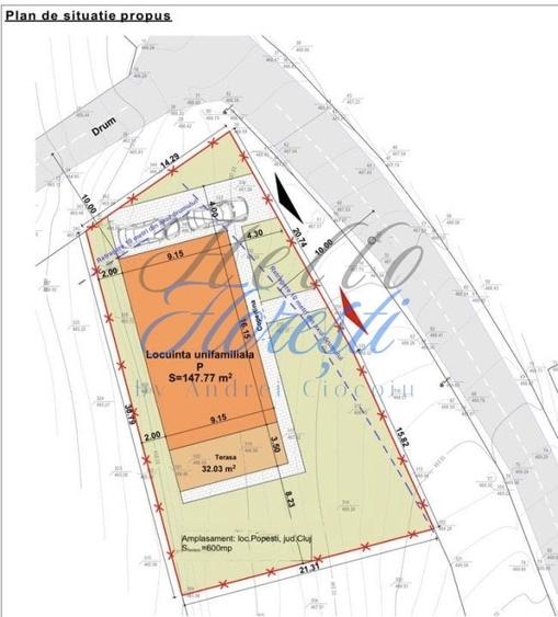
Suprafață teren:
600 mp

Descriere

Raportează anunț

Casa Individuala Parter in Constructie, Popesti | Finalizare 2026

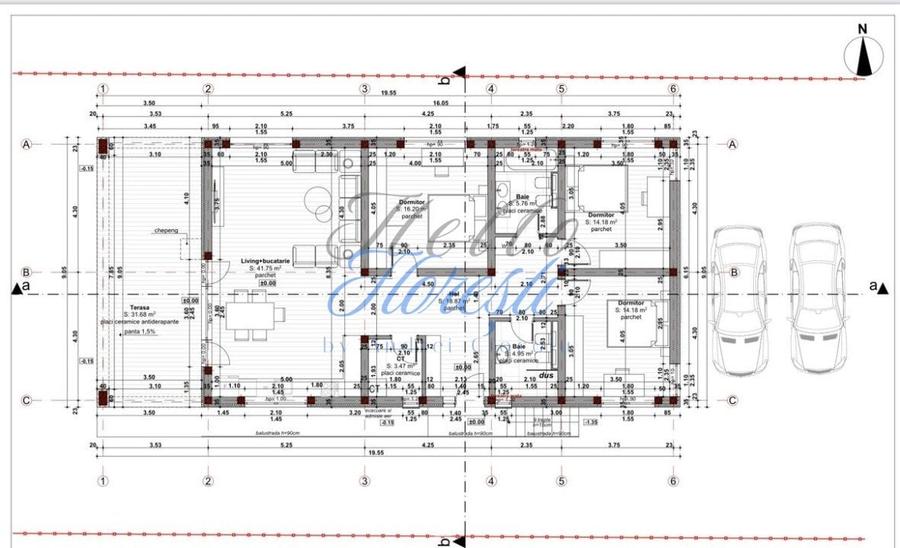
Va propunem spre vanzare o casa individuala tip parter, aflata in constructie, cu termen de finalizare in 2026. Casa este situata intr-o zona linistita din Popesti, fiind ideala pentru cei care isi doresc un camin modern, spatios si confortabil. Locuinta dispune de o suprafata utila de 147,77 mp si o terasa de 32,03 mp, perfecta pentru momente de relaxare in aer liber. Terenul aferent proprietatii are 600 mp, oferind suficient spatiu pentru curte si gradina. Compartimentare inteligenta: Hol de intrare cu acces spre livingul generos si bucataria deschisa In stanga se afla accesul spre un dormitor In dreapta sunt pozitionate doua dormitoare si doua bai Casa beneficiaza de doua locuri de parcare in curte si este proiectata pentru confort maxim, avand spatii luminoase si bine optimizate. Locatie: Popesti Termen de finalizare: 2026 Contacteaza echipa pentru mai multe detalii sau pentru a programa o vizionare! ID Extern: P2332
Citește mai mult Citește mai puțin
ID anunț: 1053573 Actualizat în: 04 Septembrie 2025
Nr. camere: 4
Suprafață utilă: 147,77 mp
Suprafață utilă totală: 147,77 mp
Nr. băi: 2
Suprafață teren: 600 mp
Front stradal: 25 m
An construcție: 2026

Istoric preț

Utilități

Utilități
Apă Gaze Canalizare

Proprietăți similare

Casă individuală cu 5 camere cu Canalizare în Popești
€ 275.000
Județul Cluj, Popești
5 camere
120 mp
583 mp teren
Casă individuală cu 4 camere cu Canalizare în Popești
€ 259.000
Județul Cluj, Popești
4 camere
120 mp
600 mp teren
Casă individuală cu 4 camere cu Teren 500 Mp în Popești
€ 260.000
Județul Cluj, Popești
4 camere
160 mp
500 mp teren
Casă individuală cu 5 camere cu Canalizare în Popești
€ 280.000
Județul Cluj, Popești
5 camere
155 mp
600 mp teren
Casă individuală cu 5 camere cu Canalizare în Popești
€ 275.000
Județul Cluj, Popești
5 camere
170 mp
600 mp teren
Casă individuală cu 3 camere cu Canalizare în Popești
€ 270.000
Județul Cluj, Popești
3 camere
105 mp
900 mp teren
Casă individuală cu 4 camere cu Teren 600 Mp în Popești
€ 258.999
Județul Cluj, Popești
4 camere
120 mp
600 mp teren
Casă individuală cu 4 camere cu Canalizare în Popești
€ 260.000
Județul Cluj, Popești
4 camere
120 mp
600 mp teren
Casă individuală cu 2 camere cu Canalizare în Central
€ 280.000
Cluj-Napoca, Central
2 camere
60 mp
100 mp teren

Abonează-te la newsletter să fii primul care primește cele mai noi recomandări de proprietăți și sfaturi de la experți.