În acest moment, nu se primesc cereri pentru această proprietate. Vă sugerăm să verificați alte oferte similare disponibile.
Vezi anunțuri
Mai mult de un an
Casa / Vila spatioasa P+1+M de vanzare zona Padurea Cernica
218.000 €
Pantelimon, Judeţul Ilfov
Descriere casă
Sesizează o problemă
Se oferă spre vânzare o vilă situată într-o zonă liniștită și accesibilă, aproape de București, în Pantelimon – Lângă Pădurea Cernica, pe strada Mierlei. Proprietatea oferă un spațiu generos, perfect pentru o familie numeroasă sau pentru investiție.
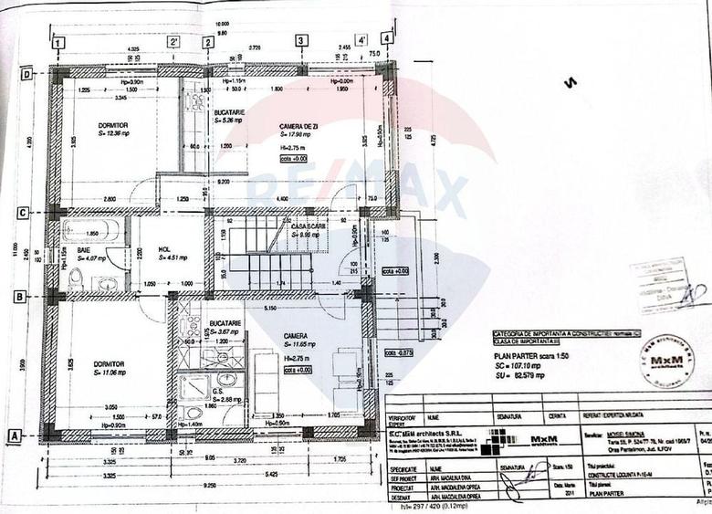
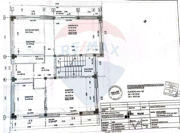
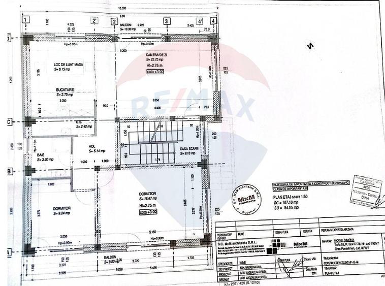
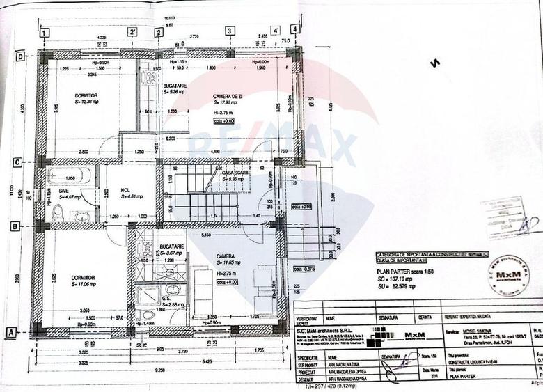
Suprafață totală: 320 mp
Amprentă la sol: 107 mp
Compartimentare propusă conform schite
Vila este semifinisată.
Parter: spații locuibile cu centrală proprie și calorifere instalate
Etaj + Mansardă (la gri)
10 camere (7 dormitoare)
4 băi
2 bucătării
Utilități disponibile: Curent și Gaz, Puț hidrofor pentru apa si Fosa.
Zonă liniștită și în dezvoltare, cu acces facil către București
O oportunitate excelentă de a personaliza locuința după propriile preferințe!
Performanta energetica
* Poziționat in clasa energetica „B”
* Consum anual specific de energie: 245.98 kWh/m2an
* Indice de emisii echivalent CO2: 51.55 kgCO2/m2an
* Consum anual specific de energie din surse regenerabile: 2 kWh/m2an
Vă așteptăm cu drag la colaborare!
Contactează-ne pentru mai multe detalii și vizionare!
Citește mai mult
Citește mai puțin
Nemobilat
Calorifere
Centrală proprie
Detalii casă
ID anunț: 319454
Actualizat în: 10 Februarie 2026
Nr. camere:
9
Suprafață utilă:
250 mp
Suprafață utilă totală:
250 mp
Nr. băi:
4
Suprafață teren:
400 mp
Front stradal:
21 m
An construcție:
2023
Regim înălțime:
P+1E
Istoric preț
Facilități
Pereți
Faianță
Vopsea lavabilă
Podele
Gresie
Rulouri/Obloane
Lemn
PVC
Ușă intrare
Metal
Lemn
PVC
Uși interior
Lemn
PVC
Izolații termice
Exterior
Ferestre cu geam termopan
Lemn
PVC
Contorizare
Apometre
Contor gaz
Bucătărie
Parțial utilată
Mobilat
Nemobilat
Electrocasnice
Hotă
Facilități imobil
Acoperiș
Sistem încălzire
Calorifere
Centrală proprie
Amenajare străzi
Iluminat stradal
Facilități
Balcon
Puncte de interes
Recreere
Casa Cernica
Restaurante
aprox.
1174
m
Restaurant Porumbita
Restaurante
aprox.
1260
m
Cernica
Restaurante
aprox.
1350
m
Extreme Park Cernica
Recreere
aprox.
1379
m
Abonează-te la newsletter să fii primul care primește cele mai noi recomandări de proprietăți și sfaturi de la experți.
Căutări similare
- Case individuale de vânzare în Pantelimon
- Case individuale de vânzare în Berceni
- Case individuale de vânzare în Corbeanca
- Case individuale de vânzare în Tunari
- Case individuale de vânzare în Otopeni
- Case individuale de vânzare în Voluntari
- Case individuale de vânzare în Bragadiru
- Case individuale de vânzare în Domnești
- Case individuale de vânzare în Balotești
- Case individuale de vânzare în Snagov
- Case individuale de vânzare în Popești-Leordeni
- Case individuale de vânzare în Mogoșoaia