Vila 4 Camere Pantelimon I Premium I moderna luminoasa I COMISION 0%

243.000 €

Pantelimon, Judeţul Ilfov

Nr. camere:
4
Suprafață utilă:
130 mp
Suprafață teren:
368 mp
Nr. niveluri:
1

Descriere casă

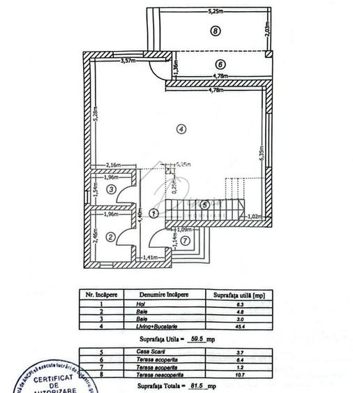
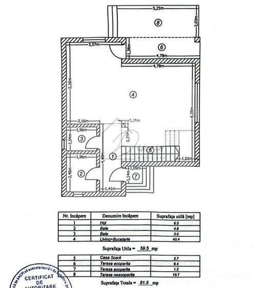
Va ofer spre vanzare vila individuala cu 4 camere, 4 bai si 3 dormitoare, in Pantelimon, pe o strada adiacenta str. Rascoala din 1907 - strada asfaltata, intr-o zona noua, moderna, selecta, linistita, locuita, intr-o locatie foarte aproape de Bucuresti, statia de metrou Pantelimon, intr-o comunitate tanara si moderna. Prețul este de 243.000 EUR (nu se adauga TVA)! Se accepta credit! Ultima Vila!! finalizare Aprilir 2026! Vilele sunt predate la cheie, complet finisate, cu băile mobilate si utilate! COMISION agentie = 0% Vila este construita P+1E+Pod, cu suprafata utila de 130 mp, pe un teren de 368 mp, cu o compartimentare moderna si eficienta a spatiilor, dupa cum urmeaza: PARTER: suprafata utila de 60 mp plus 3 terase, cu suprafata totala de 82 mp - hol spatios de 6,3 mp - living spatios si luminos de 45,4 mp, cu iesire catre terasa acoperita si terasa neacoperita - bucătărie open space - baie de 5 mp, cu fereastra - ideal pentru aerisire naturala - baie de 3 mp, cu fereastra - ideal pentru aerisire naturala - terasa de 17 mp + terasa intrare de 1,2 mp ETAJ: suprafata utila de 70 mp inclusiv balcon de 3 mp - 1 dormitor matrimonial de 15 mp, cu baie proprie cu cada si geam - 2 dormitoare secundare de 14 mp fiecare - 1 baie secundara de 5 mp, cu fereastra - ideal pentru aerisire naturala - balcon de 3 mp POD: spatiu depozitare de 40 mp; izolat cu vata și folie Al, a cu inaltimea la coama de cca 2 metri TEREN: 368 mp CURTE: amenajata cu locuri de parcare, alei din beton amprentat, gradina Dotari si finisaje premium: - finisaje: travertin, parchet - geamuri Salamander tripan stejar cu plase pt insecte - instalatie electrica interioară: conductor FY 1,5 si FY 2,5 , doze, prize, intrerupatoare modulare - centrala individuală in condensație Immergas 32kw, si calorifere din oțel Romstal (sistem cu distribuitoare) - corpuri iluminat, bai utilate Romstal - poarta mare este prevăzută cu sistem automatizare iar cea pietonală cu interfon - sistem de supraveghere video Detalii constructie, dotari si finisaje: materiale premium - constructie BCA cu structura beton armat; sapa mecanizată - pereți exterior : placați cu polistiren EPS 100 + tencuiala decorativa si travertin - pereti interior : tencuiala + 3 straturi de glet si vopsiti in alb mat - acoperis cu țigla metalică Bilka cu sistem pluvial complet pana la nivelul solului - bransata la toate utilitatile publice: apa, canalizare, gaz, curent trifazic 380 Facilitati locatie: - 150 m pana la magazinele Selgros, Lidl si Mega Image - 1 km pana la nodul rutier A0 - Sosea Centura - noua Gradinita din strada Curcubeului este situată la cca 5- 10 min de mers pe jos - metrou Pantelimon la 4 km Va invit sa programati o vizionare! Alina Dinoiu Pentru mai multe detalii, va astept aici
Citește mai mult Citește mai puțin
Nemobilat Grădină Curte Calorifere Centrală proprie

Detalii casă

ID anunț: 1563699 Actualizat în: 06 Februarie 2026
Nr. camere: 4
Suprafață utilă: 130 mp
Suprafață utilă totală: 130 mp
Nr. băi: 4
Suprafață teren: 368 mp
Front stradal: 14.5 m
An construcție: 2025
Regim înălțime: P+1E

Istoric preț

Facilități

Pereți
Faianță Vopsea lavabilă
Podele
Parchet Gresie
Ușă intrare
Parchet Metal Lemn PVC
Uși interior
Lemn PVC
Izolații termice
Exterior Interior
Ferestre cu geam termopan
Lemn PVC
Contorizare
Apometre Contor căldură Contor gaz
Mobilat
Nemobilat
Diverse
Scară interioară
Alte spații utile
WC Serviciu
Dotări imobil
Curte Grădină Interfon
Utilități
Curent Apă Canalizare Gaze Supraveghere video
Sistem încălzire
Centrală proprie Calorifere
Amenajare străzi
Asfaltate Pietruite Mijloace de transport în comun
Servicii imobil
Supraveghere video

Puncte de interes

Recreere
shopping
Selgros Pantelimon
Supermarket/Mall aprox. 1001 m
restaurants
Zigu
Restaurante aprox. 1171 m
shopping
Mega Image Pantelimon
Supermarket/Mall aprox. 1869 m

Proprietăți similare

Casă individuală cu 6 camere cu Teren 249 Mp în Central
239.000 €
Județul Ilfov, Pantelimon
6 camere
208 mp
249 mp teren
Casă individuală cu 4 camere cu Canalizare în Central
243.000 €
Județul Ilfov, Pantelimon
4 camere
152 mp
368 mp teren
Casă individuală cu 7 camere cu Canalizare în Central
224.900 €
Județul Ilfov, Pantelimon
7 camere
236 mp
290 mp teren
Casă individuală cu 6 camere cu Canalizare în Central
260.000 €
Județul Ilfov, Pantelimon
6 camere
247 mp
297 mp teren
Casă individuală cu 4 camere cu Teren 300 Mp în Central
249.000 €
Județul Ilfov, Pantelimon
4 camere
141 mp
300 mp teren
Casă individuală cu 4 camere cu Teren 300 Mp în Tunari
245.000 €
Județul Ilfov, Tunari
4 camere
180 mp
300 mp teren
Casă individuală cu 5 camere cu Canalizare în Tunari
250.000 €
Județul Ilfov, Tunari
5 camere
160 mp
300 mp teren
Casă individuală cu 4 camere cu Canalizare în Central
250.000 €
Județul Ilfov, Bragadiru
4 camere
141 mp
500 mp teren
Casă individuală cu 4 camere cu Canalizare în Domnești
240.000 € + TVA
Județul Ilfov, Domnești
4 camere
170,38 mp
401 mp teren

Abonează-te la newsletter să fii primul care primește cele mai noi recomandări de proprietăți și sfaturi de la experți.