 
            
                            
                    
            
                4 luni în urmă            
        
                    
                
                                    
                
                    5
                
            
            - Agenție
Alex Opris
                
                    169.990 €
                    
                                    
            
        
            Actualizat pe: 29 Oct 2025
    
- 
                                                                      La Paul aprox. 566 m
- 
                                                                      Valery 3 (en) aprox. 1538 m
Casa individuala - zona buna - suprafete generoase
                
                    169.990 €
                    
                                    
            
        
            Moșnița Nouă, Județul Timiș
Descriere
        
        Raportează anunț
    
    
    
    
        
        
            
            
            
                
            
                                    
                            
        
        
    
                                        Sesizează o problemă
Casa individuala - zona buna - suprafete generoase
Casa individuala - zona buna - suprafete generoase
                                            Agentia imobiliara Primum are placerea de a va oferi spre vanzare o casa individuala intr-o zona foarte buna din Mosnita Noua ! 
Casa se vinde la stadiul actual ca in poze , toate utilitatile sunt la poarta ! 
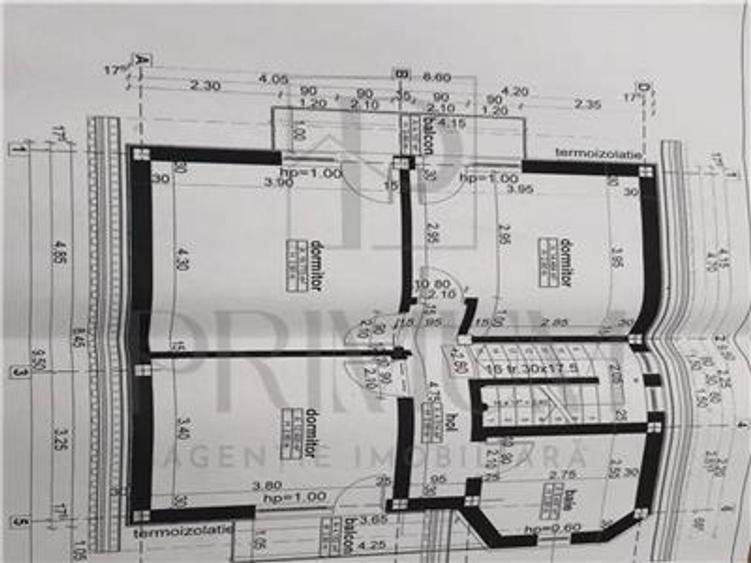
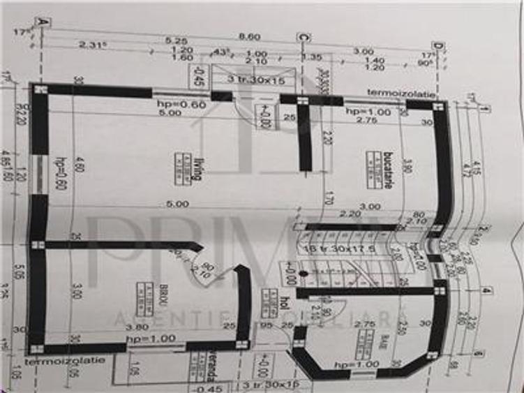
Compartimentare PARTER:1hol, 1baie,1bucatarie, 1living,1 birou cu acces la veranda.
Compartimentare ETAJ : 3 dormitoare(fiecare are ieșire la balcon), 1 baie, 2 balcoane.
Mai multe detalii la telefon !  
                                        
                                        
                                            
                                                Citește mai mult
                                                Citește mai puțin
                                            
                                        
                                    
            
                ID anunț: 845069
            
                            
                    Actualizat în: 29 Octombrie 2025
                
                    
        
                            
                                Nr. camere:
                            
                            
                                4
                            
                        
                                                                                
                            
                                Suprafață utilă:
                            
                            
                                130 mp
                            
                        
                                                                                
                            
                                Suprafață utilă totală:
                            
                            
                                130 mp
                            
                        
                                                                                
                            
                                Nr. băi:
                            
                            
                                2
                            
                        
                                                                                
                            
                                Suprafață teren:
                            
                            
                                675 mp
                            
                        
                                                                                
                            
                                Front stradal:
                            
                            
                                20 m
                            
                        
                                                                                
                            
                                An construcție:
                            
                            
                                2024
                            
                        
                                    
                            Utilități
                                        
                                        
                                            Utilități
                                        
                                        
                                        
                                                                    
                                    
                                    
                                                                                            
                                                    Apă
                                                
                                                                                            
                                                    Gaze
                                                
                                                                                    
                                    
                                        
                                        
                                            Facilități
                                        
                                        
                                        
                                                            
                                                                                            
                                                    Balcon
                                                
                                                                                    
                                    Proprietăți similare
Abonează-te la newsletter să fii primul care primește cele mai noi recomandări de proprietăți și sfaturi de la experți.
Căutări similare
- Case individuale de vânzare în Moșnița Nouă
- Apartamente de vânzare în Cluj-Napoca
- Apartamente de vânzare în Timișoara
- Apartamente de închiriat în Timișoara
- Apartamente de vânzare în Cluj-Napoca
- Apartamente de vânzare în Timișoara
- Garsoniere de închiriat în Timișoara
- Apartamente de închiriat în Cluj-Napoca
- Apartamente de vânzare în Iași
- Apartamente de vânzare în Brașov
- Apartamente de vânzare în Florești
- Garsoniere de vânzare în Timișoara
 
                            
                         
                            
                         
                            
                         
                            
                         
                            
                         
                            
                            
                                             
                            
                            
                                             
                            
                            
                                             
                            
                            
                                             
                            
                            
                                             
             
             
             
             
             
             
             
            