De vanzare casa in Lugoj pe strada INSULEI

310.000 €

Lugoj, Judeţul Timiş

Nr. camere:
7
Suprafață utilă:
446,5 mp
Suprafață teren:
179 mp

Descriere

De vanzare casa in Lugoj pe strada INSULEI

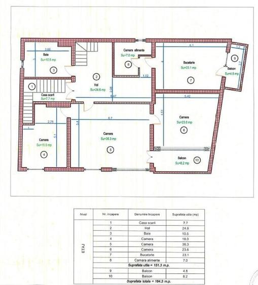
De vanzare casa in Lugoj pe strada Insulei. Va propunem spre vanzare o casa cu destinatie mixta de locuinta si spatiu comercial, construita dupa tipologie Casa P+1E+M cu spatii comerciale la parter, an constructie 2006. Suprafata desfasurata este de 446.5 mp structurata astfel: PARTER: 157.6 mp - Hol+ casa scarii; -Magazie 1; -Magazie 2; -Magazie 3: - Baie ; -Spatiu Comercial; ETAJ: 151.3 mp -Camera 1; - Camera 2; - Camera 3; - Baie ; -Camara alimente; -Bucatarie; -Hol; -Casa scarii; MANSARDA: 137.6 mp -Camera 1; - Camera 2; - Camera 3; -Camera 4; - Baie ; -Hol; -Casa scarii; Casa este construita din blocuri ceramice, are ferestre din tamplarie PVC cu geam termopan . Incalzirea se realizeaza cu ajutorul centralei termice proprii pe gaz si suplimentar exista un cazan pe lemne . Este libera de sarcini si se poate vinde imediat. Se vinde complet mobilata si utilata conform fotografiilor iar pretul este de 310.000 EURO negociabil iar pentru mai multe detalii va rugam sa ne contactati. Aceasta proprietate este reprezentata exclusiv de catre CEImobiliare, si nu percepem niciun comision din partea cumparatorilor!!! Va multumim
Citește mai mult Citește mai puțin
ID anunț: 76761 Actualizat în: 17 Martie 2025
Nr. camere: 7
Suprafață utilă: 446,5 mp
Suprafață utilă totală: 446,5 mp
Suprafață teren: 179 mp
An construcție: 2006

Istoric preț

Utilități

Utilități
Gaze Climă Canalizare Frigider Apă

Proprietăți similare

Casă individuală cu 5 camere cu Teren 515 Mp în Central
333.000 €
Județul Timiș, Lugoj
5 camere
492 mp
515 mp teren
Casă individuală cu 6 camere cu Canalizare în Giroc
279.900 €
Județul Timiș, Giroc
6 camere
175 mp
226 mp teren
Casă individuală cu 6 camere cu Canalizare în Moșnița Veche
325.000 €
Județul Timiș, Moșnița Veche
6 camere
149,29 mp
600 mp teren
Casă individuală cu 7 camere cu Canalizare în Moșnița Veche
290.000 €
Județul Timiș, Moșnița Veche
7 camere
220 mp
500 mp teren
Casă individuală cu 4 camere cu Canalizare în Moșnița Nouă
325.000 €
Județul Timiș, Moșnița Nouă
4 camere
120 mp
514 mp teren
Casă individuală cu 3 camere cu Canalizare în Lidia
289.900 €
Timișoara, Lidia
3 camere
135 mp
327 mp teren
Casă individuală cu 5 camere cu Teren 370 Mp în Giroc
298.000 €
Județul Timiș, Giroc
5 camere
160 mp
370 mp teren
Casă individuală cu 5 camere cu Canalizare în Braytim
279.990 €
Timișoara, Braytim
5 camere
175 mp
226 mp teren
Casă individuală cu 5 camere cu Canalizare în Moșnița Nouă
289.990 €
Județul Timiș, Moșnița Nouă
5 camere
248 mp
617 mp teren

Abonează-te la newsletter să fii primul care primește cele mai noi recomandări de proprietăți și sfaturi de la experți.