Casă Single 4C Valea Lupului-Iași

159.000 €

Popas Păcurari, Iaşi

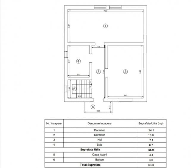
Nr. camere:
4
Suprafață utilă:
120 mp
Suprafață teren:
380 mp
Nr. niveluri:
1

Descriere casă

Vă propunem spre vânzare o casă deosebită, situată într-o zonă liniștită, doar de case, la prețul de doar 159,000 EURO Imobilul dispune de o suprafață generoasă de 120mp2, dar și de o curte pe măsură Compartimentare avantajoasă, modernă dar și practică Bucătărie separată, 3 dormitoare generoase, 2 băi, living luminos Structură rezistentă, finisaje premium, gata de mutare Zonă foarte bună, cu acces facil către principalele puncte de interes precum Mall Moldova, stații de autobuz, grădinițe Priveliște superbă, ultima casă finalizată de acest tip De asemenea, mai avem variante cu finalizare în luna mai, cu teren de 650mp2, la alte prețuri Pentru mai multe detalii, vizionări sau alte variante vă așteptăm cu drag la numărul de telefon afișat
Citește mai mult Citește mai puțin
Nemobilat Curte Centrală proprie Bine întreținut (Bună)

Detalii casă

ID anunț: 3268140 Actualizat în: 31 Martie 2026
Nr. camere: 4
Suprafață utilă: 120 mp
Suprafață utilă totală: 120 mp
Nr. băi: 2
Suprafață teren: 380 mp
An construcție: 2025
Regim înălțime: P+1E

Istoric preț

Facilități

Contorizare
Apometre Contor căldură Contor gaz
Mobilat
Nemobilat
Facilități imobil
Curte
Utilități
Curent Apă Canalizare Gaze
Sistem încălzire
Centrală proprie
Internet
Fibră optică
Podele
Parchet Gresie
Stare interior
Stare bună
Izolații termice
Exterior Interior
Ferestre cu geam termopan
PVC

Puncte de interes

Mijloace transport
transport
Statia "Podu de Fier", linia 18
Mijloace transport aprox. 280 m
transport
Statia "Podu de Fier", linia 1,13
Mijloace transport aprox. 284 m
transport
Podul de Fier
Mijloace transport aprox. 307 m
transport
Statia "Eternitate", linia 18
Mijloace transport aprox. 384 m
Școală
education
GRĂDINIŢA PENILLA, Iaşi
Învățământ aprox. 154 m
education
Colegiul Tehnic Ion Hoban
Învățământ aprox. 374 m
education
Liceul UCECOM ( Spiru Haret ) IASI
Învățământ aprox. 399 m
education
Scoala Speciala Constantin Paunescu
Învățământ aprox. 408 m
Recreere
parks
Parc
Recreere aprox. 65 m
restaurants
Trei Salcami
Restaurante aprox. 128 m
shopping
Hala Centrala
Supermarket/Mall aprox. 858 m
shopping
Carrefour Market (Hala)
Supermarket/Mall aprox. 863 m

Proprietăți similare

Casă individuală cu 4 camere cu Teren 420 Mp în Popas Păcurari
160.000 €
Iași, Popas Păcurari
4 camere
95 mp
420 mp teren
Casă individuală cu 4 camere cu Canalizare în Popas Păcurari
174.900 €
Iași, Popas Păcurari
4 camere
120 mp
600 mp teren
Casă individuală cu 4 camere cu Canalizare în Popas Păcurari
155.000 €
Iași, Popas Păcurari
4 camere
105 mp
263 mp teren
Casă individuală cu 4 camere cu Canalizare în Popas Păcurari
160.000 €
Iași, Popas Păcurari
4 camere
91 mp
430 mp teren
Casă individuală cu 4 camere cu Canalizare în Popas Păcurari
155.000 €
Iași, Popas Păcurari
4 camere
97 mp
387 mp teren
Casă individuală cu 4 camere cu Canalizare în Popas Păcurari
159.000 €
Iași, Popas Păcurari
4 camere
110 mp
250 mp teren
Casă individuală cu 4 camere cu Canalizare în Popas Păcurari
165.000 €
Iași, Popas Păcurari
4 camere
110 mp
400 mp teren
Casă individuală cu 4 camere cu Teren 400 Mp în Popas Păcurari
170.000 €
Iași, Popas Păcurari
4 camere
115 mp
400 mp teren
Casă individuală cu 4 camere cu Canalizare în Popas Păcurari
162.000 €
Iași, Popas Păcurari
4 camere
100 mp
160 mp teren

Abonează-te la newsletter să fii primul care primește cele mai noi recomandări de proprietăți și sfaturi de la experți.