Vila 4 camere, de vanzare, zona Pacurari - Gradina Botanica

658.845 €

Păcurari, Iaşi

Nr. camere:
4
Suprafață utilă:
200 mp
Suprafață teren:
750 mp
Nr. niveluri:
1

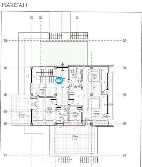
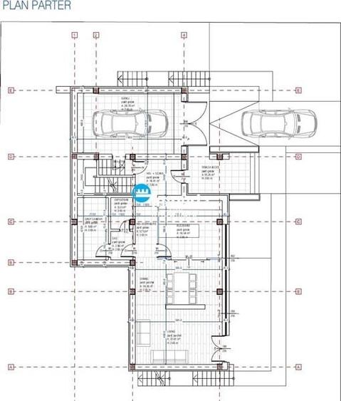
Descriere casă

De vanzare! Vila, proiect deosebit, zona Pacurari - Gradina Botanica Va oferim spre vanzare o vila superba ce va face parte dintr-un ansamblu de 16 unitati locative, avand dublu acces, atat din zona Pacurari cat si din Copou. Proiectate cu regimul de inaltime P+1E, locuintele vor avea aproximativ 200 m.p. utili, fiind dispuse pe terenuri cu suprafete cuprinse intre 670 m.p. si 1175 m.p.. Casele vor fi construite pe cadre de beton cu caramida si vor fi izolate cu vata bazaltica. Acestea vor beneficia din abundenta de lumina naturala ce va patrunde prin suprafetele vitrate generoase, avand geamuri termopan cu tamplaria din PVC si aluminiu (in zonele vitrate). Compartimentarea va fi realizata astfel: living, bucatarie, 3 dormitoare, 3 bai, 2 terase, garaj. Printre specificatiile tehnice mai enumeram: - finisaje de inalta calitate - ce pot fi personalizate de catre client, avand la dispozitie bugete generoase; - tamplarie PVC cu geamuri termopan; - tamplarie aluminiu pe zonele cu pereti vitrati - incalzire in pardoseala - la alegere - rulouri la geamuri - pompa de caldura - instalatie panouri solare de 5 kW - curte amenajata cu gazon - posibilitate piscina Datorita locatiei sale, complexul ofera discretie, securitate si acces facil catre toate zonele de interes ale orasului. Spatiile verzi vor fi amenajate cu rulouri de gazon intercalate intr-un design ingenios cu piatra naturala. Locatia este ideala pentru persoanele care doresc sa locuiasca intr-un cadru natural, deosebit si pentru familiile care vor un mediu atractiv si sigur in care sa-si creasca copiii. Actualmente, ansamblul este in stadiul de proiect iar termenul de finalizare este sfarsitul acestui an. Zona este foarte linistita, la mica distanta fata de mijloacele de transport in comun, market, gradinite, scoli, universitati. Pretul de la care porneste achizitia unei case va fi de 450.000 Euro, TVA inclus. Pretul variaza in functie de suprafata terenului si de facilitatile suplimentare. Pentru mai multe detalii/vizionare imobil luati legatura cu dnul. Tiberiu Rusu, consilierul nostru imobiliar ce promoveaza aceasta oferta, la numarul de telefon . Cod oferta: P110418
Citește mai mult Citește mai puțin
Centrală proprie

Detalii casă

Actualizat în: 12 Mai 2026 ID anunț: 258006
Nr. camere: 4
Suprafață utilă: 200 mp
Suprafață utilă totală: 200 mp
Nr. băi: 3
Suprafață teren: 750 mp
An construcție: 2024 (Proiect)
Regim înălțime: P+1E

Istoric preț

Facilități

Utilități
Curent Apă Canalizare Gaze
Sistem încălzire
Centrală proprie
Internet
Fibră optică

Puncte de interes

Mijloace transport
transport
Statia "Cimitirul Evreiesc", linia 18,20,43,43c,46
Mijloace transport aprox. 843 m
transport
Statia "Peco OMV", linia 18,20,43,43c,46
Mijloace transport aprox. 913 m
transport
Peco OMV
Mijloace transport aprox. 921 m
transport
Peco OMV
Mijloace transport aprox. 948 m
Școală
education
Gradinita cu program normal nr.15
Învățământ aprox. 862 m
education
Gradinita nr 15
Învățământ aprox. 863 m
education
Sc Gen Elena Cuza
Învățământ aprox. 933 m
education
Gradinita Nr. 9
Învățământ aprox. 962 m
Recreere
parks
Teren sportiv
Recreere aprox. 683 m
restaurants
Restaurant Imperium Iasi (en)
Restaurante aprox. 753 m
shopping
Kaufland Pacurari
Supermarket/Mall aprox. 845 m
shopping
Kaufland (Pacurari)
Supermarket/Mall aprox. 847 m

Proprietăți similare

Casă individuală cu 4 camere cu Canalizare în Păcurari
544.500 €
Iași, Păcurari
4 camere
200 mp
600 mp teren
Casă individuală cu 4 camere cu Canalizare în Păcurari
499.000 €
Iași, Păcurari
4 camere
180 mp
600 mp teren
Casă individuală cu 4 camere cu Canalizare în Podul de Fier
498.000 €
Iași, Podul de Fier
4 camere
120 mp
400 mp teren
Casă individuală cu 8 camere cu Teren 1500 Mp în Copou
550.000 €
Iași, Copou
8 camere
405 mp
1.500 mp teren
Casă individuală cu 5 camere cu Canalizare în Valea Adâncă
510.000 €
Iași, Valea Adâncă
5 camere
221 mp
1.378 mp teren
Casă individuală cu 5 camere cu Canalizare în Nicolina
549.000 €
Iași, Nicolina
5 camere
150 mp
625 mp teren
Casă individuală cu 4 camere cu Teren 1700 Mp în Bucium
595.000 €
Iași, Bucium
4 camere
140 mp
1.700 mp teren
Casă individuală cu 7 camere cu Canalizare în Bucium
590.000 €
Iași, Bucium
7 camere
358 mp
1.025 mp teren
Casă individuală cu 5 camere cu Canalizare în Miroslava
592.960 €
Iași, Miroslava
5 camere
177 mp
450 mp teren

Abonează-te la newsletter să fii primul care primește cele mai noi recomandări de proprietăți și sfaturi de la experți.