Manta Roșie, casă nouă în stil cubic, priveliște deosebită spre oraș

298.000 €

Frumoasa, Iaşi

Nr. camere:
5
Suprafață utilă:
180 mp
Suprafață teren:
780 mp
Nr. niveluri:
1

Descriere casă

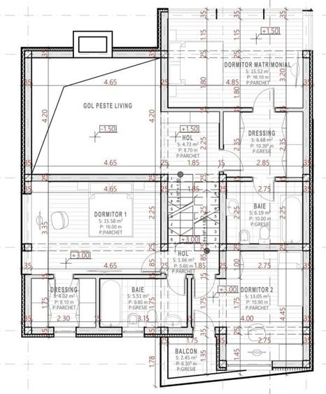
Casa de vanzare in zona Manta Rosie, in spatele fostului magazin Dedeman, constructie noua 2021 pe cadre, din caramida, curte 780mp, proiect modern cu terasa circulabila deasupra si cu un view superb spre oras Imobilul a fost construit in scop personal(nu pentru vanzare), are 5 camere, 3 bai, 180 mp utili, 250mp construiti, iar la realizarea lui s-au folosit doar materiale de o foarte buna calitate: - Structura de rezistenta a casei este din cadre (stalpi si grinzi din beton armat), pereti din caramida de 25; - Incalzire in pardoseala Tece cu 6 zone termostatate; - sape, tencuieli, glet si var, toate in sistem mecanizat; - tamplarie exterioara Veka 82, sticla tripla 48mm; - centrala termica Viessmann Vitodens 100, in condensatie. Locuinta este realizata „pe seminivele” un procedeu arhitectural care presupune ca la fiecare podest intermediar al scarilor (jumatate de nivel) sa regasim spatii si functiuni care relationeaza vizual intre ele si care conduc in ansamblu la cresterea senzatiei de spatialitate, facilitand comunicarea indirecta a tuturor spatiilor interioare. Compartimentare: -Parter: hol, birou, baie, bucatarie cu debara, camera tehnica, living de 28 mp cu iesire pe terasa; -Etaj: 3 dormitoare, din care unul matrimonial cu baie si dressing propriu, inca o baie ce deserveste celelalte 2 dormitoare; -Terasa circulabila cu acces foarte facil de la etaj, posibilitate amenajare spatiu de recreere. Din punctul de vedere al utilitatilor proprietatea este racordata la apa, gaz, curent, fosa ecologica de ultima generatie. Mai multe poze gasiti pe site-ul Viva-imobiliare. Va invitam sa o vizionati!
Citește mai mult Citește mai puțin
Curte Centrală proprie

Detalii casă

ID anunț: 574961 Actualizat în: 25 Februarie 2026
Nr. camere: 5
Suprafață utilă: 180 mp
Suprafață utilă totală: 180 mp
Nr. băi: 3
Suprafață teren: 780 mp
Front stradal: 22 m
An construcție: 2021
Regim înălțime: P+1E

Istoric preț

Facilități

Pereți
Faianță Vopsea lavabilă
Podele
Parchet Gresie
Ușă intrare
Parchet Metal Lemn PVC
Uși interior
Lemn PVC
Izolații termice
Exterior
Ferestre cu geam termopan
Lemn PVC
Contorizare
Apometre Contor gaz
Diverse
Scară interioară
Alte spații utile
Dressing
Facilități imobil
Curte
Utilități
Curent Apă Fosa septică Cablu
Sistem încălzire
Centrală proprie
Internet
Cablu Fibră optică
Amenajare străzi
Iluminat stradal

Puncte de interes

Mijloace transport
transport
Statia "Blocuri Cetatuia", linia 19,27,43,43c,42
Mijloace transport aprox. 693 m
transport
Liceul CUG
Mijloace transport aprox. 718 m
transport
Statia "Liceul CUG", linia 19,27, 43C, 42, 43
Mijloace transport aprox. 763 m
transport
Liceul CUG
Mijloace transport aprox. 766 m
Școală
education
Grupul Scolar "Dumitru Mangeron"
Învățământ aprox. 667 m
education
Scoala "Dimitrie Sturdza" nr. 43
Învățământ aprox. 904 m
education
Sc Gen 43 M Sturdza
Învățământ aprox. 904 m
education
Happy Party
Învățământ aprox. 1121 m
Recreere
shopping
Dedeman (Manta Rosie)
Supermarket/Mall aprox. 539 m
parks
Teren sportiv
Recreere aprox. 580 m
restaurants
Trabant
Restaurante aprox. 880 m
shopping
Zerkat
Supermarket/Mall aprox. 982 m

Proprietăți similare

Casă individuală cu 4 camere cu Canalizare în Popas Păcurari
275.000 €
Iași, Popas Păcurari
4 camere
100 mp
402 mp teren
Casă individuală cu 6 camere cu Teren 1000 Mp în Aeroport
280.000 €
Iași, Aeroport
6 camere
235 mp
1.000 mp teren
Casă individuală cu 4 camere cu Canalizare în Valea Adâncă
285.000 €
Iași, Valea Adâncă
4 camere
201 mp
1.594 mp teren
Casă individuală cu 5 camere cu Canalizare în Bucium
270.000 €
Iași, Bucium
5 camere
164 mp
800 mp teren
Casă individuală cu 4 camere cu Canalizare în Popas Păcurari
285.000 € + TVA
Iași, Popas Păcurari
4 camere
145 mp
644 mp teren
Casă individuală cu 4 camere cu Canalizare în Valea Adâncă
290.000 €
Iași, Valea Adâncă
4 camere
145 mp
410 mp teren
Casă individuală cu 4 camere cu Canalizare în Popas Păcurari
280.000 €
Iași, Popas Păcurari
4 camere
127 mp
400 mp teren
Casă individuală cu 8 camere cu Canalizare în Miroslava
270.000 €
Iași, Miroslava
8 camere
244 mp
500 mp teren
Casă individuală cu 4 camere cu Teren 500 Mp în Miroslava
284.900 €
Iași, Miroslava
4 camere
146 mp
500 mp teren

Abonează-te la newsletter să fii primul care primește cele mai noi recomandări de proprietăți și sfaturi de la experți.