Casă în zona Hărman, cod 8111

€ 176.000

Hărman, Judeţul Braşov

Nr. camere:
4
Suprafață utilă:
124 mp
Suprafață teren:
500 mp
Nr. niveluri:
1

Descriere

Raportează anunț

Casă în zona Hărman, cod 8111

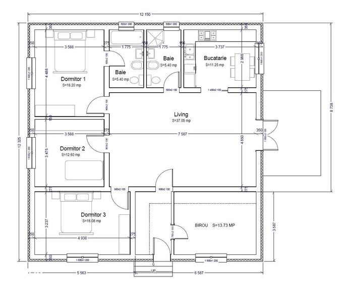
Grenadine Imobiliare vă oferă spre vânzare o casă individuală pe un singur nivel, situată în comuna Hărman, str. Alexandru cel Bun, la doar 8 km de Brașov. Proprietatea este amplasată pe un teren generos de 508 mp, într-un cartier nou, în plină dezvoltare. ? Suprafață construită: 167 mp (din care 14 mp terasă acoperită) ? Suprafață utilă: 124 mp ? Orientare optimă pentru lumină naturală ? Acces pe drum pietruit, la doar 150 m de șoseaua asfaltată Localizare & Facilități ✅ 8 km până în Brașov ✅ 3.3 km până la LIDL ✅ 11 km până în Centrul Civic Brașov ✅ Zonă liniștită, cu case construite și locuite Detalii construcție & dotări Construcție din cărămidă Wienberger Porotherm cu cadre de beton Încălzire în pardoseală cu centrală termică pe gaz Living spațios: 37 mp Bucătărie open-space: 11.25 mp (posibilitate de închidere la cerere) 2 băi – fiecare de 5.4 mp 3 dormitoare: 16.2 mp, 12.6 mp și 16.4 mp Birou: 13.73 mp Vestibul: 5.85 mp Pod cu scară retractabilă, 2.5 m înălțime, pe întreaga suprafață a casei Finisaje incluse – Casă predată „La cheie” ? Gresie, faianță, parchet, uși interioare – la alegere, în limita bugetului stabilit ? Tâmplărie PVC Salamander – 5 camere, 3 foi de sticlă ? Încălzire în pardoseală inclusiv în băi ? Gard cu stâlpi de beton în față și lateral, cu stâlpi metalici și lemn Utilități disponibile: Gaz, Apă, Canalizare, Curent electric, Fibra optică Modalități de plată & livrare Construcția se poate realiza în 2 etape: La roșu și apoi La cheie, în funcție de posibilitățile clientului Termen de predare: 7-12 luni de la semnarea contractului Plată eșalonată disponibilă Acceptăm credit – cu avans minim 50% (se adaugă 5000€ la prețul final) Disponibile și alte modele de case, cu 2, 3 sau 4 dormitoare și 1 sau 2 băi, adaptate nevoilor dumneavoastră! Pentru mai multe detalii și vizionări, contactați-ne! Cod intern: 8111
Citește mai mult Citește mai puțin
ID anunț: 164864 Actualizat în: 16 Decembrie 2025
Nr. camere: 4
Suprafață utilă: 124 mp
Suprafață utilă totală: 124 mp
Suprafață teren: 500 mp
An construcție: 2025
Regim înălțime: P+1E

Istoric preț

Utilități

Utilități
Curent Apă Canalizare

Proprietăți similare

Casă individuală cu 4 camere cu Canalizare în Hărman
€ 165.000
Județul Brașov, Hărman
4 camere
90 mp
508 mp teren
Casă individuală cu 4 camere cu Teren 600 Mp în Hărman
€ 159.000
Județul Brașov, Hărman
4 camere
12.000 mp
600 mp teren
Casă individuală cu 4 camere cu Canalizare în Hărman
€ 190.000 + TVA
Județul Brașov, Hărman
4 camere
106 mp
640 mp teren
Casă individuală cu 3 camere cu Canalizare în Hărman
€ 187.000 + TVA
Județul Brașov, Hărman
3 camere
85 mp
467 mp teren
Casă individuală cu 4 camere cu Canalizare în Hărman
€ 189.000
Județul Brașov, Hărman
4 camere
122 mp
400 mp teren
Casă individuală cu 3 camere cu Canalizare în Hărman
€ 175.000
Județul Brașov, Hărman
3 camere
86 mp
330 mp teren
Casă individuală cu 4 camere cu Canalizare în Hărman
€ 159.000
Județul Brașov, Hărman
4 camere
102 mp
600 mp teren
Casă individuală cu 3 camere cu Canalizare în Hărman
€ 170.000
Județul Brașov, Hărman
3 camere
90 mp
330 mp teren
Casă individuală cu 3 camere cu Canalizare în Hărman
€ 177.000 + TVA
Județul Brașov, Hărman
3 camere
87 mp
430 mp teren

Abonează-te la newsletter să fii primul care primește cele mai noi recomandări de proprietăți și sfaturi de la experți.