Casa parter la gri 155 mp, teren 1.007 mp – Fundulea, 25 min de Bucuresti

120.000 €

Fundulea, Judeţul Călăraşi

Nr. camere:
4
Suprafață utilă:
130 mp
Suprafață teren:
1.007 mp

Descriere casă

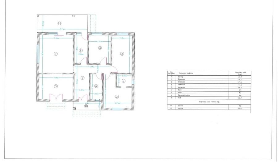
Va propunem spre vanzare o casa parter, edificata pe un teren intravilan generos de 1.007 mp, cu deschidere de 22 metri la strada Cimbrului, situata intr-o zona rezidentiala linistita a orasului Fundulea. Imobilul se remarca printr-o constructie solida si o compartimentare functionala, reprezentand o baza excelenta pentru personalizare si amenajare conform gusturilor viitorului proprietar. Accesul se realizeaza pe drum asfaltat pana in apropierea proprietatii, ultimii aproximativ 60 metri fiind pe drum pietruit, iar latimea strazii este de 9 metri, facilitand accesul auto in conditii optime. Proprietatea beneficiaza de o pozitionare avantajoasa, la aproximativ 25 de minute de Bucuresti, cu acces rapid atat pe DN3, cat si pe Autostrada A2. Detalii proprietate: Suprafata teren: 1.007 mp Deschidere la strada: 22 ml Suprafata construita la sol: 155 mp Suprafata utila: 130 mp Regim de inaltime: Parter Terase: 5,2 mp + 19,9 mp Compartimentare: Living: 28,9 mp 3 dormitoare: 16,7 mp / 17,1 mp / 13,9 mp Bucatarie: 18,8 mp 2 bai: 6,7 mp si 4,3 mp Camera tehnica: 8,4 mp Hol: 15,7 mp Caracteristici constructive: Zidarie din BCA Acoperis Wetterbest Tamplarie Salamander, geam tripan Izolatie exterioara cu polistiren expandat grafitat de 10 cm Instalatiile electrice si sanitare trase pe pozitie Placa de beton intre parter si pod Pod cu spatiu de depozitare, accesibil din lateralul locuintei Utilitati: Curent electric – bransat Fantana proprie Gaze, apa curenta si canalizare – in apropiere, la aproximativ 60 m Avantaje: • Teren generos, imprejmuit • Deschidere mare la strada • Zona linistita, exclusiv rezidentiala • Acces rapid catre Bucuresti • Ideala pentru locuire permanenta sau investitie Pret: 120.000 euro – negociabil 📞
Citește mai mult Citește mai puțin

Detalii casă

Actualizat în: 12 Mai 2026 ID anunț: 1215293
Nr. camere: 4
Suprafață utilă: 130 mp
Suprafață utilă totală: 130 mp
Nr. băi: 2
Suprafață teren: 1.007 mp
Front stradal: 22 m
An construcție: 2024

Istoric preț

Facilități

Utilități
Curent Apă
Ușă intrare
PVC
Ferestre cu geam termopan
PVC
Amenajare străzi
Asfaltate Pietruite

Proprietăți similare

Casă individuală cu 4 camere cu Canalizare în Sohatu
129.000 €
Județul Călărași, Sohatu
4 camere
200 mp
800 mp teren
Casă individuală cu 4 camere cu Canalizare în Frumușani
112.000 €
Județul Călărași, Frumușani
4 camere
150 mp
850 mp teren
Casă individuală cu 3 camere cu Canalizare în Tămădău Mare
130.000 €
Județul Călărași, Tămădău Mare
3 camere
120 mp
1.400 mp teren
Casă individuală cu 4 camere cu Teren 400 Mp în Centrul Vechi
110.000 €
Călărași, Centrul Vechi
4 camere
130 mp
400 mp teren
Casă individuală cu 5 camere cu Canalizare în Frumușani
109.000 €
Județul Călărași, Frumușani
5 camere
190 mp
500 mp teren

Abonează-te la newsletter să fii primul care primește cele mai noi recomandări de proprietăți și sfaturi de la experți.