Duplex, PF, 129 mp, 280 teren, zona Terra

209.900 €

Floreşti, Judeţul Cluj

Nr. camere:
4
Suprafață utilă:
129 mp
Suprafață teren:
280 mp
Nr. niveluri:
1

Descriere casă

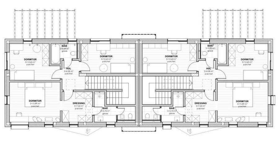
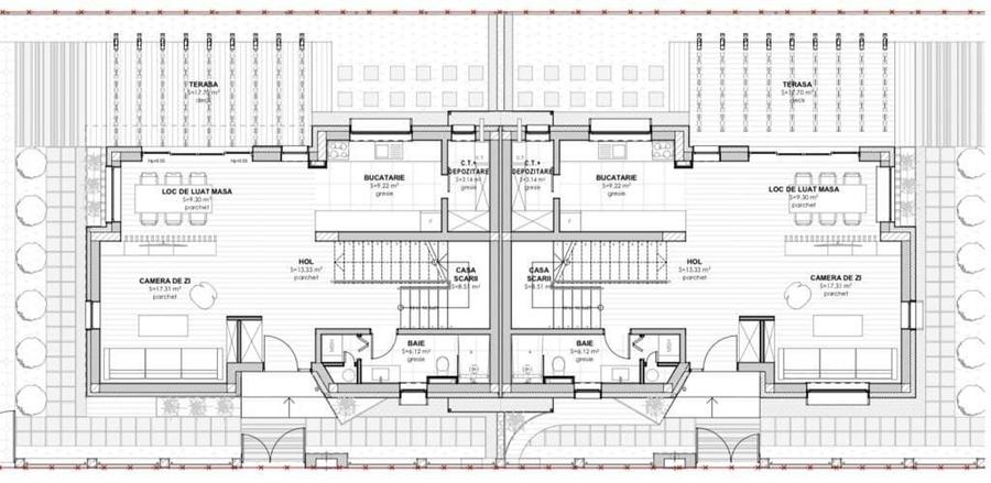
Blitz ofera duplex de vanzare pozitionat in zona Terra, cu iesire facila spre Avram Iancu. Pozitionat intr-o zona de case, proiectul are regim de inaltime P + E si urmeaza a fi finalizat in luna iulie - august. Constructia este din caramida, va fi izolata exterior , acoperit cu tabla. Predarea interioara se face la stadiul de semifinisat : geamuri termopan, un strat de glet, sapa autonivelanta, instalatii trase la pozitii, incalzire in pardoseala P + E , centrala termica. Exteriorul se preda cu gard delimitat si imprejmuit. Compartimentarea duplexului este urmatoarea: Parter - hol de acces, baie, camera de zi, loc de luat masa, bucatarie ,camera tehnica si terasa. Etaj - hol, trei dormitoare , doua bai si dressing. Podul se poate utiliza ca si spatiu pentru depozitare. Suprafata utila este de 129 mp si teren aferent 280 mp. Se vinde de pe persoana fizica ! Cod ofertă / ID BLITZ: P2695
Citește mai mult Citește mai puțin
Nemobilat Grădină Curte Centrală proprie Bine întreținut (Bună)

Detalii casă

ID anunț: 75876 Actualizat în: 03 Aprilie 2026
Nr. camere: 4
Suprafață utilă: 129 mp
Suprafață utilă totală: 129 mp
Nr. băi: 3
Suprafață teren: 280 mp
An construcție: 2023
Regim înălțime: P+1E

Istoric preț

Facilități

Mobilat
Nemobilat
Stare interior
Stare bună

Puncte de interes

Mijloace transport
transport
M-Cartier Terra
Mijloace transport aprox. 507 m
transport
M-Prof. Dumitru Mocanu
Mijloace transport aprox. 708 m
transport
M-Prof. Dumitru Mocanu E
Mijloace transport aprox. 710 m
transport
M-Prof. Dumitru Mocanu V
Mijloace transport aprox. 719 m
Recreere
parks
Parc
Recreere aprox. 302 m
restaurants
Pizza Pizza
Restaurante aprox. 430 m
shopping
Profi
Supermarket/Mall aprox. 1012 m
shopping
Profi Floresti
Supermarket/Mall aprox. 1012 m

Proprietăți similare

Casă individuală cu 4 camere cu Canalizare în Florești
190.000 € + TVA
Județul Cluj, Florești
4 camere
112 mp
256 mp teren
Casă individuală cu 4 camere cu Teren 282 Mp în Florești
210.000 €
Județul Cluj, Florești
4 camere
130 mp
282 mp teren
Casă individuală cu 4 camere cu Canalizare în Florești
229.000 € + TVA
Județul Cluj, Florești
4 camere
120 mp
300 mp teren
Casă individuală cu 5 camere cu Canalizare în Florești
220.000 €
Județul Cluj, Florești
5 camere
103 mp
350 mp teren
Casă individuală cu 4 camere cu Canalizare în Florești
229.500 €
Județul Cluj, Florești
4 camere
132 mp
300 mp teren
Casă individuală cu 4 camere cu Canalizare în Florești
215.000 €
Județul Cluj, Florești
4 camere
122 mp
200 mp teren
Casă individuală cu 4 camere cu Canalizare în Florești
199.000 €
Județul Cluj, Florești
4 camere
130 mp
150 mp teren
Casă individuală cu 4 camere cu Teren 200 Mp în Florești
215.000 €
Județul Cluj, Florești
4 camere
181 mp
200 mp teren
Casă individuală cu 5 camere cu Canalizare în Florești
206.000 € + TVA
Județul Cluj, Florești
5 camere
120 mp
250 mp teren

Abonează-te la newsletter să fii primul care primește cele mai noi recomandări de proprietăți și sfaturi de la experți.