Casa 4 camere de vanzare in Terra, Floresti

150.000 €

Floreşti, Judeţul Cluj

Nr. camere:
4
Suprafață utilă:
119 mp
Suprafață teren:
60 mp
Nr. niveluri:
1

Descriere casă

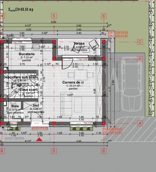
Duplex de vanzare in cartierul Terra, Floresti! Va propunem spre vanzare o casa de tip duplex, stadiul semifinisat, finalizata in anul 2025. Casa dispune de regimul de inaltime P+E+M, cu suprafata utila de 119 mp si prezinta urmatoarea compartimentare: Parter: - 1 hol acces; - 1 baie; - 1 camera de zi; - 1 bucatarie; - 1 spatiu de depozitare; - 1 terasa de 5 mp. Etaj: - 1 hol; - 2 dormitoare, dintre care unul cu dressing si baie; - 1 baie; - 1 balcon de 4mp, accesul facandu-se din ambele dormitoare. Mansarda: - 1 hol; - 1 baie; - 1 dormitor care poate fi utilizat ca si birou; - 1 spatiu de depozitare. Casa dispune de o gradina privata de 60 mp si 1 loc de parcare. Accesul se face pe un drum privat cu latimea de 6 m. Receptia se va face in luna septembrie 2025. Confortul termic este realizat prin incalzire in pardoseala. La cerere, casa se poate finisa, avand la dispozitie o gama variata de materiale. La pretul afisat se adauga TVA de 19%. Pentru mai multe informatii si pentru a stabili o vizionare, va stam cu drag la dispozitie! Echipa Napoca Imobiliare ID oferta: 153521
Citește mai mult Citește mai puțin
Nemobilat

Detalii casă

ID anunț: 4004946 Actualizat în: 01 Aprilie 2026
Nr. camere: 4
Suprafață utilă: 119 mp
Suprafață utilă totală: 119 mp
Nr. băi: 4
Suprafață teren: 60 mp
Front stradal: 13 m
An construcție: 2025
Regim înălțime: P+1E

Istoric preț

Facilități

Utilități
Curent Apă Canalizare Gaze Cablu
Internet
Cablu Wireless
Mobilat
Nemobilat
Amenajare străzi
Iluminat stradal Mijloace de transport în comun Asfaltate
Ferestre cu geam termopan
PVC

Puncte de interes

Mijloace transport
transport
M-Cartier Terra
Mijloace transport aprox. 749 m
transport
M-Prof. Dumitru Mocanu
Mijloace transport aprox. 959 m
transport
M-Prof. Dumitru Mocanu E
Mijloace transport aprox. 961 m
transport
M-Prof. Dumitru Mocanu V
Mijloace transport aprox. 969 m
Recreere
parks
Parc
Recreere aprox. 420 m
restaurants
Pizza Pizza
Restaurante aprox. 541 m
shopping
Profi
Supermarket/Mall aprox. 1178 m
shopping
Profi Floresti
Supermarket/Mall aprox. 1178 m

Proprietăți similare

Casă individuală cu 6 camere cu Canalizare în Florești
149.000 €
Județul Cluj, Florești
6 camere
150 mp
450 mp teren
Casă individuală cu 4 camere cu Canalizare în Florești
155.000 € + TVA
Județul Cluj, Florești
4 camere
114 mp
110 mp teren
Casă individuală cu 4 camere cu Canalizare în Florești
155.000 € + TVA
Județul Cluj, Florești
4 camere
120 mp
250 mp teren
Casă individuală cu 4 camere cu Canalizare în Florești
160.000 € + TVA
Județul Cluj, Florești
4 camere
112 mp
200 mp teren
Casă individuală cu 3 camere cu Canalizare în Florești
152.500 €
Județul Cluj, Florești
3 camere
80 mp
20 mp teren
Casă individuală cu 4 camere cu Canalizare în Florești
165.000 €
Județul Cluj, Florești
4 camere
120 mp
220 mp teren
Casă individuală cu 4 camere cu Canalizare în Florești
148.000 €
Județul Cluj, Florești
4 camere
80 mp
90 mp teren
Casă individuală cu 2 camere cu Teren 1000 Mp în Vâlcele
149.000 €
Județul Cluj, Vâlcele
2 camere
63 mp
1.000 mp teren
Casă individuală cu 4 camere cu Canalizare în Apahida
139.999 €
Județul Cluj, Apahida
4 camere
150 mp
400 mp teren

Abonează-te la newsletter să fii primul care primește cele mai noi recomandări de proprietăți și sfaturi de la experți.