Casa deosebita, 200 mp, 500mp teren, zona Faget

389.000 €

Floreşti, Judeţul Cluj

Nr. camere:
4
Suprafață utilă:
200 mp
Suprafață teren:
500 mp
Nr. niveluri:
1

Descriere casă

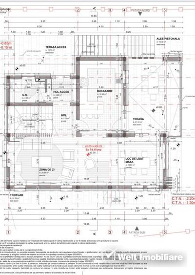
Welt Imobiliare va propune spre vanzare o casa individuala semifinisata, in Faget, in mijlocul naturii, zona Roata Faget, la 5 minute de mers cu masina. Zona este una foarte buna, cu case noi, retrasa de galagia orasului, aerisita, cu verdeata si priveliste frumoasa, la 7 km de centrul orasului. Este situata pe un teren de 500 mp, are o suprafata utila de 175 mp + demisol, cu regim de inaltime D+P+1. Compartimentarea este urmatoarea: La demisol: - garaj dublu si spatiu tehnic; La parter: - 1 living cu loc de luat masa si iesire pe terasa; - 1 bucatarie cu iesire pe terasa; - 1 spatiu de depozitare; - 1 baie. La etaj: - 1 dormitor matrimonial cu dressing si baie proprie; - 2 dormitoare; - a 3-a baie; - 1 balcon. Se preda la stadiul de semifinisat, cu: - gradina amenajata; - exteriorul complet finisat cu decorativa; - utilitati: apa, curent, butelii gaz, fosa septica; - instalatiile trase pe pozitie; - izolatie cu polistiren de 10 cm; - ferestre termoizolante cu tamplarie PVC; - centrala termica proprie; - acoperis tip terasa. Se poate finisa, la cerere. Recomandam aceasta proprietate datorita zonei, a suprafetei optime, atat cea utila cat si a terenului, respectiv a compartimentarii ideale. Pentru programarea unei vizionari, nu ezitati sa ne contactati, Echipa Welt Imobiliare.
Citește mai mult Citește mai puțin
Grădină Curte Centrală proprie Beci Bine întreținut (Bună)

Detalii casă

ID anunț: 3557307 Actualizat în: 20 Aprilie 2026
Nr. camere: 4
Suprafață utilă: 200 mp
Suprafață utilă totală: 200 mp
Nr. băi: 3
Suprafață teren: 500 mp
An construcție: 2025
Regim înălțime: P+1E

Istoric preț

Facilități

Utilități
Curent Apă Canalizare
Sistem încălzire
Centrală proprie
Ușă intrare
PVC
Stare interior
Stare bună
Izolații termice
Exterior
Ferestre cu geam termopan
PVC
Diverse
Scară interioară
Facilități imobil
Curte Grădină
Amenajare străzi
Asfaltate Pietruite

Puncte de interes

Mijloace transport
transport
VIVO!
Mijloace transport aprox. 1693 m
transport
Metro Nord S
Mijloace transport aprox. 1862 m
transport
Disp. Clabucet
Mijloace transport aprox. 1872 m
transport
Metro Nord N
Mijloace transport aprox. 1885 m
Recreere
parks
Faget Picnic Area
Recreere aprox. 459 m
restaurants
Restaurant-terasa Roata
Restaurante aprox. 675 m
shopping
VIVO!
Supermarket/Mall aprox. 1634 m
shopping
Complex comercial Polus
Supermarket/Mall aprox. 1678 m

Proprietăți similare

Casă individuală cu 7 camere cu Canalizare în Florești
380.000 €
Județul Cluj, Florești
7 camere
200 mp
500 mp teren
Casă individuală cu 5 camere cu Canalizare în Florești
399.000 €
Județul Cluj, Florești
5 camere
168 mp
531 mp teren
Casă individuală cu 7 camere cu Teren 620 Mp în Florești
380.000 €
Județul Cluj, Florești
7 camere
180 mp
620 mp teren
Casă individuală cu 5 camere cu Canalizare în Florești
354.900 €
Județul Cluj, Florești
5 camere
211 mp
455 mp teren
Casă individuală cu 4 camere cu Canalizare în Florești
395.000 €
Județul Cluj, Florești
4 camere
252 mp
600 mp teren
Casă individuală cu 6 camere cu Teren 700 Mp în Florești
385.000 €
Județul Cluj, Florești
6 camere
240 mp
700 mp teren
Casă individuală cu 5 camere cu Canalizare în Florești
354.000 €
Județul Cluj, Florești
5 camere
200 mp
655 mp teren
Casă individuală cu 4 camere cu Canalizare în Florești
355.000 €
Județul Cluj, Florești
4 camere
120 mp
1.618 mp teren
Casă individuală cu 3 camere cu Canalizare în Florești
363.000 €
Județul Cluj, Florești
3 camere
110 mp
190 mp teren

Abonează-te la newsletter să fii primul care primește cele mai noi recomandări de proprietăți și sfaturi de la experți.