Vilă in constructie, locatie excelenta, Comision 0%

400.000 €

Feleacu, Judeţul Cluj

Nr. camere:
5
Suprafață utilă:
155 mp
Suprafață teren:
611 mp
Nr. niveluri:
1

Descriere casă

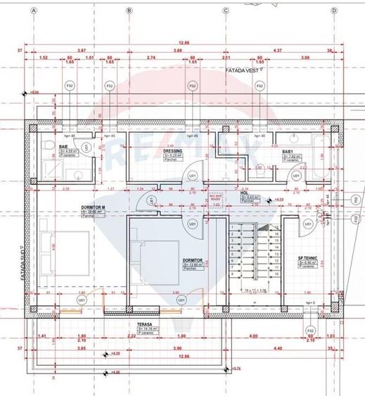
Vă oferim spre vânzare, fără comision la achizitie, o locuință aflată în construcție, situată într-o zonă liniștită și panoramică din Feleacu, la doar 7 minute de Cluj-Napoca. Aceasta reprezintă oportunitatea ideală de a vă implica direct în personalizarea finisajelor și de a urmări calitatea construcției pas cu pas. Suprafață utilă: 155 mp Teren: ~600 mp Camere: 5 Băi: 3 Terase: 3 cu o suprafata totala de 46,17mp Parcări: 2 locuri exterioare La parter regăsim o camera de zi spatioasa cu loc de luat masa, bucatarie separata in suprafata de 15mp, terasa, un birou, baie. La etaj avem doua dormitoare din care unul matrimonial cu baie proprie (ambele au acces la o terasa de 14mp cu view superb), un dressing, baie si spatiu tehnic. Constructia este realizata cu materiale de calitate si se va preda la stadiul de semifinisat. Această proprietate este ideală pentru cei care doresc liniște și aer curat fără a renunța la proximitatea urbană. Va rugam sa vizionati turul virtual si schitele imobilului. Pentru mai multe detalii sau programarea unei vizionări, nu ezitați să ne contactați!
Citește mai mult Citește mai puțin
Centrală proprie Zonă de deal / munte

Detalii casă

ID anunț: 751024 Actualizat în: 01 Aprilie 2026
Nr. camere: 5
Suprafață utilă: 155 mp
Suprafață utilă totală: 155 mp
Nr. băi: 3
Suprafață teren: 611 mp
An construcție: 2025
Regim înălțime: P+1E

Istoric preț

Facilități

Contorizare
Contor gaz
Facilități imobil
Acoperiș
Sistem încălzire
Centrală proprie
Ușă intrare
Metal PVC
Izolații termice
Exterior
Ferestre cu geam termopan
PVC
Amenajare străzi
Iluminat stradal

Puncte de interes

Mijloace transport
transport
M-DJ 71
Mijloace transport aprox. 850 m
transport
M-Post Control
Mijloace transport aprox. 875 m
transport
Dinu Lipatti
Mijloace transport aprox. 1527 m
transport
M-Scoala Feleacu V
Mijloace transport aprox. 1541 m
Școală
education
Gradinita Feleacu
Învățământ aprox. 1553 m
education
Scoala Generala Feleacu
Învățământ aprox. 1570 m
Recreere
restaurants
Aroma
Restaurante aprox. 1350 m
restaurants
Restaurant Aroma
Restaurante aprox. 1361 m
restaurants
Restaurant Pensiunea Serena
Restaurante aprox. 1884 m
restaurants
Silva
Restaurante aprox. 1927 m

Proprietăți similare

Casă individuală cu 4 camere cu Canalizare în Feleacu
365.000 €
Județul Cluj, Feleacu
4 camere
160 mp
873 mp teren
Casă individuală cu 4 camere cu Canalizare în Feleacu
365.000 €
Județul Cluj, Feleacu
4 camere
140 mp
1.000 mp teren
Casă individuală cu 4 camere cu Canalizare în Feleacu
365.000 €
Județul Cluj, Feleacu
4 camere
160 mp
873 mp teren
Casă individuală cu 4 camere cu Canalizare în Feleacu
440.000 €
Județul Cluj, Feleacu
4 camere
200 mp
800 mp teren
Casă individuală cu 4 camere cu Canalizare în Feleacu
369.000 €
Județul Cluj, Feleacu
4 camere
105 mp
880 mp teren
Casă individuală cu 4 camere cu Teren 750 Mp în Feleacu
390.000 €
Județul Cluj, Feleacu
4 camere
127 mp
750 mp teren
Casă individuală cu 4 camere cu Garaj în Feleacu
390.000 €
Județul Cluj, Feleacu
4 camere
220 mp
600 mp teren
Casă individuală cu 4 camere cu Teren 873 Mp în Feleacu
365.000 €
Județul Cluj, Feleacu
4 camere
160 mp
873 mp teren
Casă individuală cu 4 camere cu Garaj în Feleacu
365.000 €
Județul Cluj, Feleacu
4 camere
140 mp
1.000 mp teren

Abonează-te la newsletter să fii primul care primește cele mai noi recomandări de proprietăți și sfaturi de la experți.