Comision 0 %! Casa individuala in Feleacu 4 camere + teren liber 1000 mp.

€ 335.000

Feleacu, Judeţul Cluj

Nr. camere:
4
Suprafață utilă:
140 mp
Suprafață teren:
1.000 mp
Nr. niveluri:
2

Descriere

Raportează anunț

Comision 0 %! Casa individuala in Feleacu 4 camere + teren liber 1000 mp.

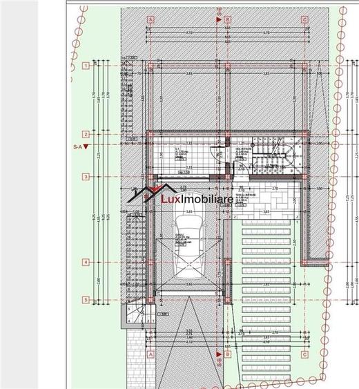
Luxnew Imobiliare va prezinta un proiect nou de 2 case deosebite in zona Feleacu cu o suprafata utila de 140 mp, 200 mp totali, suprafata teren 1000 mp. Ca si utlilitati se va preda cu gaz, apa, curent si fosa biologica proprie. Drum - drumul de servitute va fi asfaltat. Izolatie - vata bazaltica 15 cm Incalzire in pardoseala parter si etaj. Geamuri termopan tripan rehau synego 4 anotimpuri. Casa se va preda la stadiul de semifinisat cu un rand de lavabil dat. Centrala termica, toate instalatiile pe pozitie, sape, tencuiala cu un strat de glet. Exteriorul va fi finisat inclusiv luminile arhitecturale. Curte terasata si gazon. Garduri, porti inclusiv pavaj in zona de acces auto.  Se accepta plata prin credit sau numerar. Termenul de finalizare a lucrarii este in vara 2025 cu Cf. Un proiect deosebit de case individuale amplasat intr-o zona frumoasa aerisita cu multa verdeata imprejur, cu o panorama unde vezi cele mai frumoase rasarituri de soare, cu acces usor spre Cluj. Distanta aproximativa 5 km de zona Buna Ziua. Detalii:
07513**** Vezi tot numărul
. ID intern: 69. Case de vanzare Feleacu. Comision agentie 0% luna aceasta!
Citește mai mult Citește mai puțin
ID anunț: 260219 Actualizat în: 11 Decembrie 2025
Nr. camere: 4
Suprafață utilă: 140 mp
Suprafață utilă totală: 140 mp
Nr. băi: 3
Suprafață teren: 1.000 mp
An construcție: 2022
Regim înălțime: P+2E

Istoric preț

Utilități

Facilități
Balcon

Proprietăți similare

Casă individuală cu 5 camere cu Canalizare în Feleacu
€ 350.000
Județul Cluj, Feleacu
5 camere
125 mp
2.500 mp teren
Casă individuală cu 4 camere cu Teren 1000 Mp în Feleacu
€ 345.000
Județul Cluj, Feleacu
4 camere
130 mp
1.000 mp teren
Casă individuală cu 4 camere cu Teren 550 Mp în Feleacu
€ 359.000
Județul Cluj, Feleacu
4 camere
150 mp
550 mp teren
Casă individuală cu 6 camere cu Teren 1000 Mp în Feleacu
€ 365.000
Județul Cluj, Feleacu
6 camere
247 mp
1.000 mp teren
Casă individuală cu 4 camere cu Garaj în Feleacu
€ 365.000
Județul Cluj, Feleacu
4 camere
140 mp
1.000 mp teren
Casă individuală cu 4 camere cu Teren 873 Mp în Feleacu
€ 365.000
Județul Cluj, Feleacu
4 camere
160 mp
873 mp teren
Casă individuală cu 4 camere cu Canalizare în Feleacu
€ 365.000
Județul Cluj, Feleacu
4 camere
140 mp
1.000 mp teren
Casă individuală cu 4 camere cu Teren 873 Mp în Feleacu
€ 365.000
Județul Cluj, Feleacu
4 camere
160 mp
873 mp teren
Casă individuală cu 4 camere cu Canalizare în Feleacu
€ 365.000
Județul Cluj, Feleacu
4 camere
160 mp
873 mp teren

Abonează-te la newsletter să fii primul care primește cele mai noi recomandări de proprietăți și sfaturi de la experți.