Vila cu 5 camere, garaj teren 790 mp Dumbravita (zona Cora)

380.000 €

Dumbrăviţa, Judeţul Timiş

Nr. camere:
5
Suprafață utilă:
194 mp
Suprafață teren:
790 mp
Nr. niveluri:
1

Descriere casă

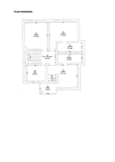
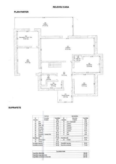
Casa individuala cu 5 camere, garaj si curte generoasa – Dumbravita (zona Cora) O proprietate spatioasa, solid construita si foarte bine compartimentata, ideala pentru o familie care isi doreste confort, intimitate si acces rapid catre principalele puncte de interes din Timisoara. Amplasata in Dumbravita, cartierul Cora, in apropiere de IKEA, Auchan, Selgros, Hornbach si Decathlon, cu acces facil catre DN69 (Timisoara – Arad), centura si autostrada A1. Detalii generale Regim de inaltime: P + M (mansarda inalta) + pod + garaj An constructie: 2008 Clasa energetica: A Structura: cadre din beton armat + zidarie Porotherm Izolatie exterioara cu polistiren Suprafete: Suprafata utila: 193,5 mp Suprafata construita desfasurata: 267 mp Suprafata teren: 790 mp Front stradal: 17,5 m Garaj: 18,15 mp Compartimentare practica si functionala Parter: Living generos (35 mp), luminos si primitor Bucatarie separata Birou (ideal pentru work-from-home) Baie de serviciu Camera tehnica Garaj cu acces direct in casa Bucatarie secundara (in prelungirea garajului) Terasa acoperita spatioasa Mansarda: 3 dormitoare bine dimensionate 2 dressinguri Dormitor matrimonial cu baie proprie Baie principala (cada + dus + bideu) Terasa acoperita Acces catre pod (spatiu suplimentar de depozitare) Finisaje si dotari Parchet din cires in living + parchet laminat in dormitoare Gresie si faianta Tamplarie PVC cu geam termopan si rulouri Usi PVC interior/exterior Centrala termica pe gaz, in condensatie Incalzire cu calorifere Dotari suplimentare Semineu in living Aer conditionat Sistem de dedurizare a apei Boiler 300L (alimentare mixta: solar + centrala) Alarma si interfon Exterior si facilitati Teren imprejmuit Curte generoasa, ideala pentru relaxare sau amenajare Foisor / magazie din lemn cu unelte incluse Foraj de mare adancime (peste 110 m) Panouri solare pentru apa menajera Vecini doar lateral – intimitate mare (in spate nu se va construi) Acces si utilitati Acces din drum asfaltat, trafic redus Strada iluminata Utilitati complete: apa si canalizare gaz electricitate internet fibra optica TV si telefonie Alte informatii Se vinde complet mobilata si utilata Pret negociabil Predare in septembrie Avantaje cheie Locatie excelenta, aproape de toate facilitatile majore Suprafata mare si compartimentare eficienta Curte generoasa, rar intalnita in zona Dotari complete (inclusiv foraj si panouri solare) Potrivita atat pentru locuinta, cat si pentru investitie
Citește mai mult Citește mai puțin
Parțial mobilat Grădină Aer condiționat Calorifere Centrală proprie Bine întreținut (Bună)

Detalii casă

ID anunț: 4101985 Actualizat în: 27 Aprilie 2026
Nr. camere: 5
Suprafață utilă: 194 mp
Suprafață utilă totală: 194 mp
Nr. băi: 3
Suprafață teren: 790 mp
Front stradal: 18 m
An construcție: 2008
Regim înălțime: P+1E

Istoric preț

Facilități

Pereți
Faianță
Stare interior
Stare bună
Izolații termice
Exterior
Ferestre cu geam termopan
PVC
Contorizare
Contor gaz
Bucătărie
Mobilată
Mobilat
Parțial mobilat
Diverse
Telecomandă poartă garaj
Facilități imobil
Grădină
Utilități
Curent Apă Canalizare Gaze Cablu
Sistem încălzire
Calorifere Centrală proprie
Internet
Cablu
Climatizare
Aer condiționat
Amenajare străzi
Iluminat stradal Mijloace de transport în comun Asfaltate

Puncte de interes

Mijloace transport
transport
Statie Giratie Selgros E1
Mijloace transport aprox. 1845 m
transport
Selgros
Mijloace transport aprox. 1987 m
Școală
education
Gradinita Scooby
Învățământ aprox. 1720 m
Recreere
parks
Parcul Dvorjak
Recreere aprox. 198 m
parks
Sunflower Field
Recreere aprox. 583 m
shopping
Decathlon
Supermarket/Mall aprox. 1720 m
shopping
Selgros
Supermarket/Mall aprox. 1739 m

Proprietăți similare

Casă individuală cu 5 camere cu Canalizare în Dumbrăvița
394.990 €
Județul Timiș, Dumbrăvița
5 camere
195 mp
749 mp teren
Casă individuală cu 4 camere cu Canalizare în Dumbrăvița
365.000 € + TVA
Județul Timiș, Dumbrăvița
4 camere
109 mp
360 mp teren
Casă individuală cu 3 camere cu Canalizare în Dumbrăvița
355.000 €
Județul Timiș, Dumbrăvița
3 camere
120 mp
700 mp teren
Casă individuală cu 7 camere cu Canalizare în Dumbrăvița
350.000 €
Județul Timiș, Dumbrăvița
7 camere
248 mp
614 mp teren
Casă individuală cu 4 camere cu Canalizare în Dumbrăvița
399.000 €
Județul Timiș, Dumbrăvița
4 camere
141 mp
622 mp teren
Casă individuală cu 7 camere cu Canalizare în Dumbrăvița
350.000 €
Județul Timiș, Dumbrăvița
7 camere
248 mp
614 mp teren
Casă individuală cu 7 camere cu Teren 614 Mp în Dumbrăvița
350.000 €
Județul Timiș, Dumbrăvița
7 camere
248 mp
614 mp teren
Casă individuală cu 5 camere cu Canalizare în Dumbrăvița
360.000 €
Județul Timiș, Dumbrăvița
5 camere
206 mp
605 mp teren
Casă individuală cu 5 camere cu Canalizare în Dumbrăvița
380.000 €
Județul Timiș, Dumbrăvița
5 camere
160 mp
450 mp teren

Abonează-te la newsletter să fii primul care primește cele mai noi recomandări de proprietăți și sfaturi de la experți.