Casa individuala premium de vanzare cu view deosebit in Dezmir 214mp si t. 458mp

365.000 €

Dezmir, Judeţul Cluj

Nr. camere:
4
Suprafață utilă:
214 mp
Suprafață teren:
458 mp

Descriere casă

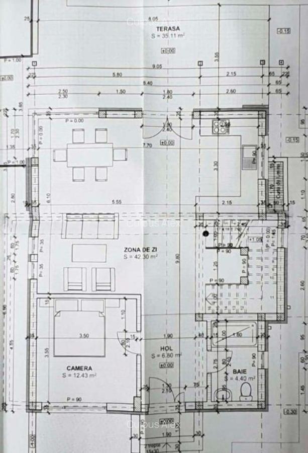
Oportunitate !!! Exclusivitate !!! CBS IMOBILIARE OFERĂ IMOBILIARE OFERA SPRE VANZARE CASĂ premium in Sat. Dezmir , o zona foarte linistita , si cu un view deosebit asupra intregului oras Cluj -Napoca si spre Aeroport , imobilul este dispus pe 3 nivele D +P+E + terasa circulabila fiind la stadiul de finisat pe exterior cu pavaj ,gazon si plante si pe interior la semifinisat , suprafata 214mpu + terasa circulabila 79mp ,terasa 35mp si balcon 12mp ,teren 458mpu . Compartimentare : Demisol : 2 parcari ,camera, tehnica casa scarii Parter : camera ,hol , bucatarie ,living , dinning, baie ,terasa 35 mp . Etaj: 3 dormitoare, 2 bai , hol Terasa circulabila : hol ,terasa Pret : 365.000€ usor negociabil Detalii
Citește mai mult Citește mai puțin

Detalii casă

ID anunț: 2761664 Actualizat în: 09 Decembrie 2025
Nr. camere: 4
Suprafață utilă: 214 mp
Suprafață utilă totală: 214 mp
Nr. băi: 3
Suprafață teren: 458 mp
Front stradal: 20 m
An construcție: 2025

Istoric preț

Facilități

Utilități
Apă Gaze Canalizare
Rulouri/Obloane
PVC
Ușă intrare
PVC
Uși interior
PVC
Izolații termice
Exterior
Ferestre cu geam termopan
PVC
Alte spații utile
Spațiu depozitare Dressing WC Serviciu
Amenajare străzi
Asfaltate Mijloace de transport în comun
Facilități
Garaj Balcon

Puncte de interes

Mijloace transport
transport
Dezmir Airfiled
Mijloace transport aprox. 689 m
transport
Agro Transilvania
Mijloace transport aprox. 1184 m
transport
EVW Holding
Mijloace transport aprox. 1215 m
transport
Halta Dezmir
Mijloace transport aprox. 1357 m
Școală
education
Gradinita
Învățământ aprox. 1398 m
Recreere
parks
Teren sportiv
Recreere aprox. 997 m

Proprietăți similare

Casă individuală cu 4 camere cu Canalizare în Dezmir
369.000 €
Județul Cluj, Dezmir
4 camere
165 mp
700 mp teren
Casă individuală cu 4 camere cu Teren 540 Mp în Dezmir
360.000 €
Județul Cluj, Dezmir
4 camere
130 mp
540 mp teren
Casă individuală cu 5 camere cu Teren 440 Mp în Dezmir
333.000 €
Județul Cluj, Dezmir
5 camere
115 mp
440 mp teren
Casă individuală cu 4 camere cu Canalizare în Dezmir
330.000 €
Județul Cluj, Dezmir
4 camere
112 mp
400 mp teren
Casă individuală cu 5 camere cu Canalizare în Dezmir
360.000 €
Județul Cluj, Dezmir
5 camere
145 mp
400 mp teren
Casă individuală cu 5 camere cu Teren 545 Mp în Dezmir
359.999 €
Județul Cluj, Dezmir
5 camere
130 mp
545 mp teren
Casă individuală cu 4 camere cu Canalizare în Dezmir
360.000 €
Județul Cluj, Dezmir
4 camere
130 mp
400 mp teren
Casă individuală cu 4 camere cu Canalizare în Dezmir
360.000 €
Județul Cluj, Dezmir
4 camere
174 mp
400 mp teren
Casă individuală cu 6 camere cu Canalizare în Dezmir
350.000 €
Județul Cluj, Dezmir
6 camere
200 mp
1.400 mp teren

Abonează-te la newsletter să fii primul care primește cele mai noi recomandări de proprietăți și sfaturi de la experți.