DUPLEXURI LA ALB | CUMPANA | TOATE UTILITATILE |

155.000 €

Cumpăna, Judeţul Constanţa

Nr. camere:
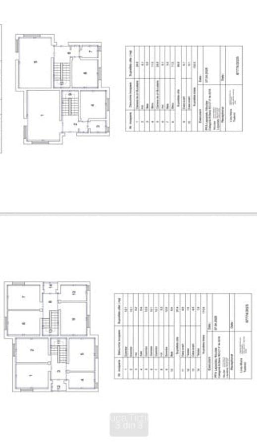
4
Suprafață utilă:
110 mp
Suprafață teren:
127 mp
Nr. niveluri:
1

Descriere casă

Vând 2 duplexuri în Cumpăna – Zona Del Sole  O oportunitate excelentă pentru cei care își doresc liniște, confort și acces rapid către oraș! Preț: 155.000 € (la alb) ✔ Unul dintre duplexuri are deja branșamentul la gaz finalizat, iar la celălalt este în curs de execuție. ✔ Încălzire clasică cu radiatoare (calorifere) – eficientă și practică. Compartimentare optimă: • 4 camere spațioase • 3 dormitoare luminoase • 2 băi moderne Ambele imobile sunt amplasate într-o zonă liniștită, cu acces facil către punctele de interes din Cumpăna și Constanța – ideal pentru familii sau investiție.  Pentru mai multe detalii sau programarea unei vizionări, mă puteți contacta oricând!   Vizionările se fac pe baza unui acord de vizionare.Comision agentie 2%
Citește mai mult Citește mai puțin
Zonă de litoral

Detalii casă

Actualizat în: 15 Mai 2026 ID anunț: 1073336
Nr. camere: 4
Suprafață utilă: 110 mp
Suprafață utilă totală: 110 mp
Nr. băi: 2
Suprafață teren: 127 mp
Regim înălțime: P+1E

Istoric preț

Facilități

Facilități
Balcon

Puncte de interes

Școală
education
Scoala cu clasele I-VII Cumpana
Învățământ aprox. 840 m
education
Gradinita
Învățământ aprox. 1085 m
Recreere
parks
Cumpana
Recreere aprox. 609 m

Proprietăți similare

Casă individuală cu 5 camere cu Garaj în Cumpăna
167.700 €
Județul Constanța, Cumpăna
5 camere
206 mp
620 mp teren
Casă individuală cu 3 camere cu Canalizare în Cumpăna
146.000 €
Județul Constanța, Cumpăna
3 camere
100 mp
450 mp teren
Casă individuală cu 4 camere cu Teren 250 Mp în Central
165.000 €
Județul Constanța, Năvodari
4 camere
120 mp
250 mp teren
Casă individuală cu 4 camere cu Canalizare în Cumpăna
149.000 €
Județul Constanța, Cumpăna
4 camere
80,9 mp
400 mp teren
Casă individuală cu 4 camere cu Canalizare în Cumpăna
159.000 €
Județul Constanța, Cumpăna
4 camere
112 mp
543 mp teren
Casă individuală cu 4 camere cu Canalizare în Cumpăna
165.000 €
Județul Constanța, Cumpăna
4 camere
154 mp
342 mp teren
Casă individuală cu 4 camere cu Canalizare în Valu lui Traian
155.000 €
Județul Constanța, Valu lui Traian
4 camere
180 mp
270 mp teren
Casă individuală cu 3 camere în Cumpăna
160.000 €
Județul Constanța, Cumpăna
3 camere
90 mp
Casă individuală cu 4 camere cu Teren 514 Mp în Cumpăna
170.000 €
Județul Constanța, Cumpăna
4 camere
100 mp
514 mp teren

Abonează-te la newsletter să fii primul care primește cele mai noi recomandări de proprietăți și sfaturi de la experți.