Casa individuala 4 camere 120 mp/utili, teren 430 mp, Cristian/Brasov

175.000 €

Cristian, Judeţul Braşov

Nr. camere:
4
Suprafață utilă:
125 mp
Suprafață teren:
430 mp

Descriere casă

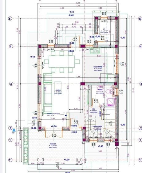
Pretul afisat este pentru stadiu La Rosu ( cu geamuri si utilitati racordate). Proprietar persoana fizica! Te invit sa descoperi aceasta casa dosebita in pitoreasca localitate Cristian cu acces facil catre toate zonele de interes din Brasov, totodata oferind liniste si intimitate viitorilor proprietari. o zona accesibila cu multe perspective, ideal pentru familii cu copii sau cupluri de orice varsta,. Locuinta are o suparafata de 125 mp/utili, formata din 4 camere, dispusa pe parter si etaj, aplasata pe un teren de 430 mp, iar compartimentarea este urmatoarea: - Parter - cu o suprafata utila de 65 mp si Terasa de 18 mp: *camera de zi cu zona de luat masa 31.5 mp, *bucatarie-11.7 mp *grup sanitar-4.4 mp, *hol+scara-9.8 *camera tehnica-4.4 mp. - Etaj - cu o suprafata utila de 60 mp si 2 balcoane cu suprafata comuna de 9 mp. *Hol- 10.3 mp, *dormitor 1-13.8 mp cu baie 3.2 mp, *dormitor 2-14.8 mp, *birou/dormitor-11,5 mp. *baie-6.7 mp Se accepta Credit Ipotecar Plata in 3 transe: - 30% la semnarea contractului - 30% la stadiu de constructie la Rosu - 40% la finalizarea constructiei. Imobilul reprezinta o constructie din beton si caramida T30, cu acoperis de Tigla , cu termoizolatie cu polistiren de 10 cm la exterior, perenti tencuiti la interior, vata minerala de 10 cm la tavane si sub acoperis. Casa pot fi personalizata la cerere si va fi predata cu urmatoarele dotari: incalzire in pardoseala cu solutii moderne de incalzire, ferestre de tip tripan 7 camere, bai mobilate si utilate, parchet, gresie, faianta,, apa, canalizare, termoizolație exterioara din polistiren grafitatat care îi conferă clasa energetica A++ pt un consum energetic minim. Aici veti descopeiri toate avantajele unei locuite sigure si elegante, datorita pasiunii, experientei si calitatea materialelor de constructie folosite de catre Constuctor. Materialele și soluțiile utilizate asigură eficiență energetică de top, contribuind la un trai economic și ecologic. Ideală pentru cei care apreciază confortul și sustenabilitatea! Pentru mai multe detalii astept cu drag un telefon de la Dumneavoastra!
Citește mai mult Citește mai puțin
Grădină Curte Centrală proprie Zonă de deal / munte Zonă rurală

Detalii casă

ID anunț: 82747 Actualizat în: 04 Februarie 2026
Nr. camere: 4
Suprafață utilă: 125 mp
Suprafață utilă totală: 125 mp
Nr. băi: 3
Suprafață teren: 430 mp
An construcție: 2025

Istoric preț

Facilități

Contorizare
Apometre Contor gaz
Dotări imobil
Curte Grădină
Utilități
Curent Apă Canalizare Gaze Cablu
Sistem încălzire
Centrală proprie
Acces internet
Cablu
Ușă intrare
PVC
Izolații termice
Exterior
Ferestre cu geam termopan
PVC
Amenajare străzi
Iluminat stradal Mijloace de transport în comun Asfaltate

Puncte de interes

Mijloace transport
transport
Cristian
Mijloace transport aprox. 1502 m
Școală
education
Scoala Generala
Învățământ aprox. 888 m
education
Gradinita
Învățământ aprox. 1026 m
Recreere
parks
Teren sportiv
Recreere aprox. 669 m
parks
Parc
Recreere aprox. 957 m
parks
Parc
Recreere aprox. 1000 m

Proprietăți similare

Casă individuală cu 3 camere cu Canalizare în Cristian
190.000 €
Județul Brașov, Cristian
3 camere
110 mp
400 mp teren
Casă individuală cu 5 camere cu Canalizare în Cristian
165.000 €
Județul Brașov, Cristian
5 camere
175 mp
217 mp teren
Casă individuală cu 4 camere cu Canalizare în Cristian
169.000 €
Județul Brașov, Cristian
4 camere
165 mp
750 mp teren
Casă individuală cu 4 camere cu Canalizare în Cristian
170.000 €
Județul Brașov, Cristian
4 camere
120 mp
511 mp teren
Casă individuală cu 3 camere cu Canalizare în Cristian
158.000 €
Județul Brașov, Cristian
3 camere
76 mp
180 mp teren
Casă individuală cu 3 camere cu Teren 747 Mp în Cristian
169.000 €
Județul Brașov, Cristian
3 camere
165 mp
747 mp teren
Casă individuală cu 4 camere cu Canalizare în Cristian
168.000 €
Județul Brașov, Cristian
4 camere
165 mp
747 mp teren
Casă individuală cu 6 camere cu Teren 499 Mp în Central
185.000 €
Județul Brașov, Săcele
6 camere
186 mp
499 mp teren
Casă individuală cu 3 camere cu Canalizare în Tărlungeni
163.900 €
Județul Brașov, Tărlungeni
3 camere
90 mp
192 mp teren

Abonează-te la newsletter să fii primul care primește cele mai noi recomandări de proprietăți și sfaturi de la experți.