Casa S+P+1 120 mpu, teren 284 mp, Preajba-zona Damila

150.000 €

Exterior Est, Craiova

Nr. camere:
6
Suprafață utilă:
120 mp
Suprafață teren:
284 mp
Nr. niveluri:
1

Descriere casă

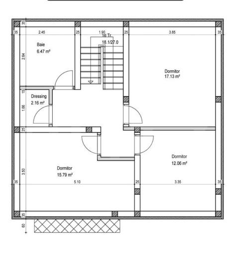
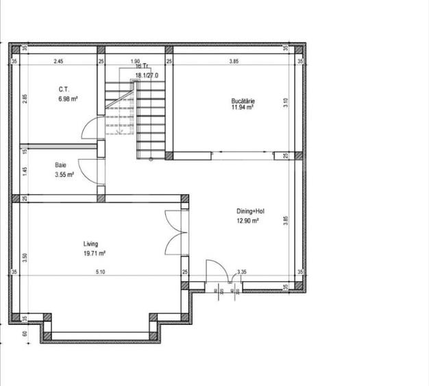
Blitz va propune spre achizitie o casa individuala cu regim de inaltime S + P + 1, cu suprafata construita de 163 mp si utila de 120 mp, amplasata pe un teren de 284 mp (deschidere de 14 m si adancime de 20 m), intr-o zona in plina dezvoltare, cu acces facil catre Craiova, in zona Damila din sat Preajba Noua. Casa este construita pentru uz personal, din BCA, cu grija si simt de raspundere, fiind realizata cu materiale de calitate si atentie la detalii, inclusiv cu doua placi de beton peste parter si peste etaj, care ii confera o rezistenta structurala sporita, stabilitate in timp si un nivel ridicat de siguranta; acoperisul este realizat din tabla Bilka. Compartimentarea este practica si bine gandita: • parterul este compus din living, bucatarie cu zona de dining, camera tehnica, baie si casa scarii care face legatura cu etajul; • la etaj regasim 3 dormitoare, un dressing si o baie spatioasa; • la subsol este un beci de 10 mp, cu inaltime suficienta pentru a sta in picioare, ideal pentru depozitare produse alimentare sau amenajarea unei mici crame; • podul, cu acces din hol, are o inaltime generoasa, putand fi mansardat sau utilizat ca spatiu suplimentar de depozitare. Proprietatea dispune de fosa septica bine dimensionata, realizata din boltari, cu placa de beton, iar in curte este deja trasa partida de curent, instalatia electrica fiind realizata si in interiorul locuintei. Reteaua locala de apa se afla la poarta, iar gazele sunt disponibile in zona. Imobilul se adreseaza unei familii care isi doreste o locuinta pe care o poate personaliza dupa propriile preferinte, casa fiind la stadiul de nefinisat. Accesul catre proprietate se face pe drumuri asfaltate, cu exceptia aleii pe care este situata casa, aceasta urmand sa fie asfaltata dupa finalizarea lucrarilor de introducere a gazelor. De asemenea, exista posibilitatea achizitionarii terenului alaturat, cu aceeasi suprafata de 284 mp, care beneficiaza de partida de curent separata si autorizatie de construire valabila pentru o locuinta identica, proiectata in oglinda cu casa deja edificata – o oportunitate ideala pentru extindere, investitie sau pentru doua familii. Pentru alte detalii suplimentare sau a vedea cum vi se potriveste proprietatea, va asteptam cu drag la vizionare. Cod oferta / ID BLITZ: P166753
Citește mai mult Citește mai puțin
Nemobilat Beci

Detalii casă

ID anunț: 3824009 Actualizat în: 13 Martie 2026
Nr. camere: 6
Suprafață utilă: 120 mp
Suprafață utilă totală: 120 mp
Nr. băi: 2
Suprafață teren: 284 mp
Front stradal: 14 m
An construcție: 2025
Regim înălțime: P+1E

Istoric preț

Facilități

Utilități
Curent Apă Canalizare Gaze
Mobilat
Nemobilat
Alte spații utile
Pivniță Spațiu depozitare
Amenajare străzi
Iluminat stradal

Puncte de interes

Mijloace transport
transport
Gara Banu Maracine
Mijloace transport aprox. 1418 m
transport
Shell
Mijloace transport aprox. 1831 m
transport
Shell
Mijloace transport aprox. 1845 m
transport
Shell
Mijloace transport aprox. 1851 m
Recreere
shopping
Selgros
Supermarket/Mall aprox. 207 m
shopping
Dedeman
Supermarket/Mall aprox. 360 m
parks
Parc
Recreere aprox. 1013 m
restaurants
Play Club Sportiv Popeci
Restaurante aprox. 1424 m

Proprietăți similare

Casă individuală cu 3 camere cu Teren 473 Mp în Exterior Est
165.000 €
Craiova, Exterior Est
3 camere
104,5 mp
473 mp teren
Casă individuală cu 5 camere cu Teren 191 Mp în Exterior Est
145.000 €
Craiova, Exterior Est
5 camere
132 mp
191 mp teren
Casă individuală cu 3 camere cu Teren 1644 Mp în Exterior Est
157.000 €
Craiova, Exterior Est
3 camere
115 mp
1.644 mp teren
Casă individuală cu 4 camere cu Teren 155 Mp în Exterior Est
145.000 €
Craiova, Exterior Est
4 camere
131 mp
155 mp teren
Casă individuală cu 6 camere cu Teren 624 Mp în Exterior Est
149.000 €
Craiova, Exterior Est
6 camere
160 mp
624 mp teren
Casă individuală cu 4 camere cu Canalizare în Exterior Est
159.000 €
Craiova, Exterior Est
4 camere
100 mp
294 mp teren
Casă individuală cu 4 camere cu Teren 350 Mp în Exterior Nord
145.000 €
Craiova, Exterior Nord
4 camere
120 mp
350 mp teren
Casă individuală cu 5 camere cu Teren 256 Mp în Bariera Vâlcii
159.000 €
Craiova, Bariera Vâlcii
5 camere
168,69 mp
256 mp teren
Casă individuală cu 4 camere cu Teren 300 Mp în Sud-Est
150.000 €
Craiova, Sud-Est
4 camere
80,6 mp
300 mp teren

Abonează-te la newsletter să fii primul care primește cele mai noi recomandări de proprietăți și sfaturi de la experți.