1

Vila spatioasa cu teren de 1.155 mp Tamasi-Corbeanca

170.000 €

Corbeanca, Judeţul Ilfov

Nr. camere:
5
Suprafață utilă:
272 mp
Suprafață teren:
1.155 mp
Nr. niveluri:
1

Descriere casă

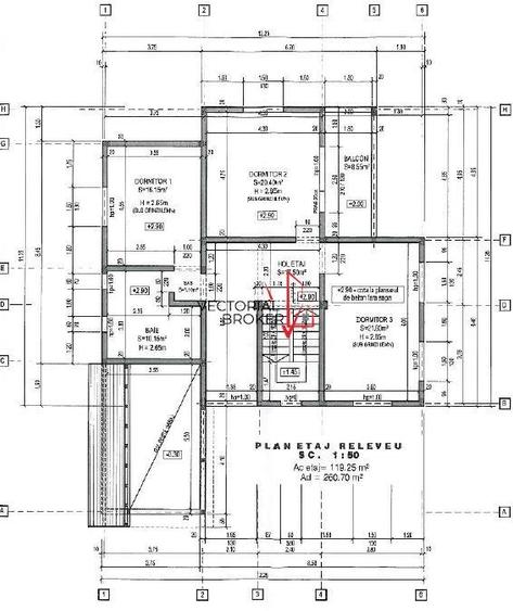
Vectorial Broker vă prezintă o vilă cu potențial deosebit, situată într-una dintre cele mai căutate zone rezidențiale din nordul Capitalei, în Corbeanca, mai exact în localitatea Tamaș. Vila se află intr-o o zonă în continuă dezvoltare, cu acces facil către DN1 și București, dar în același timp ferită de aglomerație și zgomot. Aici te vei bucura de aer curat, verdeață, ideală pentru familiile care își doresc un stil de viață echilibrat, aproape de natură. Proprietatea se desfășoară pe un teren generos de 1.155 mp, cu o deschidere de 23 m, o suprafață aproape dublă față de loturile din zonă - un avantaj rar întâlnit, care îți oferă libertatea de a-ți amenaja o curte spațioasă, piscină, foișor sau grădină de relaxare. Casa are o amprentă la sol de 148 mp și o suprafață desfășurată totală de 272 mp, fiind parțial finalizată - perfectă pentru cei care vor să-și personalizeze locuința în funcție de propriul stil. Construcția, realizată în 2019, dispune de: izolație termică exterioară, acoperiș Lindab, geamuri termopan de calitate, toate utilitățile racordate (gaz, curent, apă, canalizare), incalzire in pardoseala si centrala termica pe gaz garaj alăturat casei pentru confort și siguranță. Planul casei: Parter - 141,45 mp construiți Cameră de zi open-space spațioasă, de 40 mp, ideală pentru momente petrecute în familie Dormitor de 21,60 mp, perfect pentru oaspeți sau birou Bucătărie de 17 mp, luminoasă și ușor accesibilă Baie de 7 mp Garaj de 20 mp, cu acces direct din holul casei Înălțimea camerelor: 2,80 m – conferă senzația de spațiu și aerisire Etaj - 119,25 mp construiți Trei dormitoare cu suprafețe generoase Unul dintre dormitoare beneficiază de ieșire în balcon, ideal pentru cafeaua de dimineață Baie spațioasă Înălțimea camerelor: 2,80 m Curtea liberă, de aproximativ 990 mp, oferă un spațiu vast pentru relaxare și activități în aer liber - un adevărat colț de paradis pentru familie, copii sau animale de companie. Puncte forte: Teren foarte mare comparativ cu vecinii din zonă Construcție solidă, cu toate utilitățile Posibilitatea de a finaliza după propriul gust Se acceptă orice tip de creditare Această vilă nu este doar o casă, ci un proiect cu suflet, o oportunitate de a-ți crea refugiul ideal - locul unde fiecare zi începe cu liniște și aer curat. Contactează-ne pentru o vizionare și descoperă potențialul real al acestei proprietăți! ID intern: VB2426105.
Citește mai mult Citește mai puțin
Centrală proprie

Detalii casă

ID anunț: 2588997 Actualizat în: 15 Aprilie 2026
Nr. camere: 5
Suprafață utilă: 272 mp
Suprafață utilă totală: 272 mp
Nr. băi: 2
Suprafață teren: 1.155 mp
Front stradal: 23 m
An construcție: 2019 (Proiect)
Etaj: Etaj 1 / 1
Regim înălțime: P+1E

Istoric preț

Facilități

Pereți
Faianță Vopsea lavabilă
Podele
Gresie
Izolații termice
Exterior
Ferestre cu geam termopan
PVC
Utilități
Apă Curent Gaze Canalizare
Sistem încălzire
Centrală proprie
Internet
Fibră optică Wireless
Amenajare străzi
Asfaltate
Servicii imobil
Menaj Administrare

Puncte de interes

Recreere
parks
Teren sportiv
Recreere aprox. 1394 m

Proprietăți similare

Casă individuală cu 4 camere cu Canalizare în Corbeanca
179.900 € + TVA
Județul Ilfov, Corbeanca
4 camere
87,83 mp
480 mp teren
Casă individuală cu 4 camere cu Teren 500 Mp în Corbeanca
179.000 €
Județul Ilfov, Corbeanca
4 camere
120 mp
500 mp teren
Casă individuală cu 4 camere cu Canalizare în Corbeanca
179.900 €
Județul Ilfov, Corbeanca
4 camere
180 mp
500 mp teren
Casă individuală cu 5 camere cu Canalizare în Corbeanca
185.000 €
Județul Ilfov, Corbeanca
5 camere
163,5 mp
800 mp teren
Casă individuală cu 4 camere cu Teren 500 Mp în Corbeanca
185.000 €
Județul Ilfov, Corbeanca
4 camere
120 mp
500 mp teren
Casă individuală cu 4 camere cu Canalizare în Corbeanca
185.000 € + TVA
Județul Ilfov, Corbeanca
4 camere
113 mp
685 mp teren
Casă individuală cu 3 camere cu Canalizare în Corbeanca
180.000 €
Județul Ilfov, Corbeanca
3 camere
106 mp
600 mp teren
Casă individuală cu 4 camere cu Canalizare în Corbeanca
185.000 €
Județul Ilfov, Corbeanca
4 camere
85 mp
470 mp teren
Casă individuală cu 4 camere cu Teren 500 Mp în Corbeanca
185.000 €
Județul Ilfov, Corbeanca
4 camere
110 mp
500 mp teren

Abonează-te la newsletter să fii primul care primește cele mai noi recomandări de proprietăți și sfaturi de la experți.