REV2005183 Vila Burlacului Corbeanca

357.000 €

Corbeanca, Judeţul Ilfov

Nr. camere:
4
Suprafață utilă:
119 mp
Suprafață teren:
1.082 mp

Descriere casă

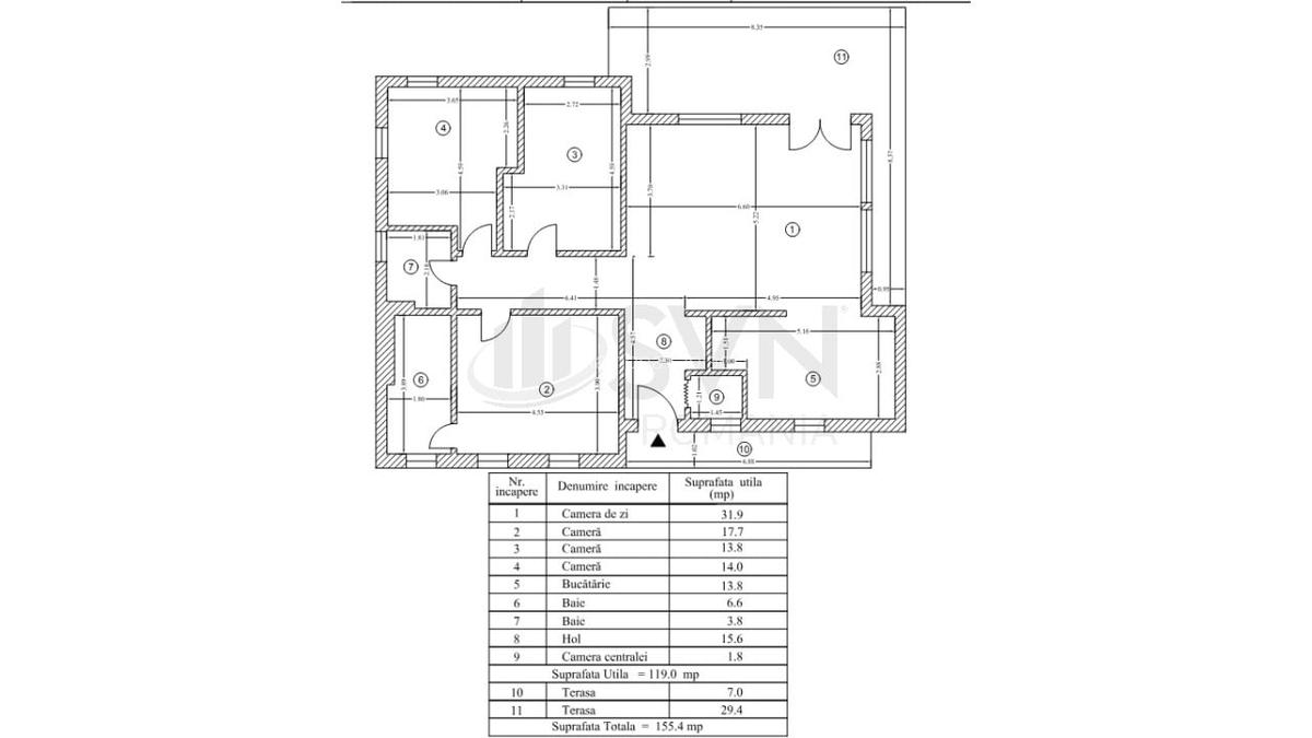
SVN Residentialist Floreasca va ofera spre vanzare o vila moderna, situata in localitatea Tamasi, comuna Corbeanca. Proprietatea, construita in perioada 2024-2025, este ridicata pe un teren generos de 1082 mp si are o suprafata construita desfasurata de 182 mp, respectiv 156 mp utili. Casa este de tip parter si a fost gandita pentru a oferi confort si functionalitate. Livingul spatios, de 25 mp, se imbina armonios cu zona de dining si cu bucataria open space de 14 mp, care poate fi inchisa la nevoie. Zona de noapte este formata din trei dormitoare, dintre care unul matrimonial cu baie proprie de 7 mp, un birou ce poate fi utilizat si ca dormitor, precum si o a doua baie moderna. Spatiul este completat de o camera tehnica si o terasa generoasa ce se deschide catre gradina. In curte se afla un foisor de 16 mp, o magazie utilata si locuri de parcare atat in interiorul curtii, cat si in exterior. Proprietatea este eficienta energetic, avand certificat A+ si fiind incadrata in standardul NZEB. Amenajarea interioara a fost realizata cu sprijinul unui designer, care a conturat un spatiu unitar, cald si primitor. Mobilierul este facut la comanda, iar electrocasnicele sunt noi, in garantie, apartinand unor marci de top precum Electrolux si Samsung. Incalzirea in pardoseala, pompa de caldura Daikin, cele patru aparate de aer conditionat, tamplaria PVC Gealan cu geam low-E, precum si finisajele premium – ceramica Florim si obiectele sanitare Hansgrohe – confirma nivelul inalt de calitate al casei. Curtea este amenajata cu sistem automatizat de irigatii, are put propriu cu statie de dedurizare si fosa septica, iar accesul se face printr-o poarta automata. Magazia este dotata cu echipamente pentru intretinerea gazonului si scule necesare gospodariei. Aceasta vila reprezinta alegerea ideala pentru cei care isi doresc intimitate si liniste, fiind amplasata intr-o zona retrasa, fara vecini apropiati, dar cu acces facil catre oras. Casa este complet mobilata si utilata, astfel incat viitorii proprietari se pot bucura de o mutare imediata, intr-un camin modern, elegant si confortabil. Pentru mai multe informatii va rugam sa ne contactati, noi va asteptam la vizionare si in weekend!
Citește mai mult Citește mai puțin
Grădină Centrală proprie

Detalii casă

ID anunț: 493111 Actualizat în: 15 Martie 2026
Nr. camere: 4
Suprafață utilă: 119 mp
Suprafață utilă totală: 119 mp
Nr. băi: 1
Suprafață teren: 1.082 mp
An construcție: 2024

Istoric preț

Facilități

Pereți
Faianță
Podele
Gresie Parchet
Ferestre cu geam termopan
PVC
Utilități
Gaze Apă Curent Supraveghere video
Sistem încălzire
Centrală proprie
Diverse
Sistem de alarmă Senzor de fum
Alte spații utile
Spațiu depozitare
Facilități imobil
Grădină Spații agrement
Servicii imobil
Supraveghere video

Puncte de interes

Recreere
parks
Teren sportiv
Recreere aprox. 374 m
parks
Pădurea Tămaşi
Recreere aprox. 1289 m
parks
Pădurea Corbeanca
Recreere aprox. 1879 m

Proprietăți similare

Casă individuală cu 5 camere cu Canalizare în Corbeanca
390.000 € + TVA
Județul Ilfov, Corbeanca
5 camere
150 mp
475 mp teren
Casă individuală cu 4 camere cu Teren 315 Mp în Corbeanca
340.000 €
Județul Ilfov, Corbeanca
4 camere
134,9 mp
315 mp teren
Casă individuală cu 5 camere cu Garaj în Corbeanca
345.000 €
Județul Ilfov, Corbeanca
5 camere
220 mp
1.000 mp teren
Casă individuală cu 5 camere cu Canalizare în Corbeanca
377.000 € + TVA
Județul Ilfov, Corbeanca
5 camere
198 mp
510 mp teren
Casă individuală cu 5 camere cu Canalizare în Corbeanca
380.000 € + TVA
Județul Ilfov, Corbeanca
5 camere
200 mp
723 mp teren
Casă individuală cu 5 camere cu Canalizare în Corbeanca
365.000 €
Județul Ilfov, Corbeanca
5 camere
230 mp
490 mp teren
Casă individuală cu 5 camere cu Canalizare în Corbeanca
390.000 €
Județul Ilfov, Corbeanca
5 camere
150 mp
457 mp teren
Casă individuală cu 5 camere cu Canalizare în Corbeanca
347.000 € + TVA
Județul Ilfov, Corbeanca
5 camere
198 mp
600 mp teren
Casă individuală cu 5 camere cu Teren 600 Mp în Corbeanca
335.000 €
Județul Ilfov, Corbeanca
5 camere
152 mp
600 mp teren

Abonează-te la newsletter să fii primul care primește cele mai noi recomandări de proprietăți și sfaturi de la experți.