Casa 4 camere 120mp | 0 comision | Corbeanca Laguna Albastra | 280mp teren

240.000 €

Corbeanca, Judeţul Ilfov

Nr. camere:
4
Suprafață utilă:
120 mp
Suprafață teren:
280 mp
Nr. niveluri:
1

Descriere casă

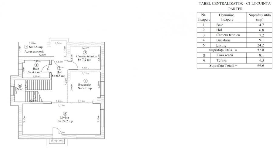
0 comision. Va oferim spre achizitie fara comision o casa individuala cu 4 camere si 120mp localizata in Corbeanca pe strada Laguna Albastra, intr-o zona foarte linistita. Casa de la strada cu teren de 280mp se vinde la pretul de 240 000 EUR (nu se adauga TVA). Casa din plan secund si teren de 480mp se vinde la pretul de 255 000 EUR (nu se adauga TVA). Pretul mai poate fi negociat. Asa cum v-am obisnuit: - toate ofertele Monga Imobiliare sunt fara comision din partea cumparatorului - pentru ca iubim transparenta, toate preturile afisate de Monga Imobiliare includ TVA (daca se aplica). Pretul afisat de noi este intotdeauna pretul final pe care il vei achita. Acceseaza Monga Imobiliare (Monga RO) pentru mai mai multe poze si pentru intreg portofoliul nostru de case si apartamente din Otopeni, Tunari, Balotesti, Corbeanca, Pipera si chiar nordul Bucurestiului. Punctele forte al acestei case il reprezinta compartimentarea eficienta si functionala, finisajele de calitate si zona foarte linistita. Despre spatiu: La parter, accesul se face intr-un hol ce comunica cu o baie, camera tehnica spatioasa ce permite spatiu amplu de depozitare, scara, si o zona spatioasa cu living, dining si bucatarie deschisa. Din living se poate accesa curtea. La etaj avem dormitorul matrimonial cu dressing si baie, inca o baie si doua dormitoare (dintre care unul cu balcon) Alte detalii: - incalzire prin pardoseala - centrala pe gaz - tamplari tip Salamander cu geam Tripan - priza pentru incarcare masina elecctrica - curte amenajata cu gazon si sistem de irigatie automat Casa este localizata intr-o zona foarte linistita, cu acces rapid catre DNA1 Value Center, DN1 si Bucuresti. Apeleaza cu incredere la Monga Imobiliare. Suntem alaturi de tine pana la finalizarea tranzactiei si te ajutam sa treci cu incredere si in cunostinta de cauza prin toti pasii necesari. Te putem ajuta in pregatirea documentelor, selectia notarului, obtinerea finantarii, si altele. Te asteptam sa ne contactezi.
Citește mai mult Citește mai puțin
Centrală proprie

Detalii casă

ID anunț: 262652 Actualizat în: 13 Februarie 2026
Nr. camere: 4
Suprafață utilă: 120 mp
Suprafață utilă totală: 120 mp
Nr. băi: 3
Suprafață teren: 280 mp
Regim înălțime: P+1E

Istoric preț

Facilități

Utilități
Curent Apă Canalizare Gaze
Sistem încălzire
Centrală proprie
Amenajare străzi
Asfaltate

Puncte de interes

Școală
education
Scoala Nr. 1 Corbeanca
Învățământ aprox. 1100 m
education
Scoala generala
Învățământ aprox. 1242 m
education
Scoala Nr 1
Învățământ aprox. 1242 m
Recreere
parks
Pădurea Corbeanca
Recreere aprox. 754 m
parks
Pădurea Tămaşi
Recreere aprox. 784 m
parks
Teren sportiv
Recreere aprox. 1086 m

Proprietăți similare

Casă individuală cu 4 camere cu Teren 550 Mp în Corbeanca
235.000 €
Județul Ilfov, Corbeanca
4 camere
105 mp
550 mp teren
Casă individuală cu 4 camere cu Canalizare în Corbeanca
220.000 €
Județul Ilfov, Corbeanca
4 camere
140 mp
250 mp teren
Casă individuală cu 4 camere cu Canalizare în Corbeanca
255.000 €
Județul Ilfov, Corbeanca
4 camere
119,78 mp
500 mp teren
Casă individuală cu 4 camere cu Canalizare în Corbeanca
240.000 €
Județul Ilfov, Corbeanca
4 camere
198 mp
480 mp teren
Casă individuală cu 5 camere cu Canalizare în Corbeanca
249.000 €
Județul Ilfov, Corbeanca
5 camere
230 mp
490 mp teren
Casă individuală cu 6 camere cu Teren 700 Mp în Corbeanca
260.000 €
Județul Ilfov, Corbeanca
6 camere
160 mp
700 mp teren
Casă individuală cu 5 camere cu Teren 450 Mp în Corbeanca
255.000 €
Județul Ilfov, Corbeanca
5 camere
141 mp
450 mp teren
Casă individuală cu 4 camere cu Canalizare în Corbeanca
235.000 €
Județul Ilfov, Corbeanca
4 camere
170 mp
293 mp teren
Casă individuală cu 3 camere cu Canalizare în Corbeanca
224.700 €
Județul Ilfov, Corbeanca
3 camere
100 mp
400 mp teren

Abonează-te la newsletter să fii primul care primește cele mai noi recomandări de proprietăți și sfaturi de la experți.