În acest moment, nu se primesc cereri pentru această proprietate. Vă sugerăm să verificați alte oferte similare disponibile.
Vezi anunțuri
Mai mult de un an
Casa individuala cu panorama, 160mp, teren de 480mp, Oasului
355.000 €
Iris, Cluj-Napoca
Descriere casă
Sesizează o problemă
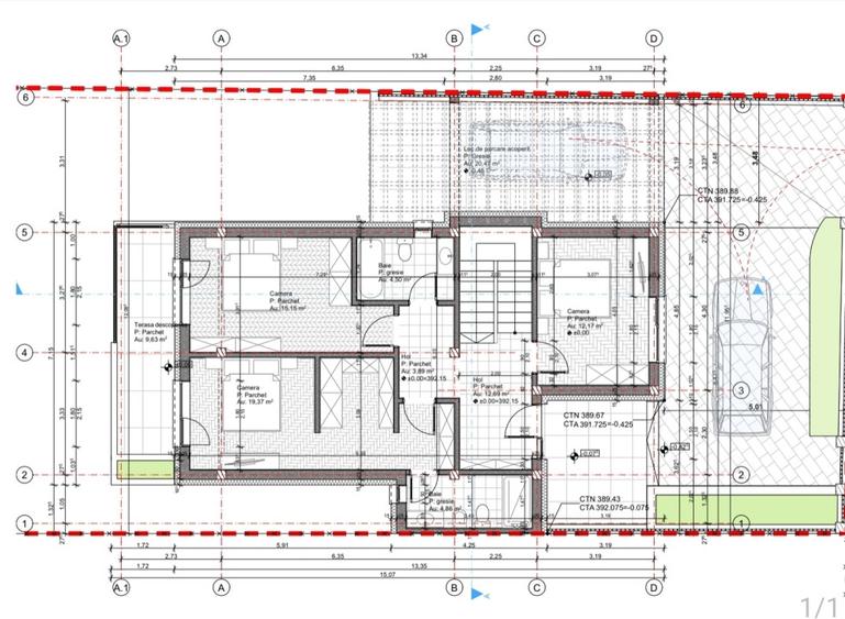
Va propunem spre vanzare o casa individuala cu o suprafata de 160mp utili, plus doua terase cu o suprafata de 30 mp si un garaj de 20 mp.
Pozitionare: Sud-vestica, cu panorama frumoasa spre Centru, Marasti si Dambu Rotund
Zona: Linistita si deosebita, ideala pentru o locuinta de vis
Suprafata teren: 480 mp
Compartimentare:
-Living spatios
-Bucatarie
-4 dormitoare generoase
-4 bai moderne
Se poate face si o piscina exterioara pentru suma de aproximativ 10k-15k Euro in functie de dimensiuni .
STRADA ESTE ASFALTATĂ!!! STATIA DE BUS LA 200 DE METRII
Casa este in stadiu de proiect!
Compartimentarea inca se mai poate face dupa preferinta dumneavoastra
Aceasta proprietate combina confortul cu o pozitie privilegiata, oferind un loc perfect pentru relaxare si viata de familie.
Pentru mai multe detalii sau pentru a programa o vizionare, nu ezitati sa ne contactati!
Id extern : P8143
Citește mai mult
Citește mai puțin
Piscină
Aer condiționat
Detalii casă
ID anunț: 137276
Actualizat în: 04 Martie 2026
Nr. camere:
5
Suprafață utilă:
160 mp
Suprafață utilă totală:
160 mp
Nr. băi:
4
Suprafață teren:
480 mp
An construcție:
2025
Regim înălțime:
P+1E
Istoric preț
Facilități
Utilități
Curent
Apă
Canalizare
Amenajare străzi
Asfaltate
Izolații termice
Exterior
Ferestre cu geam termopan
PVC
Facilități imobil
Piscină exterioară
Puncte de interes
Mijloace transport
Pometului Vest
Mijloace transport
aprox.
274
m
Statia Pometului, Linia 39
Mijloace transport
aprox.
283
m
Pometului Est
Mijloace transport
aprox.
289
m
Intermediara Vest
Mijloace transport
aprox.
397
m
Școală
Scoala Generala Nr. 1
Învățământ
aprox.
474
m
Grăd.Floare de iris
Învățământ
aprox.
925
m
Grup Şcolar Aurel Vlaicu
Învățământ
aprox.
1452
m
Grup Şcolar Industrial Tehnofrig
Învățământ
aprox.
1455
m
Recreere
Auchan Iris
Supermarket/Mall
aprox.
898
m
Junior Residence Park
Recreere
aprox.
1391
m
Parc
Recreere
aprox.
1469
m
Cortina Line
Restaurante
aprox.
1974
m
Abonează-te la newsletter să fii primul care primește cele mai noi recomandări de proprietăți și sfaturi de la experți.
Căutări similare
- Case individuale de vânzare în Iris
- Case individuale de vânzare în Cluj-Napoca
- Case individuale de vânzare în Dâmbul Rotund
- Case individuale de vânzare în Borhanci
- Case individuale de vânzare în Andrei Mureșanu
- Case individuale de vânzare în Făget
- Case individuale de vânzare în Gheorgheni
- Case individuale de vânzare în Europa
- Case individuale de vânzare în Someșeni
- Case individuale de vânzare în Central
- Case individuale de vânzare în Gruia
- Case individuale de vânzare în Mănăștur