Casa individuală 4 camere in Chinteni, teren 700 mp, utili 157 mp

275.000 €

Exterior Nord, Cluj-Napoca

Nr. camere:
4
Suprafață utilă:
157 mp
Suprafață teren:
700 mp
Nr. niveluri:
1

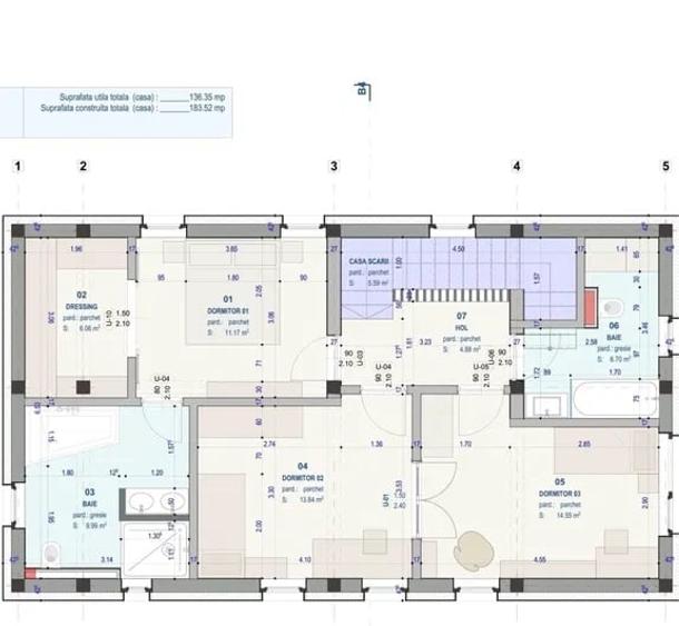
Descriere casă

Va oferim spre vanzare casa individuala singur in curte in cartierul Chinteni. Casa este compusa din bucatarie,living,3 camere si 3 bai cu geam. Se vinde nemobilata si detine parcare si garaj. Constructia este dispusa pe P+E. Casa este semifinisata cu centrala termica, panouri solare, incalzire in pardoseala, termopane, usa metalica, izolatie termica. Utilitati: gaz,curent,apa,canalizare An constructie:2023 Front:16 m Suprafata utila: 157 mp Teren: 700 mp ID 1854 facebook: praedium investments
Citește mai mult Citește mai puțin
Nemobilat Grădină Curte Centrală proprie Necesită renovare

Detalii casă

ID anunț: 186044 Actualizat în: 24 Februarie 2026
Nr. camere: 4
Suprafață utilă: 157 mp
Suprafață utilă totală: 157 mp
Nr. băi: 3
Suprafață teren: 700 mp
An construcție: 2023
Regim înălțime: P+1E

Istoric preț

Facilități

Pereți
Vopsea lavabilă
Ușă intrare
Metal PVC
Stare interior
Necesită renovare
Izolații termice
Exterior
Ferestre cu geam termopan
PVC
Contorizare
Apometre Contor gaz
Mobilat
Nemobilat
Diverse
Scară interioară
Alte spații utile
Spațiu depozitare Dressing WC Serviciu
Facilități imobil
Acoperiș Curte Grădină
Utilități
Curent Apă Canalizare
Sistem încălzire
Centrală proprie
Amenajare străzi
Asfaltate Mijloace de transport în comun Iluminat stradal

Puncte de interes

Mijloace transport
transport
M-Xamus V
Mijloace transport aprox. 663 m
transport
M-Xamus
Mijloace transport aprox. 663 m
transport
M-Xamus E
Mijloace transport aprox. 670 m
transport
M-Chinteni
Mijloace transport aprox. 1081 m

Proprietăți similare

Casă individuală cu 5 camere cu Canalizare în Exterior Nord
280.000 €
Cluj-Napoca, Exterior Nord
5 camere
120 mp
545 mp teren
Casă individuală cu 5 camere cu Canalizare în Exterior Nord
285.000 €
Cluj-Napoca, Exterior Nord
5 camere
160 mp
200 mp teren
Casă individuală cu 1 camere cu Canalizare în Borhanci
285.000 €
Cluj-Napoca, Borhanci
1 camere
103 mp
103 mp teren
Casă individuală cu 2 camere cu Canalizare în Dâmbul Rotund
295.000 €
Cluj-Napoca, Dâmbul Rotund
2 camere
60,8 mp
490 mp teren
Casă individuală cu 3 camere cu Canalizare în Dâmbul Rotund
260.000 €
Cluj-Napoca, Dâmbul Rotund
3 camere
80 mp
430 mp teren
Casă individuală cu 1 camere cu Canalizare în Someșeni
280.000 €
Cluj-Napoca, Someșeni
1 camere
85 mp
879 mp teren
Casă individuală cu 2 camere cu Canalizare în Dâmbul Rotund
298.500 €
Cluj-Napoca, Dâmbul Rotund
2 camere
90 mp
300 mp teren
Casă individuală cu 3 camere cu Canalizare în Someșeni
255.000 €
Cluj-Napoca, Someșeni
3 camere
77 mp
360 mp teren
Casă individuală cu 4 camere cu Teren 2700 Mp în Exterior Vest
280.000 €
Cluj-Napoca, Exterior Vest
4 camere
290 mp
2.700 mp teren

Abonează-te la newsletter să fii primul care primește cele mai noi recomandări de proprietăți și sfaturi de la experți.