Casă individuala modernă cu 6 camere, garaj, pivniță si teren generos 650 mp

420.000 €

Cisnădie, Judeţul Sibiu

Nr. camere:
5
Suprafață utilă:
250 mp
Suprafață teren:
650 mp
Tip locuință:
Individuală

Descriere casă

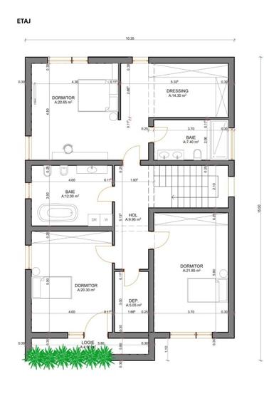
Această locuință unifamilială deosebită este situată într-o zonă liniștită și gata dezvoltata – Cartierul Arhitecților, Sibiu – și oferă un echilibru perfect între spațiu, confort și calitate. Cu o arhitectură modernă, compartimentare eficientă și finisaje premium, casa este ideală pentru o familie care își dorește un cămin durabil, eficient energetic și elegant. Suprafata utila : 216 mp + 45 mp subsol Suprafata teren : 650 mp Regim de înălțime: Subsol + Parter + Etaj Subsol – 66 mp • Beci: 27.85 mp • Spațiu tehnic: 17.75 mp Parter – 136 mp • Living spațios: 35.40 mp • Bucătărie închisă: 18.10 mp • Birou: 12.05 mp • Grup sanitar: 6.30 mp • Hol: 11.35 mp • Garaj: 21.85 mp • Terasă acoperită: 36.20 mp Etaj – 143.85 mp • 3 dormitoare spațioase (20.30 – 21.85 mp) • Dormitor matrimonial cu dressing (14.30 mp) și baie proprie (12.00 mp) • Baie secundară: 7.40 mp • Hol: 9.95 mp • Depozitare: 5.05 mp • Logie: 4.90 mp Structură și eficiență energetică • Structură solidă din beton armat și zidărie tip Porotherm – durabilitate și izolație excelentă. • Acoperiș în două ape, cu învelitoare din țiglă ceramică – estetică și rezistență în timp. • Izolație acoperiș cu vata minerala și pereți exteriori cu izolatie energetică ridicată. • Certificat energetic clasa A. 🛋️ Confort interior • Înălțime generoasă a camerelor pentru un plus de spațialitate. • Ferestre mari pentru lumină naturală. • Preinstalare pentru sistem de climatizare (AC). • Încălzire în pardoseală pe toate nivelurile – confort termic uniform. 🏠 Funcționalitate și versatilitate • Birou la parter – ideal pentru work-from-home sau camera vizitatori • Garaj integrat cu acces direct în casă. • Spațiu tehnic și beci – perfect pentru depozitare, vinotecă sau hobby. • Dressing separat în dormitorul matrimonial. • Terasă exterioara naturală a spațiului de zi. 📍 Poziționare și accesibilitate • Cartier rezidențial complet dezvoltat – pe stradă nu mai sunt alte terenuri disponibile pentru construcții. • Acces rapid spre oraș, centură și autostradă. Pretul afisat este pentru predare la stadiul de gri avansat. Exterior se preda la cheie. Exclus agentii imobiliare.
Citește mai mult Citește mai puțin

Detalii casă

ID anunț: Actualizat în: 08 Februarie 2026
Tip locuință: Individuală
Nr. camere: 5
Suprafață utilă: 250 mp
Suprafață teren: 650 mp
An construcție: 2026 (În construcție)

Facilități

Comision
0%

Puncte de interes

Mijloace transport
transport
Ciresica
Mijloace transport aprox. 1306 m
transport
Ciresica 2
Mijloace transport aprox. 1317 m
transport
Cimitir 1
Mijloace transport aprox. 1407 m
transport
Cimitir 2
Mijloace transport aprox. 1450 m
Școală
education
Gradinita cu program prelungit nr. 43
Învățământ aprox. 1398 m
education
Gradinita Nr. 5
Învățământ aprox. 1461 m
education
Scoala Generala Nr. 9
Învățământ aprox. 1844 m
education
Scoala Gimnaziala nr. 16
Învățământ aprox. 1886 m
Recreere
parks
Georgescu Parc
Recreere aprox. 480 m
shopping
InterEx
Supermarket/Mall aprox. 1363 m
shopping
Profi
Supermarket/Mall aprox. 1364 m
restaurants
Bar Cesar
Restaurante aprox. 1469 m

Proprietăți similare

Casă individuală cu 5 camere cu Canalizare în Central
450.000 €
Județul Sibiu, Cisnădie
5 camere
245 mp
1 mp teren
Casă individuală cu 7 camere cu Canalizare în Vasile Aaron
449.000 €
Sibiu, Vasile Aaron
7 camere
297 mp
318 mp teren
Casă individuală cu 5 camere cu Teren 650 Mp în Mihai Viteazul
420.000 €
Sibiu, Mihai Viteazul
5 camere
220 mp
650 mp teren
Casă individuală cu 5 camere cu Canalizare în Calea Dumbrăvii
386.000 €
Sibiu, Calea Dumbrăvii
5 camere
184,4 mp
310 mp teren
Casă individuală cu 3 camere cu Canalizare în Trei Stejari
450.000 €
Sibiu, Trei Stejari
3 camere
100 mp
375 mp teren
Casă individuală cu 4 camere cu Canalizare în Cisnădioara
378.000 €
Județul Sibiu, Cisnădioara
4 camere
155 mp
1.170 mp teren
Casă individuală cu 5 camere cu Canalizare în Șelimbăr
395.000 €
Județul Sibiu, Șelimbăr
5 camere
170 mp
922 mp teren
Casă individuală cu 10 camere cu Piscina în Păltiniș
420.000 €
Județul Sibiu, Păltiniș
10 camere
350 mp
250 mp teren
Casă individuală cu 4 camere cu Canalizare în Arhitecților - Calea Cisnădiei
454.000 €
Sibiu, Arhitecților - Calea Cisnădiei
4 camere
120 mp
249 mp teren

Abonează-te la newsletter să fii primul care primește cele mai noi recomandări de proprietăți și sfaturi de la experți.