Casa de vanzare Brasov

259.000 €

Griviţei, Braşov

Nr. camere:
5
Suprafață utilă:
96 mp
Suprafață teren:
340 mp
Nr. niveluri:
1

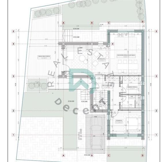
Descriere casă

Casa cu potential in inima Brasovului - cu proiect pentru renovare si extindere. O oportunitate rara: vand casa situata in centrul istoric al Brasovului, intr-o zona cu acces facil catre principalele atractii turistice, restaurante, cafenele si institutii culturale.Imobilul este o constructie veche, rezistenta, cu o curte generoasa si beci. Se vinde impreuna cu un proiect de arhitectura complet si bine gandit, inclusiv toate avizele necesare pentru renovare si extindere - ideal pentru cei care doresc sa transforme aceasta proprietate intr-o locuinta de vis sau intr-o investitie cu randament excelent. Proiect gandit ca pentru locuinta personala, cu 4 dormitoare, living si bucatarie spatioase, la subsol - pivnita si spatii de depozitare. Mai multe detalii tehnice disponibile la cerere.Daca esti in cautarea unui proiect cu suflet, in centrul Brasovului, te invit sa descoperi aceasta proprietate. Nu mai trebuie sa umbli dupa acte si avize. Dosarul este complet si trebuie doar sa demarezi lucrarea. Pentru mai multe informatii si vizionari, nu ezita sa ma contactezi!
Citește mai mult Citește mai puțin
Necesită renovare

Detalii casă

ID anunț: 2513988 Actualizat în: 24 Aprilie 2026
Nr. camere: 5
Suprafață utilă: 96 mp
Suprafață utilă totală: 96 mp
Nr. băi: 1
Suprafață teren: 340 mp
An construcție: 1940
Regim înălțime: P+1E

Istoric preț

Facilități

Podele
Dușumea
Ușă intrare
Lemn
Uși interior
Lemn
Stare interior
Necesită renovare

Puncte de interes

Mijloace transport
transport
Universitate
Mijloace transport aprox. 273 m
transport
Statia "Universitate", linia 3,5barat,16
Mijloace transport aprox. 285 m
transport
Universitate
Mijloace transport aprox. 299 m
transport
Opera Brasov
Mijloace transport aprox. 374 m
Școală
education
Universitatea Transilvania
Învățământ aprox. 23 m
education
Campus Colina Universitatii
Învățământ aprox. 104 m
education
Corpul B
Învățământ aprox. 150 m
education
Corpul C
Învățământ aprox. 152 m
Recreere
parks
Small green area
Recreere aprox. 229 m
restaurants
Pensiunea Ambra
Restaurante aprox. 245 m
shopping
Profi
Supermarket/Mall aprox. 404 m
shopping
Sergiana
Supermarket/Mall aprox. 419 m

Proprietăți similare

Casă individuală cu 4 camere cu Canalizare în Exterior Est
254.800 €
Brașov, Exterior Est
4 camere
126 mp
525 mp teren
Casă individuală cu 3 camere cu Canalizare în Exterior Est
274.800 €
Brașov, Exterior Est
3 camere
103 mp
500 mp teren
Casă individuală cu 4 camere cu Canalizare în Central
265.000 €
Brașov, Central
4 camere
125 mp
55 mp teren
Casă individuală cu 4 camere cu Canalizare în Exterior Est
258.700 €
Brașov, Exterior Est
4 camere
114 mp
500 mp teren
Casă individuală cu 4 camere cu Canalizare în Stupini
250.000 € + TVA
Brașov, Stupini
4 camere
120 mp
230 mp teren
Casă individuală cu 10 camere cu Teren 700 Mp în Exterior Est
255.000 €
Brașov, Exterior Est
10 camere
200 mp
700 mp teren
Casă individuală cu 5 camere cu Teren 1700 Mp în Exterior Est
280.000 €
Brașov, Exterior Est
5 camere
211 mp
1.700 mp teren
Casă individuală cu 4 camere cu Canalizare în Centrul Istoric
235.000 €
Brașov, Centrul Istoric
4 camere
130 mp
Casă individuală cu 3 camere cu Teren 1000 Mp în Exterior Est
270.000 €
Brașov, Exterior Est
3 camere
92 mp
1.000 mp teren

Abonează-te la newsletter să fii primul care primește cele mai noi recomandări de proprietăți și sfaturi de la experți.