Casa 10 camere, 5 bai, 380 mp teren - zona Astra

369.000 €

Astra, Braşov

Nr. camere:
10
Suprafață utilă:
265 mp
Suprafață teren:
250 mp
Nr. niveluri:
1

Descriere casă

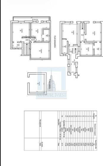
A.S. EMPIRE INVEST va prezintă o proprietate compusă din doua apartamente situată în cartier Astra/Brașov, o zonă de case foarte apreciată. Casă spațioasă ideală pentru închiriere in regim hotelier sau lunar. Detalii generale: Suprafață construită: 282 mp (inclusiv beci ) Suprafață utilă: 272 mp Teren aferent: 380 mp An construcție: 1980 Structură: mixtă (cărămidă + lemn) Compartimentare și facilități: 10 dormitoare complet mobilate 5 băi 1 bucătărie complet utilată + 2 chicinete Pivniță spațioasă Foișor și zonă de grătar în curte Parcare proprie Încălzirea se realizează prin centrală pe gaz, iar proprietatea beneficiază de apă curentă, curent electric, canalizare și internet. Se vinde complet mobilată și utilată, fiind pregătită pentru utilizare imediată, fie ca locuință personală, fie ca pensiune funcțională. Avantaje și potențial: Locație excelentă, într-o zonă de top – aproape de piață si centre comerciale Preț de vânzare: 369.000 € (ușor negociabil) https:// /casa-vila-10-camere-de-vanzare-astra-brasov-cp3024009/ Alin Soldan/ AS EMPIRE INVEST -
Citește mai mult Citește mai puțin
Mobilat Curte Calorifere Centrală proprie Beci

Detalii casă

ID anunț: 4108940 Actualizat în: 14 Aprilie 2026
Nr. camere: 10
Suprafață utilă: 265 mp
Suprafață utilă totală: 265 mp
Nr. băi: 5
Suprafață teren: 250 mp
Front stradal: 12 m
An construcție: 1980
Regim înălțime: P+1E

Istoric preț

Facilități

Pereți
Faianță Vopsea lavabilă
Podele
Gresie Parchet
Ușă intrare
Parchet Lemn
Uși interior
Lemn
Izolații termice
Exterior
Contorizare
Apometre Contor căldură Contor gaz
Bucătărie
Mobilată
Mobilat
Mobilat
Alte spații utile
Pivniță
Facilități imobil
Curte
Utilități
Curent Apă Canalizare Gaze Cablu
Sistem încălzire
Calorifere Centrală proprie
Internet
Cablu
Amenajare străzi
Iluminat stradal Mijloace de transport în comun Asfaltate

Puncte de interes

Mijloace transport
transport
Piata Decebal
Mijloace transport aprox. 245 m
transport
Statia "Piata Decebal", linia 3,5barat,30,7,31,32,10
Mijloace transport aprox. 258 m
transport
Liceul de Informatica
Mijloace transport aprox. 272 m
transport
Piata Decebal
Mijloace transport aprox. 281 m
Școală
education
Colegiul National de Informatica Grigore Moisil
Învățământ aprox. 317 m
education
Colegiul Naţional de Informatică "Grigore Moisil" Braşov
Învățământ aprox. 349 m
education
Gradinita particulara Tweety
Învățământ aprox. 446 m
education
Universitatea "George Baritiu"
Învățământ aprox. 447 m
Recreere
parks
Teren sportiv
Recreere aprox. 95 m
shopping
Magazin Alimentar
Supermarket/Mall aprox. 256 m
restaurants
Cramele lui Decebal
Restaurante aprox. 261 m
shopping
Carrefour Market
Supermarket/Mall aprox. 289 m

Proprietăți similare

Casă individuală cu 6 camere semidecomandat cu Canalizare în Astra
350.000 €
Brașov, Astra
6 camere
235 mp
403 mp teren
Casă individuală cu 6 camere cu Canalizare în Central
340.000 €
Brașov, Central
6 camere
265 mp
277 mp teren
Casă individuală cu 4 camere cu Canalizare în Griviței
360.000 €
Brașov, Griviței
4 camere
184 mp
200 mp teren
Casă individuală cu 6 camere cu Garaj în Schei
340.000 €
Brașov, Schei
6 camere
240 mp
307 mp teren
Casă individuală cu 5 camere cu Canalizare în Stupini
350.000 €
Brașov, Stupini
5 camere
154 mp
430 mp teren
Casă individuală cu 5 camere cu Teren 212 Mp în Brașovul Vechi
340.000 €
Brașov, Brașovul Vechi
5 camere
116 mp
212 mp teren
Casă individuală cu 6 camere cu Teren 233 Mp în Schei
370.000 €
Brașov, Schei
6 camere
171 mp
233 mp teren
Casă individuală cu 4 camere cu Canalizare în Central
349.000 €
Brașov, Central
4 camere
170 mp
300 mp teren
Casă individuală cu 3 camere cu Canalizare în Brașovul Vechi
348.000 €
Brașov, Brașovul Vechi
3 camere
105 mp
500 mp teren

Abonează-te la newsletter să fii primul care primește cele mai noi recomandări de proprietăți și sfaturi de la experți.