În acest moment, nu se primesc cereri pentru această proprietate. Vă sugerăm să verificați alte oferte similare disponibile.
Vezi anunțuri
Mai mult de un an
Vila 6 camere, teren 400 mp-Prelungirea Ghencea Bragadiru!
305.000 €
Bragadiru, Judeţul Ilfov
Descriere casă
Sesizează o problemă
Vila individuala Parter+Etaj+Mansarda face parte dintr-un ansamblu privat situat in zona Bragadiru-Prelungirea Ghencea.
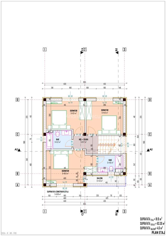
Suprafete construite: parter-82 mp, etaj-82 mp, mansarda-70mp
Teren: 400 mp
Parter: hol, dormitor/birou, baie, living + dinning, bucatarie, terasa 14 mp
Etaj: hol, dormitor matrimonial cu baie proprie si balcon, 2 dormitoare, baie
Mansarda: acces pe scara de beton, placa peste etaj, se poate finisa la cerere
Utilitati: dispune de incalzire in pardoseala, canalizare, apa, gaze si curent electric
Finisaje: predare la cheie cu dotari de ultima generatie - gresie, faianta, parchet, usi interior si exterior, centrala termica, incalzire prin pardoseala, bai utilate complet. tamplarie pvc si geam termopan
Pret: 305000 euro! tva inclus
Pentru detalii si vizionari:
Andreea
Citește mai mult
Citește mai puțin
Grădină
Centrală proprie
Detalii casă
ID anunț: 260606
Actualizat în: 04 Martie 2026
Nr. camere:
6
Suprafață utilă:
180 mp
Suprafață utilă totală:
180 mp
Nr. băi:
3
Suprafață teren:
400 mp
An construcție:
2025
Regim înălțime:
P+1E
Istoric preț
Facilități
Pereți
Faianță
Vopsea lavabilă
Podele
Gresie
Ușă intrare
Metal
PVC
Uși interior
Celulare
PVC
Izolații termice
Exterior
Ferestre cu geam termopan
PVC
Contorizare
Apometre
Contor gaz
Diverse
Telecomandă poartă acces auto
Alte spații utile
Spațiu depozitare
Dressing
WC Serviciu
Facilități imobil
Grădină
Grădină amenajată
Utilități
Curent
Apă
Canalizare
Gaze
Cablu
Sistem încălzire
Centrală proprie
Internet
Cablu
Amenajare străzi
Asfaltate
Mijloace de transport în comun
Iluminat stradal
Puncte de interes
Mijloace transport
Primacom
Mijloace transport
aprox.
1153
m
Ansamblul Primavara
Mijloace transport
aprox.
1454
m
Statia Cartier Fortuna, linia 302
Mijloace transport
aprox.
1478
m
Campului
Mijloace transport
aprox.
1540
m
Școală
Scoala PROINGENIO
Învățământ
aprox.
432
m
Watoto
Învățământ
aprox.
991
m
Gradinita cu program prelungit Butterfly
Învățământ
aprox.
1963
m
ŞCOALA CU CLASELE I-VIII NR. 144
Învățământ
aprox.
1980
m
Recreere
Shop&Go
Supermarket/Mall
aprox.
953
m
Parc
Recreere
aprox.
1019
m
Mega Image
Supermarket/Mall
aprox.
1176
m
Restaurantul Latin
Restaurante
aprox.
1261
m
Abonează-te la newsletter să fii primul care primește cele mai noi recomandări de proprietăți și sfaturi de la experți.
Căutări similare
- Case individuale de vânzare în Bragadiru
- Case individuale de vânzare în Berceni
- Case individuale de vânzare în Corbeanca
- Case individuale de vânzare în Tunari
- Case individuale de vânzare în Voluntari
- Case individuale de vânzare în Otopeni
- Case individuale de vânzare în Domnești
- Case individuale de vânzare în Balotești
- Case individuale de vânzare în Pantelimon
- Case individuale de vânzare în Snagov
- Case individuale de vânzare în Popești-Leordeni
- Case individuale de vânzare în Vidra