Direct Dezvoltator/Predare Mai 2025/Credit

185.000 €

Bod, Judeţul Braşov

Nr. camere:
4
Suprafață utilă:
110 mp
Suprafață teren:
405 mp

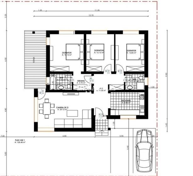
Descriere casă

Vă propunem spre vânzare casa single pe parter, situata in Cartierul Regina Maria ( intr-e Sanpetru si Bod ) Casa se preda la cheie cu toate finisajele incluse . Termen de predare estimat luna Mai 2025. Posibilitate sa va personalizati locuinta dupa bunul plac , se ofera anumite bugete pentru fiecare etapa ( gresie,faianta ,sanitare etc.) Detalii generale: Suprafață teren: 405 mp. Suprafață construită: 126 mp. Suprafață utilă: 110 mp. Compartimentare: Parter: Antreu, bucătărie decomandata, living cu acces la terasa din lateralul casei, si o baie de servici 3 dormitoare, dintre care cel matrimonial cu baie proprie. Acces în pod, care poate fi folosit ca spațiu de depozitare. Dotări: -Incalzire in pardoseala. -Casa se preda la cheie, cu finisaje incluse în preț ( posibilitatea de personalizare a interiorului). Izolație polisteren de 10 cm. Curte amenajată cu gazon. Curte pavată. Utilități: curent, put forat, fosa septica biodegradabila. În imediata apropiere se află: parc, grădiniță, școală, cafenele, cu acces facil la transportul public în orice direcție a orașului. Contact: - Alexandru Bolotovici
Citește mai mult Citește mai puțin
Zonă rurală

Detalii casă

ID anunț: 1076248 Actualizat în: 27 Decembrie 2025
Nr. camere: 4
Suprafață utilă: 110 mp
Suprafață utilă totală: 110 mp
Nr. băi: 2
Suprafață teren: 405 mp
An construcție: 2025

Istoric preț

Facilități

Utilități
Curent Apă Canalizare Gaze Cablu
Internet
Cablu
Amenajare străzi
Iluminat stradal Mijloace de transport în comun Asfaltate

Proprietăți similare

Casă individuală cu 3 camere cu Canalizare în Bod
171.300 €
Județul Brașov, Bod
3 camere
90 mp
700 mp teren
Casă individuală cu 3 camere cu Canalizare în Bod
179.000 €
Județul Brașov, Bod
3 camere
90 mp
789 mp teren
Casă individuală cu 4 camere cu Canalizare în Bod
185.000 €
Județul Brașov, Bod
4 camere
106 mp
405 mp teren
Casă individuală cu 5 camere cu Teren 520 Mp în Bod
187.000 €
Județul Brașov, Bod
5 camere
139 mp
520 mp teren
Casă individuală cu 4 camere cu Teren 620 Mp în Bod
195.000 €
Județul Brașov, Bod
4 camere
145 mp
620 mp teren
Casă individuală cu 4 camere cu Canalizare în Bod
187.500 €
Județul Brașov, Bod
4 camere
108 mp
505 mp teren
Casă individuală cu 6 camere cu Teren 300 Mp în Bod
189.800 €
Județul Brașov, Bod
6 camere
133,38 mp
300 mp teren
Casă individuală cu 4 camere cu Teren 405 Mp în Sânpetru
185.000 €
Județul Brașov, Sânpetru
4 camere
110 mp
405 mp teren
Casă individuală cu 4 camere cu Canalizare în Prejmer
183.000 €
Județul Brașov, Prejmer
4 camere
125 mp
608 mp teren

Abonează-te la newsletter să fii primul care primește cele mai noi recomandări de proprietăți și sfaturi de la experți.