BÂRNOVA - Casă individuală P+M+POD, 145 mp + 789 mp teren

109.000 €

Bârnova, Judeţul Iaşi

Nr. camere:
4
Suprafață utilă:
145 mp
Suprafață teren:
470 mp

Descriere casă

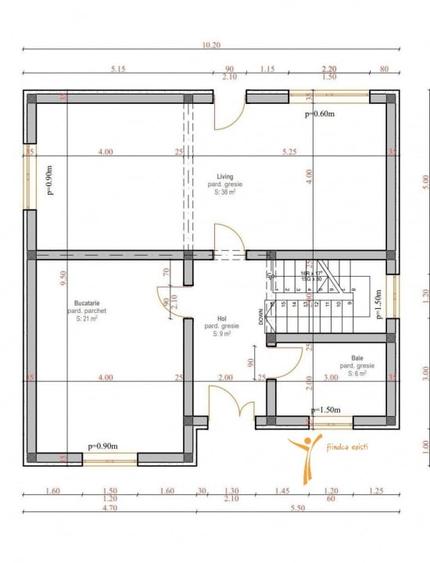
*** DESTINE IMOBILIARE vă prezintă spre vânzare: ** Casă individuală 4 camere – BÂRNOVA Preț: 109.000 € INFORMAȚII GENERALE: An construcție: 2021 Construită în regie proprie Regim de înălțime: P+M+Pod Suprafață utilă: 145 mp + balcon 4,70 mp Teren: 789 mp, cu tot cu cale de acces DETALII CONSTRUCȚIE: Fundație din beton armat Centuri și stâlpi din fier beton Zidărie din cărămidă Izolație exterioară cu polistiren expandat COMPARTIMENTARE: ~ PARTER: living generos, bucătărie, baie cu geam, hol ~ ETAJ: 3 dormitoare, baie cu geam, hol, balcon ~ POD pentru depozitare 🔹 Proprietatea se vinde LA GRI, oferind viitorului proprietar libertatea de a o amenaja și finisa exact după propriul gust și buget. ✔ Poziționată în planul 2 față de strada principală ✔ Cale de acces privată ✔ Zonă liniștită, aer curat și priveliște frumoasă 📍 La doar 2,5 km de Primăria Bârnova Ideală pentru o familie care își dorește liniște, spațiu generos și acces rapid către oraș. > Pentru vizionări sau informații suplimentare: -> - Atasiei Mihaela *Cod ofertă : P4780 🏡 Această proprietate poate fi achiziționată prin intermediul unui credit, iar noi suntem aici să vă facilităm acest proces. Datorită parteneriatelor noastre strânse cu cele mai importante instituții bancare, vă putem oferi asistență în obținerea finanțării potrivite pentru dumneavoastră. ✨Nu ezitați să ne contactați pentru mai multe informații despre opțiunile de finanțare disponibile! ✨
Citește mai mult Citește mai puțin
Nemobilat Curte Bine întreținut (Bună) Zonă rurală

Detalii casă

ID anunț: 3557099 Actualizat în: 30 Martie 2026
Nr. camere: 4
Suprafață utilă: 145 mp
Suprafață utilă totală: 145 mp
Nr. băi: 2
Suprafață teren: 470 mp
An construcție: 2021

Istoric preț

Facilități

Contorizare
Apometre Contor gaz
Mobilat
Nemobilat
Diverse
Scară interioară
Facilități imobil
Curte
Utilități
Curent Apă Gaze
Ușă intrare
PVC
Stare interior
Stare bună
Izolații termice
Exterior
Ferestre cu geam termopan
PVC
Amenajare străzi
Asfaltate Betonate Iluminat stradal

Puncte de interes

Recreere
parks
Parc
Recreere aprox. 1449 m
parks
Club Hamak
Recreere aprox. 1989 m

Proprietăți similare

Casă individuală cu 4 camere cu Teren 500 Mp în Bârnova
115.000 €
Județul Iași, Bârnova
4 camere
162 mp
500 mp teren
Casă individuală cu 3 camere cu Teren 300 Mp în Sud
99.000 €
Iași, Sud
3 camere
76 mp
300 mp teren
Casă individuală cu 4 camere cu Teren 500 Mp în Lunca Cetățuii
107.900 €
Județul Iași, Lunca Cetățuii
4 camere
157 mp
500 mp teren
Casă individuală cu 2 camere cu Teren 2093 Mp în Costuleni
105.000 €
Județul Iași, Costuleni
2 camere
74 mp
2.093 mp teren
Casă individuală cu 2 camere cu Canalizare în Dorobanț
110.000 €
Județul Iași, Dorobanț
2 camere
80 mp
500 mp teren
Casă individuală cu 4 camere cu Canalizare în Tomești
119.800 €
Iași, Tomești
4 camere
83 mp
419 mp teren
Casă individuală cu 4 camere cu Teren 1000 Mp în Dobrovăț
99.900 €
Județul Iași, Dobrovăț
4 camere
129 mp
1.000 mp teren
Casă individuală cu 2 camere cu Canalizare în Tătărași
110.000 €
Iași, Tătărași
2 camere
50 mp
383 mp teren
Casă individuală cu 3 camere cu Teren 500 Mp în Dumești
112.000 €
Județul Iași, Dumești
3 camere
100 mp
500 mp teren

Abonează-te la newsletter să fii primul care primește cele mai noi recomandări de proprietăți și sfaturi de la experți.