Casa 4 camere 117mp | 0 comision | Balotesti The 8 | 510 mp teren

191.500 €

Baloteşti, Judeţul Ilfov

Nr. camere:
4
Suprafață utilă:
117 mp
Suprafață teren:
510 mp

Descriere casă

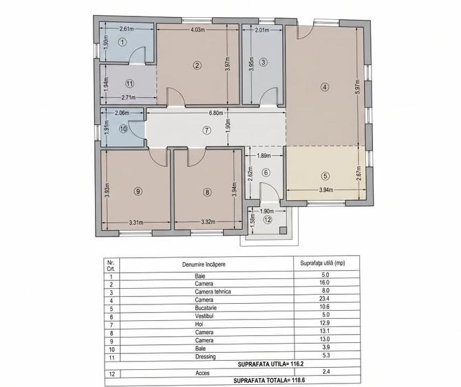
0 Comision. Persoana fizice, nu se adauga TVA. Va oferim spre achizitie fara comision o casa individuala noua, superba, cu finisaje si dotari de calitate in complexul rezidential The 8 din Balotesti. Casa are o suprafata de 117mp, beneficiaza de un teren de 510mp si include pachetul premium de finisaje, incluzand tamplarie cu geam tripan, izolatie de 15cm si altele. Asa cum v-am obisnuit: - toate ofertele Monga Imobiliare sunt fara comision din partea cumparatorului - pentru ca iubim transparenta, toate preturile afisate de Monga Imobiliare includ TVA (daca se aplica). Pretul afisat de noi este intotdeauna pretul final pe care il vei achita. Acceseaza Monga Imobiliare (Monga RO) pentru mai mai multe poze si pentru intreg portofoliul nostru de case si apartamente din Otopeni, Tunari, Balotesti, Corbeanca, Pipera si chiar nordul Bucurestiului. Punctele forte al acestei case sunt numeroase: suprafetele foarte generoase, finisajele de callitate, semineul, curtea mare si locatia intr-o zona cu acces rapid atat catre Pipera cat si catre Otopeni. Despre spatiu: Accesul se face intr-un hol spatios cu loc generos pentru haine. De aici ajungem in holul principal, ce comunica cu o camera tehnica, cu zona de living cu bucatarie deschisa (35mp open space) si cu zona pentru dormit. In zona de dormit avem un dormitor matrimonial cu dressing si baie, inca doua dormitoare si o baie. Camera tehnica contine centrala, si spatiu pentru masina de spalata, spatiu generos de depozitare, acces catre pod. In fata casei avem doua locuri de parcare. Alte detalii: - conectata la toate utilitatile (apa si canalizare sunt comune in complex cu posibilitate de conectare ulterioara la reteaua publica) - cenrala proprie Saunier Duval 24Kw cu incalzire in pardoseala, 10 circuite - cadre din beton și zidărie Porotherm; garanție dezvoltator pe toată durata de viață a construcției - placa de beton peste parter si pod circulabil pe toata suprafata, ideal pentru depozitare. izolatie de 10cm vata de sticla - izolatie 15cm la solicitarea speciala a proprietarilor (standardul in complex este de 10cm) - tamplarie tripan la solicitarea speciala a proprietarilor (standardul in complex este termopan simplu) - parchet SPC, gresie / faianta premium Complexul rezidential va ofera o comunitate linistita in care sa va bucurati impreuna cu familia. Detine iluminat public, drumuri de 9m latime, terenuri de sport, loc de joaca. Locatia permite acces rapid catre transport in comun, DN1, A3/A0, soseaua Pipera - Tunari Va asteptam la vizionare pentru a descoperi toate aceste detalii si multe altele ale acestei proprietati cu adevarat deosebite. Apeleaza cu incredere la Monga Imobiliare. Suntem alaturi de tine pana la finalizarea tranzactiei si te ajutam sa treci cu incredere si in cunostinta de cauza prin toti pasii necesari. Te putem ajuta in pregatirea documentelor, selectia notarului, obtinerea finantarii, si altele. Te asteptam sa ne contactezi.
Citește mai mult Citește mai puțin
Nemobilat Centrală proprie Bine întreținut (Bună)

Detalii casă

ID anunț: 3944435 Actualizat în: 26 Aprilie 2026
Nr. camere: 4
Suprafață utilă: 117 mp
Suprafață utilă totală: 117 mp
Nr. băi: 2
Suprafață teren: 510 mp
An construcție: 2015

Istoric preț

Facilități

Utilități
Curent Apă Canalizare Gaze
Sistem încălzire
Centrală proprie
Mobilat
Nemobilat
Stare interior
Stare bună
Amenajare străzi
Asfaltate

Proprietăți similare

Casă individuală cu 4 camere cu Canalizare în Balotești
175.000 €
Județul Ilfov, Balotești
4 camere
111 mp
400 mp teren
Casă individuală cu 4 camere cu Canalizare în Balotești
193.300 €
Județul Ilfov, Balotești
4 camere
115 mp
510 mp teren
Casă individuală cu 4 camere cu Canalizare în Balotești
202.000 € + TVA
Județul Ilfov, Balotești
4 camere
112 mp
540 mp teren
Casă individuală cu 5 camere cu Canalizare în Balotești
179.000 €
Județul Ilfov, Balotești
5 camere
170 mp
200 mp teren
Casă individuală cu 3 camere cu Canalizare în Balotești
193.000 €
Județul Ilfov, Balotești
3 camere
105 mp
396 mp teren
Casă individuală cu 3 camere cu Canalizare în Balotești
195.000 €
Județul Ilfov, Balotești
3 camere
150 mp
500 mp teren
Casă individuală cu 5 camere cu Canalizare în Balotești
189.000 € + TVA
Județul Ilfov, Balotești
5 camere
129 mp
350 mp teren
Casă individuală cu 5 camere cu Canalizare în Balotești
210.000 €
Județul Ilfov, Balotești
5 camere
184 mp
563 mp teren
Casă individuală cu 4 camere cu Canalizare în Balotești
195.000 €
Județul Ilfov, Balotești
4 camere
150 mp
500 mp teren

Abonează-te la newsletter să fii primul care primește cele mai noi recomandări de proprietăți și sfaturi de la experți.