CASA LOW-E, independenta energetic, construim oriunde

159.000 €

Baciu, Judeţul Cluj

Nr. camere:
4
Suprafață utilă:
145 mp
Suprafață teren:
1 mp
Nr. niveluri:
1

Descriere casă

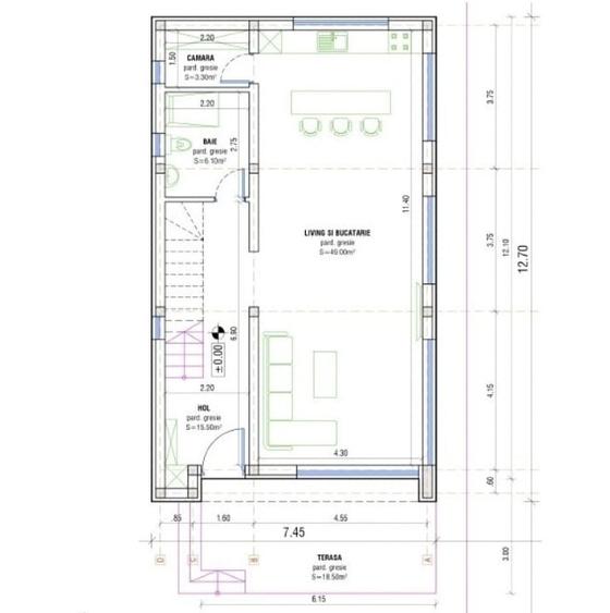
CASA LOW-E, INDEPENDENTA ENERGETIC ILUMINAT SI INCALZIRE, CONSTRUIM ORIUNDE! CU OPTIUNE DE PISCINA, SAUNA, SALA DE FITNESS, JACUZII, GARAJE! /case-de-lux-pasive/ CAUTAM SI COLABORARE CU AGENTII IMOBILIARE, OFERIM COMISION GENEROS! Construim aceste case oriunde in tara sau Europa unde aveti terenul disponibil (terenul neinclus in pret)! Modelul din anunt este doar una din modelele pe care putem realiza. Putem realiza si alte dimensiuni casa parter sau parter + 1 etaj pe acest design de arhitectura moderna, cubice cu acoperis plat si ferestre inalte. PREZENTARE SI PRET CASA DIN ANUNT: Casa cu un etaj 145 mp utili. Are marele avantaj ca peretii interiori nu au rol de suport deci se poate schimba configuratia camerelor oricand la cererea clientului, chiar si ulterior. Casa este complet functionala si finisata in acest pret, trebuie doar mobilata. Parter: hol de acces, living + bucatarie open space 49 mp (cu optiune de separare a bucatariei), baie cu cabina de dus 6 mp, camara 3 mp. Etaj: dormitor matrimonial 19.4 mp, dormitor 15 mp, dormitor 15 mp, baie cu cada 7.2 mp, dressing. PRET: 195.000 euro cu TVA PROMO: 159.000 euro cu TVA IN LIMITA A PRIMULUI CONTRACT PE 2026 PRETUL VA FI CEL PROMOTIONAL! CASA COMPLET FUNCTIONALA SI FINISATA, CONTINE MAI EXACT: Proiect de arhitectura a casei, proiect de rezistenta, proiect de instalatie termo sanitara si electrica. Transportul si montajul pe terenul beneficiarului. Fundatie, elevatie la fundatie, placa de beton parter, toate din beton armat. Structura de metal facuta din profile metalice, izolatie PIR 120mm grosime la pereti si 200mm grosime la acoperis. Finisaj exterior panouri imitatie lemn combinat cu gri-antracit si bej (sau alta culoare la alegere), suprafete acoperite cu panouri cu riflaje si profile mari riflaje 3D, sistem de iluminat ambiental pereti, cu elemente de piatra naturala sau cu plante naturale/artificiale curgatoare pe pereti, care schimba complet aspectul cladirii intr-o casa moderna. Cablaj facut pentru: sistem de 4-5 camere video IP in colturile exterioare ale casei, interfon, videointerfon la poarta. Sistem de alarma si antiincendiu. Sistem de smart home (automatizare si gestionare casa, de la distanta). Usa de intrare model si culoare la alegerea clientului, de calitate superioara si design modern Ferestre cu tamplarie PVC Rehau Artevo Fipro Hightech cu garantie 5 ani (gama de profile top care respecta standardul de case pasive) inalte de 2.4 metrii (fara glaf interior - design modern). Glafuri exterioare de ferestre profesionale de aluminiu. Acoperis plat cu atic continu pe toate cele 4 laturi care confera un aspect deosebit si modern, hidroizolat cu material EPDM, cu garantie de 30 de ani si sistem pluvial ascuns. Prize si intrerupatoare de calitate, instalatie electrica completa. Instalatie sanitara si termica. Pompa de caldura tip aer-apa cu functie de incalzire-racire, clasa energetica A+++ (cea mai eficienta). Sistem de incalzire in padoseala pe parter si etaj. Scara interioara finisata cu trepte de lemn si iluminate cu led. Finisare interior cu 2 straturi de rigips Usi interioare, parchet sau gresie de calitate in camere. In baie faianta, gresie tip lastre mari de la Kronospan gama RockoTiles (moderne - fara rosturi) si obiecte sanitare, mobilier de baie incluse. Terasa finisata cu material lemn-plastic compozit (WPC) sau placi ceramice RAKO (brand Cesarom) OPTIUNE suplimentare izolatie la standard LOW-E: Panouri PIR pereti de 200mm si acoperis 300mm grosime. PRET 9.000 euro cu TVA. OPTIUNE finisaj exterior cu decorativa clasica sau imitatie de caramida aparenta: Daca vrei sa arate pe exterior exact ca o casa clasica. PRET 6.000 euro cu TVA. OPTIUNE finisaj exterior cu fatada ventilata si acoperire cu placi Alucobond sau HPL: Nu necesita reparatie in timp, cu garantie 30 de ani, la alegerea clientului dintr-o gama foarte larga de culori si texturi. Solutie mult peste decortiva clasica, nu degeaba cladirile cum ar fi hotelurile de lux sau institutii ori banci, se finiseaza astfel pe exterior chiar daca costurile lor sunt mult mai mari. Incadramente ferestre. PRET cu alucobond 13.000 euro, cu HPL 16.000 euro cu TVA. OPTIUNI posibile cu pret la cerere: Balcoane etaj. Alte terase langa casa sau in curte acoperite cu pergola bioclimatica motorizata. Jaluzele exterioare cu sistem motorizat (sus jos si reglajul rotatiei unghiului lamelelor) Sistem de ventilatie mecanica cu recuperarea caldurii pentru standardul LOW-E de la Passive House Institut. Sistem de panouri fotovoltaice si baterii pentru independenta energetica. Optiune WELNESS cu piscina, si modul care contine jacuzzi, sauna si sala fitness. Garaj termoizolat sau copertina masini. Suplimentare izolatie si componente pentru atingerea standardului de casa pasiva. CE NU CONTINE: Terenul, gardul, amenajarea curtii si gradinii, autorizatia de constructie, retea apa canal electric.
Citește mai mult Citește mai puțin
Nemobilat

Detalii casă

ID anunț: 3823131 Actualizat în: 13 Martie 2026
Nr. camere: 4
Suprafață utilă: 145 mp
Suprafață utilă totală: 145 mp
Nr. băi: 2
Suprafață teren: 1 mp
An construcție: 2026
Regim înălțime: P+1E

Istoric preț

Facilități

Utilități
Apă Canalizare
Mobilat
Nemobilat

Puncte de interes

Mijloace transport
transport
Statia Intermediara, Linia 31B
Mijloace transport aprox. 259 m
transport
Baciu Triaj Hm
Mijloace transport aprox. 479 m
transport
Regina
Mijloace transport aprox. 576 m
transport
Statia Blocuri, Linia 31B
Mijloace transport aprox. 618 m
Școală
education
Gradinita Baciu
Învățământ aprox. 1239 m
education
Grăd.Neghiniţăstr. 2
Învățământ aprox. 1400 m
education
Scoala Gimnaziala Speciala Transilvania
Învățământ aprox. 1459 m
education
Scoala cu Clasele I-VIII Baciu
Învățământ aprox. 1496 m
Recreere
restaurants
Regal
Restaurante aprox. 203 m
parks
Parc copii
Recreere aprox. 952 m
parks
Teren sportiv
Recreere aprox. 993 m
shopping
Lidl
Supermarket/Mall aprox. 1829 m

Proprietăți similare

Casă individuală cu 5 camere cu Teren 1123 Mp în Baciu
145.000 €
Județul Cluj, Baciu
5 camere
184 mp
1.123 mp teren
Casă individuală cu 4 camere cu Teren 600 Mp în Baciu
170.000 € + TVA
Județul Cluj, Baciu
4 camere
120 mp
600 mp teren
Casă individuală cu 4 camere cu Canalizare în Florești
148.000 €
Județul Cluj, Florești
4 camere
80 mp
90 mp teren
Casă individuală cu 5 camere cu Teren 500 Mp în Mărișel
159.500 €
Județul Cluj, Mărișel
5 camere
153 mp
500 mp teren
Casă individuală cu 3 camere cu Teren 300 Mp în Exterior Est
156.000 €
Cluj-Napoca, Exterior Est
3 camere
60 mp
300 mp teren
Casă individuală cu 5 camere cu Canalizare în Câmpenești
153.000 €
Județul Cluj, Câmpenești
5 camere
119 mp
452 mp teren
Casă individuală cu 4 camere cu Teren 240 Mp în Suceagu
159.000 €
Județul Cluj, Suceagu
4 camere
150 mp
240 mp teren
Casă individuală cu 4 camere cu Canalizare în Chinteni
149.990 €
Județul Cluj, Chinteni
4 camere
127 mp
665 mp teren
Casă individuală cu 10 camere cu Canalizare în Mociu
158.200 €
Județul Cluj, Mociu
10 camere
324 mp
1.320 mp teren

Abonează-te la newsletter să fii primul care primește cele mai noi recomandări de proprietăți și sfaturi de la experți.