Casa | 8 Camere | Central | Hostel | Inchiriere *Calea Plevnei*

3.250 € / lună

Calea Plevnei, Bucureşti

Nr. camere:
8
Suprafață utilă:
203 mp
Suprafață teren:
160 mp

Descriere casă

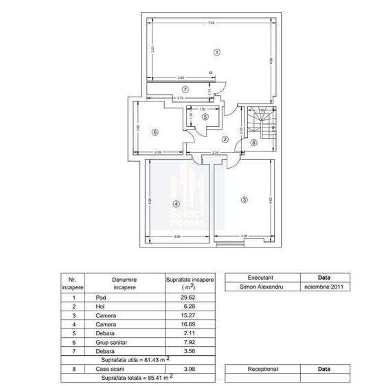
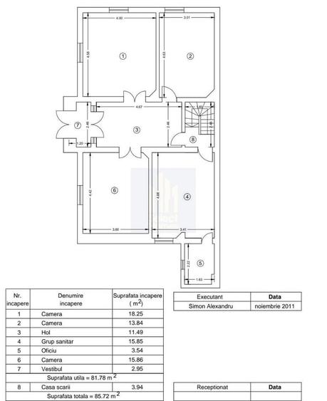
SelectHomes va prezinta spre inchiriere o casa cu 8 camere, dispusa pe 3 niveluri D+P+M, pozitionata in zona Calea Plevnei. Casa a functionat ca si hostel si se poate inchiria impreuna cu cele 32 de paturi suprapuse sau fara, in functie de nevoile chiriasului. Are o suprafata utila de 203mp si este compartimentata astfel: - demisol : bucatarie, camera de luat masa - parter : hol, 3 dormitoare, baie, vestibul, oficiu - mansarda: hol, 3 dormitoare, baie, doua spatii de depozitare Dusurile, chiuvetele si toaletele din cele doua bai sunt in spatii separate, astfel incat 12 persoane le pot folosi concomitent. Fiecare dormitor este echipat cu aer conditionat. Incalzirea se realizeaza prin calorifere si centrala termica proprie, de asemenea exista si un boiler pe gaz/electric pentru asigurarea apei calde a dusurilor si chiuvetelor. Bucatarie este complet utilata. Chiria este de 3250 euro/luna iar conditiile de inchiriere sunt o luna chirie + doua luni garantie, cu contract pe minim 2 ani. Va stam la dispozitie pentru stabilirea unei vizionari sau orice detaliu aditional.
Citește mai mult Citește mai puțin
Parțial mobilat Curte Aer condiționat Calorifere Bine întreținut (Bună)

Detalii casă

ID anunț: 3871859 Actualizat în: 20 Martie 2026
Nr. camere: 8
Suprafață utilă: 203 mp
Suprafață utilă totală: 203 mp
Nr. băi: 2
Suprafață teren: 160 mp
Front stradal: 3 m
An construcție: 1930

Istoric preț

Facilități

Pereți
Faianță Var
Podele
Gresie Parchet
Ușă intrare
PVC Parchet Metal
Uși interior
PVC Celulare
Stare interior
Stare bună
Ferestre cu geam termopan
PVC
Contorizare
Apometre Contor gaz
Bucătărie
Mobilată Utilată
Mobilat
Parțial mobilat
Electrocasnice
Aragaz Frigider Hotă TV
Diverse
Scară interioară
Alte spații utile
WC Serviciu
Facilități imobil
Curte
Utilități
Curent Apă Canalizare Gaze Aragaz / Plită Frigider TV Cablu
Sistem încălzire
Calorifere
Internet
Cablu
Climatizare
Aer condiționat
Amenajare străzi
Iluminat stradal Mijloace de transport în comun Asfaltate

Puncte de interes

Mijloace transport
transport
Statia Gara Basarab, linia 105,178,635
Mijloace transport aprox. 175 m
transport
Statia Fluviului, linia 105,133,178
Mijloace transport aprox. 212 m
transport
Gara Bucuresti Nord
Mijloace transport aprox. 232 m
transport
Statie Gara Basarab 133, 178, 282, 105, 123, 162, 780
Mijloace transport aprox. 279 m
Școală
education
Scoala Gimnaziala Uruguay
Învățământ aprox. 75 m
education
Gradinita Dreams World
Învățământ aprox. 177 m
education
Gradinita Zum-zum
Învățământ aprox. 243 m
education
Institutul Medico-Militar
Învățământ aprox. 329 m
Recreere
shopping
Kaufland
Supermarket/Mall aprox. 194 m
parks
Parculet
Recreere aprox. 327 m
restaurants
Subway Gara de Nord
Restaurante aprox. 391 m
shopping
IDM
Supermarket/Mall aprox. 397 m

Proprietăți similare

Casă individuală cu 5 camere cu Canalizare în Cișmigiu
2.950 € / lună
București, Cișmigiu
5 camere
310 mp
933 mp teren
Casă individuală cu 6 camere cu Canalizare în P-ța Victoriei
3.450 € / lună
București, P-ța Victoriei
6 camere
290 mp
400 mp teren
Casă individuală cu 6 camere cu Canalizare în P-ța Victoriei
3.000 € / lună
București, P-ța Victoriei
6 camere
200 mp
400 mp teren
Casă individuală cu 6 camere cu Canalizare în Cișmigiu
3.000 € / lună
București, Cișmigiu
6 camere
150 mp
200 mp teren
Casă individuală cu 5 camere cu Teren 170 Mp în Romană
3.000 € / lună
București, Romană
5 camere
180 mp
170 mp teren
Casă individuală cu 9 camere cu Canalizare în Romană
3.000 € / lună
București, Romană
9 camere
323 mp
212 mp teren
Casă individuală cu 5 camere cu Canalizare în Aviației
3.250 € / lună
București, Aviației
5 camere
285 mp
300 mp teren
Casă individuală cu 4 camere cu Canalizare în Eminescu
3.000 € / lună
București, Eminescu
4 camere
347 mp
212 mp teren
Casă individuală cu 5 camere cu Canalizare în Domenii
2.999 € / lună
București, Domenii
5 camere
245 mp
500 mp teren

Abonează-te la newsletter să fii primul care primește cele mai noi recomandări de proprietăți și sfaturi de la experți.