În acest moment, nu se primesc cereri pentru această proprietate. Vă sugerăm să verificați alte oferte similare disponibile.
Vezi anunțuri
6 luni în urmă
Casa functiuni multiple pretabil pentru schimbare destinatie Cipariu
3.100 €
+ TVA
/ lună
Central, Cluj-Napoca
Descriere casă
Sesizează o problemă
Capitoliu Imobiliare va ofera spre inchiriere o casa individuala in zona semicentrala Piata Cipariu.
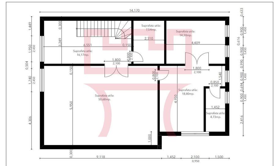
Dispusa D + P + E + M casa are o suprafata utila de 340mp si este compusa in mare parte precum se poate observa in schitele atasate, compartimentarile realizate ulterior de actualul chirias nu se regasesc pe schite. Aceste compartimentari se pot pastra sau nu, spatiul se poate recompartimenta dupa nevoile viitorului chirias.
In momentul de fata casa este inchiriata cu destinatie de birouri, dar proprietarul este dispus sa accepte o schimbare de destinatie, in cazul in care chiriasul solicita acest aspect si sa puna la dispozitie toate actele necesare.
Spatiul se preda zugravit si igienizat si este disponibil din 01.01.2026
Pozele sunt aranjate P + E + M + D
Citește mai mult
Citește mai puțin
Nemobilat
Grădină
Curte
Aer condiționat
Calorifere
Centrală proprie
Beci
Detalii casă
ID anunț: 1862719
Actualizat în: 16 Martie 2026
Nr. camere:
10
Suprafață utilă:
340 mp
Suprafață utilă totală:
340 mp
Nr. băi:
4
Suprafață teren:
300 mp
Front stradal:
20 m
An construcție:
2000
Regim înălțime:
P+2E
Istoric preț
Facilități
Contorizare
Apometre
Contor gaz
Mobilat
Nemobilat
Electrocasnice
Frigider
Diverse
Sistem de alarmă
Alte spații utile
Pivniță
Facilități imobil
Acoperiș
Curte
Grădină
Interfon
Utilități
Curent
Apă
Canalizare
Gaze
Cablu
Frigider
Sistem încălzire
Calorifere
Centrală proprie
Internet
Cablu
Wireless
Climatizare
Aer condiționat
Amenajare străzi
Iluminat stradal
Mijloace de transport în comun
Asfaltate
Izolații termice
Exterior
Puncte de interes
Mijloace transport
Statia P-ta Cipariu, Linia 21, 32, 32B, 33, 35, 46, 46B, 50, 3, 25, 40
Mijloace transport
aprox.
22
m
Statia Piata Cipariu, Liniile 33, 3
Mijloace transport
aprox.
168
m
Statia P-ta Cipariu 3, liniile 32, 32B, 21
Mijloace transport
aprox.
187
m
Opera
Mijloace transport
aprox.
278
m
Școală
Liceul de Coregrafie si Arta Dramatica Octavian Stroia
Învățământ
aprox.
154
m
Sapientia
Învățământ
aprox.
162
m
Sapientia Erdelyi Magyar Tudomanyegyetem
Învățământ
aprox.
199
m
Colegiul National George Cosbuc
Învățământ
aprox.
205
m
Recreere
Bistro Ancuţa
Restaurante
aprox.
46
m
Parc
Recreere
aprox.
102
m
Carrefour Express
Supermarket/Mall
aprox.
264
m
Minimarket
Supermarket/Mall
aprox.
620
m
Abonează-te la newsletter să fii primul care primește cele mai noi recomandări de proprietăți și sfaturi de la experți.
Căutări similare
- Case individuale de închiriat în Central
- Case individuale de închiriat în Cluj-Napoca
- Case individuale de închiriat în Zorilor
- Case individuale de închiriat în Andrei Mureșanu
- Case individuale de închiriat în Bună Ziua
- Case individuale de închiriat în Gruia
- Case individuale de închiriat în Europa
- Case individuale de închiriat în Făget
- Case individuale de închiriat în Grigorescu
- Case individuale de închiriat în Iris
- Case individuale de închiriat în Mănăștur
- Case individuale de închiriat în Dâmbul Rotund