1

Vila interbelică cu personalitate

740.000 €

Centrul Istoric, Bucureşti

Nr. camere:
9
Suprafață utilă:
400 mp
Suprafață teren:
212 mp
Nr. niveluri:
1

Descriere casă

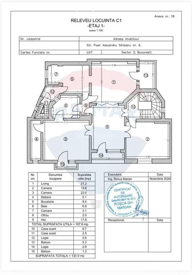
Pe una dintre cele mai frumoase străzi din zona centrală a Bucureștiului, Poet Alexandru Sihleanu, se află această vilă interbelică plină de caracter, o casă cu adevărat specială, construită într-o perioadă în care atenția la detaliu și proporțiile elegante erau o regulă, nu o excepție. Fațada impunătoare, cu arcade, balcoane sculptate și lucarne perfect încadrate în acoperișul de țiglă, creează o prezență arhitecturală rar întâlnită astăzi. Proprietatea este compusă din demisol locuibil, parter, etaj, pod mansardabil și pivniță. În total, casa oferă aproximativ 400 mp de spațiu util, incluzând un garaj și o mică curte interioară care adaugă un plus de intimitate. Parterul și etajul au fost renovate și se prezintă foarte bine, păstrând o parte din farmecul original. Demisolul este locuibil, dar necesita renovare și podul înalt oferă posibilitatea de a fi reamenajat complet, după preferințele viitorului proprietar, fiind spații generoase cu multiple posibilități. Compartimentare Parterul este destinat zonei de zi și include un living spațios, o bucătărie cu loc de dining, o cameră suplimentară și o baie. Spațiile sunt înalte, luminoase și au o atmosferă caldă, potrivită atât pentru locuință, cât și pentru activitate profesională sau birou. Etajul este organizat ca zonă de noapte, cu trei camere luminoase, o baie și un hol generos ce permite accesul către un balcon elegant. Demisolul, care este locuibil, poate fi transformat într-un spațiu separat: studio, cameră de hobby, birou, o zonă de relaxare sau spațiu de depozitare bine organizat. Necesită renovare, dar are potențial considerabil. Podul mansardabil oferă posibilitatea amenajării unei zone de 70–80 mp utile, fie ca spațiu deschis, fie împărțit în camere — ideal pentru un dormitor matrimonial spectaculos, un atelier de creație sau o mansardă complet independentă. Demisolul, parterul, etajul 1 si podul au fiecare acces separat si pot fi independente. Arhitectură și stil Casa păstrează toate elementele specifice arhitecturii interbelice: ferestre înalte, ancadramente sculptate manual, balcoane cu baluștri, arcade ample și un acoperiș spectaculos. Este o proprietate pentru cei care apreciază autenticitatea și proporțiile corecte. Zona Str Alexandru Sihleanu este liniștită, plină de case frumoase și vecini discreți, la câteva minute de Piață Unirii, Piața Romană, Universitate. Este o zonă sigură, elegantă și extrem de căutată atât pentru locuit, cât și pentru activități profesionale. Pentru cine este potrivită această casă? Pentru o familie care își dorește spațiu generos și o casă cu personalitate. Pentru investitori, datorită potențialului de renovare și valorificare. Pentru birouri premium, cabinete, ateliere creative sau business-uri boutique. Pentru regim hotelier, datorită amplasării centrale, compartimentării flexibile și farmecului arhitectural care se potrivește perfect unui concept de tip boutique-hotel, mini-hotel sau pensiune urbană cu design.
Citește mai mult Citește mai puțin
Aer condiționat

Detalii casă

ID anunț: 2797948 Actualizat în: 08 Februarie 2026
Nr. camere: 9
Suprafață utilă: 400 mp
Suprafață utilă totală: 400 mp
Suprafață teren: 212 mp
An construcție: 1928
Regim înălțime: P+1E

Istoric preț

Facilități

Amenajare străzi
Iluminat stradal
Facilități imobil
Acoperiș

Puncte de interes

Mijloace transport
transport
Alexandru Sihleanu
Mijloace transport aprox. 67 m
transport
Piata Sfantul Stefan
Mijloace transport aprox. 197 m
transport
Statia Sf. Stefan; Liniile: 14, 40, 55, 56
Mijloace transport aprox. 204 m
transport
Statia Piata Corneliu Coposu; Liniile: 14, 40, 55, 56
Mijloace transport aprox. 268 m
Școală
education
Grupul Scolar Industrial Unirea (en)
Învățământ aprox. 267 m
education
Grupul Scolar Industrial Unirea
Învățământ aprox. 272 m
education
Colegiul National "Matei Basarab"
Învățământ aprox. 281 m
education
Scoala cu clasele I-VIII, Nr. 73 Barbu Stefanescu Delavrancea
Învățământ aprox. 294 m
Recreere
restaurants
La Scena
Restaurante aprox. 163 m
parks
Parc
Recreere aprox. 207 m
shopping
Magazin Mixt
Supermarket/Mall aprox. 510 m
shopping
Mega Image - Hala Traian
Supermarket/Mall aprox. 516 m

Proprietăți similare

Casă cu 16 camere cu Teren 214 Mp în P-ța Victoriei
685.000 €
București, P-ța Victoriei
16 camere
340 mp
214 mp teren
Casă cu 5 camere cu Teren 359 Mp în Central
695.000 €
București, Central
5 camere
137 mp
359 mp teren
Casă cu 5 camere cu Teren 122 Mp în Romană
800.000 €
București, Romană
5 camere
122 mp
122 mp teren
Casă cu 9 camere cu Canalizare în P-ța Romană
695.000 €
București, P-ța Romană
9 camere
180 mp
50 mp teren
Casă cu 12 camere cu Teren 280 Mp în Victoriei
770.000 €
București, Victoriei
12 camere
490 mp
280 mp teren
Casă în Central
675.000 €
București, Central
450 mp
Casă cu 8 camere cu Canalizare în Plevnei
685.000 €
București, Plevnei
8 camere
190 mp
103 mp teren
Casă cu 9 camere cu Teren 150 Mp în Ultracentral
750.000 €
București, Ultracentral
9 camere
329 mp
150 mp teren
Casă cu 15 camere în Central
700.000 €
București, Central
15 camere
200 mp

Abonează-te la newsletter să fii primul care primește cele mai noi recomandări de proprietăți și sfaturi de la experți.