Casa P+1+Mansarda | Sector 5 | 110 mp+ curte 45 mp | Parcare inclusa

115.000 €

Central, Bucureşti

Nr. camere:
4
Suprafață utilă:
110 mp
Nr. niveluri:
1

Descriere casă

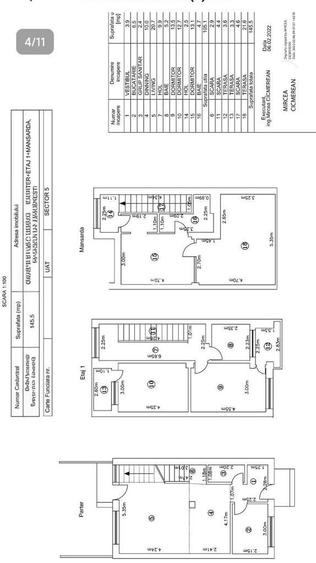
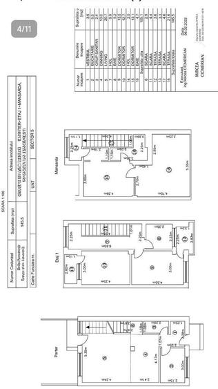
Casa moderna P+1+Mansarda, situata in Bucuresti, Sector 5 intr-un ansamblu rezidential de 7 case, ideal pentru familie.Detalii proprietate:Suprafata utila: 110 mpRegim de inaltime: P + 1 + MansardaCurte proprie: 45 mpLoc de parcare inclusAn constructie: dupa 2000Compartimentare:Parter:LivingBucatarieBaie de serviciuEtaj 1:2 dormitoare (fiecare cu balcon)BaieMansarda:DormitorBaieTerasa generoasa de 28 mpConstructie & Dotari:Construita conform normativelor (exista poze din stadiul fundatiei)Izolatie cu vata bazaltica 10 cmInstalatie sanitara PPR verde Made in ItalyPardoseli placate cu travertin, inclusiv in baieRacordata la electricitate si canalizareProprietatea ofera confort, compartimentare practica si o terasa ideala pentru relaxare, intr-o zona accesibila din Sector 5.Pentru mai multe detalii si programarea unei vizionari, contact telefonic.
Citește mai mult Citește mai puțin

Detalii casă

ID anunț: 268824 Actualizat în: 25 Martie 2026
Nr. camere: 4
Suprafață utilă: 110 mp
Suprafață utilă totală: 110 mp
Regim înălțime: P+1E

Istoric preț

Puncte de interes

Mijloace transport
transport
Statia Cimitirul Progresul, linia 220, N112 tramvai 4
Mijloace transport aprox. 476 m
transport
Cimitirul Progresul
Mijloace transport aprox. 476 m
transport
Autobaza Sudului
Mijloace transport aprox. 583 m
transport
Staţie RATB Anghel Nutu, linia 7, 25, 4
Mijloace transport aprox. 639 m
Școală
education
Scoala Nr. 134
Învățământ aprox. 796 m
education
ŞCOALA CU CLASELE I-VIII NR. 134
Învățământ aprox. 816 m
education
Scoala Generala Nr. 134
Învățământ aprox. 816 m
education
Gradinita nr 243 "Insir'te Margarite"
Învățământ aprox. 1044 m
Recreere
parks
Teren sportiv
Recreere aprox. 640 m
restaurants
Kebab Urfi's
Restaurante aprox. 665 m
shopping
AlexMar Supermarket
Supermarket/Mall aprox. 793 m
shopping
Alex Mar 1
Supermarket/Mall aprox. 793 m

Proprietăți similare

Casă cu 3 camere cu Teren 380 Mp în Central
125.000 €
București, Central
3 camere
82 mp
380 mp teren
Casă cu 5 camere în Central
125.000 €
București, Central
5 camere
160 mp
Casă cu 4 camere cu Teren 1000 Mp în Central
105.000 €
București, Central
4 camere
100 mp
1.000 mp teren
Casă cu 4 camere cu Teren 500 Mp în Central
119.999 €
București, Central
4 camere
110 mp
500 mp teren
Casă cu 4 camere cu Teren 1007 Mp în Central
120.000 €
București, Central
4 camere
130 mp
1.007 mp teren
Casă cu 4 camere cu Teren 225 Mp în Central
110.000 €
București, Central
4 camere
90 mp
225 mp teren
Casă cu 7 camere cu Teren 490 Mp în Central
120.000 €
București, Central
7 camere
243 mp
490 mp teren
Casă cu 2 camere în Central
115.000 €
București, Central
2 camere
67 mp
Casă cu 5 camere cu Teren 3500 Mp în Central
110.000 €
București, Central
5 camere
200 mp
3.500 mp teren

Abonează-te la newsletter să fii primul care primește cele mai noi recomandări de proprietăți și sfaturi de la experți.