• Agenție

Casa Noua! Vila Duplex Individuala 4 camere P+1E Tunari 240 000eur

240.000 €

Tunari, Județul Ilfov

Nr. camere:
4
Suprafață utilă:
132 mp
Suprafață teren:
300 mp
An construcție:
2022
Nr. niveluri:
1

Descriere

Raportează anunț

Casa Noua! Vila Duplex Individuala 4 camere P+1E Tunari 240 000eur

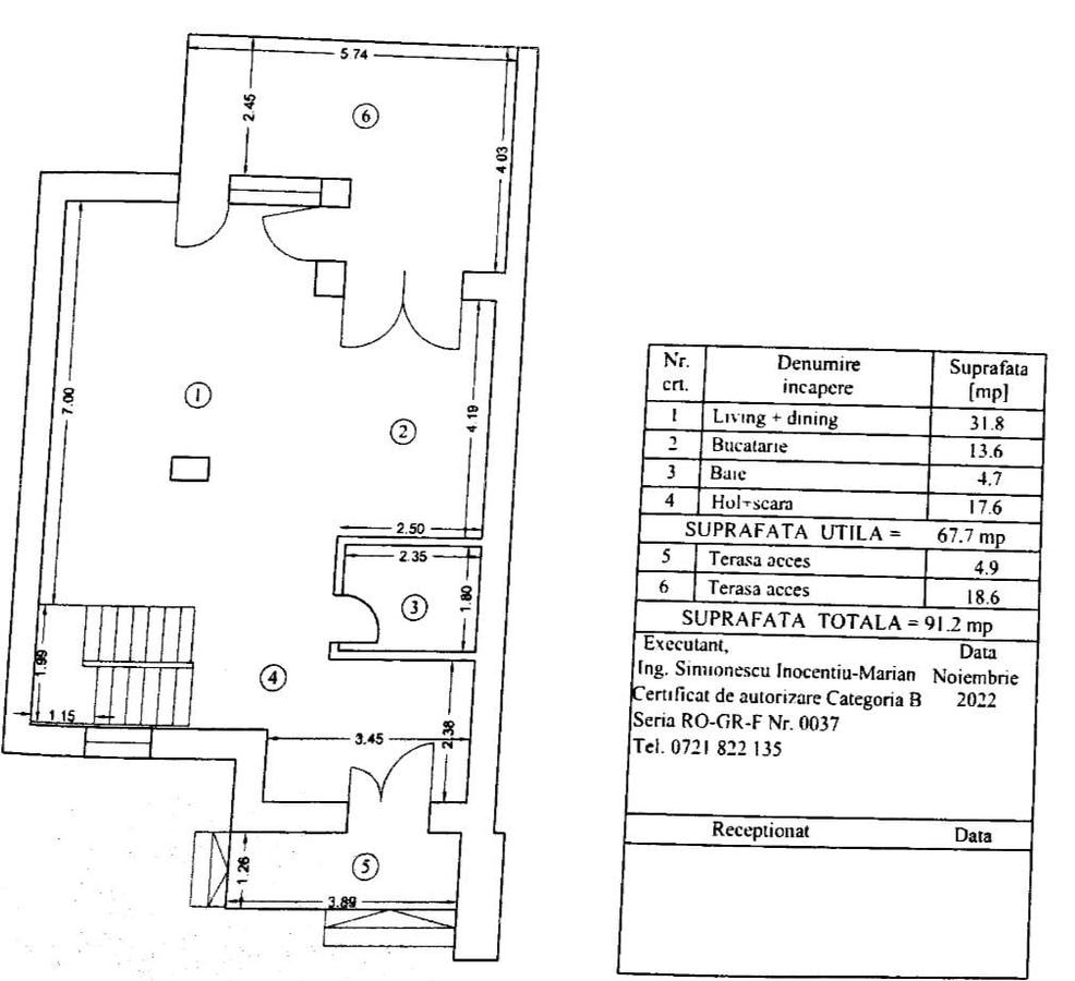
Vila Duplex Individuala P+1E (4 camere) =3 dormitoare An constructie 2022 Teren 300mp - Curte libera 215mp Amprenta 85mp=Sconstruita desfasurata totala 170mp =Sutila totala 132mp Parter =Sutila 67,7mp=Sconstruita 91,2mp Etaj =Sutila 64,3mp =Sconstruita 68,5mp Parter = Living - bucatarie- dining open space, terasa, baie, camera tehnica Etaj = 3 dormitoare ( 1 dormitor matrimonial + dressing+baie),2 dormitoare , baie Incalzire prin pardoseala centrala proprie =toate utilitatile Stadiu de alb interior = exterior finisat Structura caramida +armatura fier beton Loc parcare 2/3 Pret Vanzare 240 000eur
Citește mai mult Citește mai puțin

ID anunț: 10256885 Actualizat în: 02 Noiembrie 2025
Nr. camere: 4
Suprafață utilă: 132 mp
Suprafață utilă totală: 132 mp
Nr. băi: 3
Suprafață teren: 300 mp
An construcție: 2022
Regim înălțime: P+1E

Utilități

Utilități
Apă Gaze Canalizare

Abonează-te la newsletter să fii primul care primește cele mai noi recomandări de proprietăți și sfaturi de la experți.

Căutări similare