Casa 175 mp de renovat, teren 669 mp, toate utilitatile, zona Freidorf

150.000 €

Freidorf, Timişoara

Nr. camere:
4
Suprafață utilă:
124 mp

Descriere casă

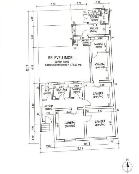
Blitz va propunem spre vanzare o proprietate cu un potential tehnic excelent, situata in Timisoara, cartierul Freidorf (Str. Lamaitei). Proprietatea este ideala pentru antreprenori, investitori sau companii care cauta sa dezvolte un sediu de firma, o clinica privata, spatii de birouri sau un proiect rezidential personalizat, beneficiind de avantajul unei structuri deja existente pe pozitie. Detalii Teren: Suprafata: 669 mp (extras de Carte Funciara distinct, liber de sarcini). Localizare: Acces direct din Str. Lamaitei, intr-o zona cu functiuni mixte, oferind vizibilitate si acces logistic facil. Curtea ofera spatiu suficient pentru amenajarea unei parcari private sau a unei zone de recreere. Detalii Constructie (Conform Releveu): Suprafata construita la sol: 175,63 mp. Structura: Fundatie de beton, zidarie din caramida si placa de beton. Structura robusta reprezinta un atu major pentru proiectul de reconfigurare. Compartimentare: 4 camere spatioase, antreu, bucatarie, spatii anexe (camara/atelier), baie. Stadiu: Imobilul necesita renovare capitala. Cumparatorul are libertatea de a decoperta si reamenaja complet interiorul si exteriorul la standardele actuale. Avantajul strategic este detinerea unei amprente masive deja autorizate, economisind timp pretios in birocratia obtinerii unei noi autorizatii de construire de o asemenea anvergura. Utilitati: Toate bransamentele sunt active si pe pozitie Curent electric, Gaz, Apa curenta, Canalizare (imobilul este dotat cu centrala termica proprie). Pret de listare: 110.000 EUR (Negociabil) Nota: Pentru investitorii care au nevoie de o suprafata exterioara extinsa pentru logistica sau parcare aditionala, parcela de teren intravilan alaturata (in suprafata de 658 mp) este de asemenea disponibila la vanzare, putand fi achizitionata separat la pretul de 65.000 EUR (Negociabil). Pentru o discutie tehnica aplicata pe planuri, cifre de reconversie si pentru programarea unei vizionari, nu ezitati sa ne contactati. Cod oferta / ID BLITZ: P169132
Citește mai mult Citește mai puțin

Detalii casă

ID anunț: 4162140 Actualizat în: 20 Aprilie 2026
Nr. camere: 4
Suprafață utilă: 124 mp
Suprafață utilă totală: 124 mp

Istoric preț

Puncte de interes

Mijloace transport
transport
Statie Pacii E7
Mijloace transport aprox. 87 m
transport
Statie Vaslui E7
Mijloace transport aprox. 382 m
transport
Statie Virgil Simionescu E7
Mijloace transport aprox. 401 m
transport
Statie Liceul Auto E7 si M36 (en)
Mijloace transport aprox. 718 m
Școală
education
Gradinita Program Normal Nr. 15
Învățământ aprox. 338 m
education
Kinderhaus Minissa
Învățământ aprox. 701 m
education
LICEU TEHNOLOGIC INDUSTRIAL TRANSPORTURI AUTO
Învățământ aprox. 771 m
education
Liceul Industrial Auto
Învățământ aprox. 771 m
Recreere
parks
Parcul Petofi Sandor
Recreere aprox. 676 m
restaurants
La Renaissance
Restaurante aprox. 740 m
shopping
Centrul Comercial Dallas
Supermarket/Mall aprox. 974 m
shopping
Carrefour
Supermarket/Mall aprox. 1045 m

Proprietăți similare

Casă cu 4 camere cu Teren 658 Mp în Freidorf
150.000 €
Timișoara, Freidorf
4 camere
124 mp
658 mp teren
Casă cu 4 camere în Freidorf
150.000 €
Timișoara, Freidorf
4 camere
115 mp
Casă cu 4 camere în Freidorf
160.000 €
Timișoara, Freidorf
4 camere
121 mp
Casă cu 5 camere cu Canalizare în Ciarda Roșie
155.000 €
Timișoara, Ciarda Roșie
5 camere
98 mp
110 mp teren
Casă cu 4 camere în Exterior Vest
135.000 €
Timișoara, Exterior Vest
4 camere
160 mp
Casă cu 4 camere cu Teren 120 Mp în Iosefin
160.000 €
Timișoara, Iosefin
4 camere
102 mp
120 mp teren
Casă cu 3 camere cu Canalizare în Șagului
165.000 €
Timișoara, Șagului
3 camere
80 mp
350 mp teren
Casă cu 2 camere în Ciarda Roșie
149.900 €
Timișoara, Ciarda Roșie
2 camere
51 mp
Casă cu 3 camere cu Canalizare în Calea Urseni
164.990 €
Timișoara, Calea Urseni
3 camere
80 mp
150 mp teren

Abonează-te la newsletter să fii primul care primește cele mai noi recomandări de proprietăți și sfaturi de la experți.