Duplex cu Perete Dublu, Proiect Modern

€ 134.900

Est, Timişoara

Nr. camere:
4
Suprafață utilă:
110 mp

Descriere

Raportează anunț

Duplex cu Perete Dublu, Proiect Modern

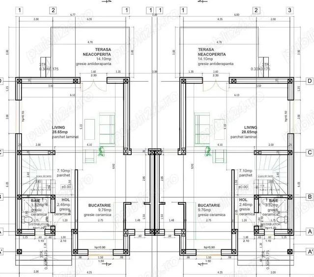
Propritar, vand duplex. Se vinde la ALB ( fara gresie,faian?a,parchet ?i corpuri sanitare in bai) - Duplex cu perete dublu ,cu regim de inaltime P + 1, finalizat in Decembrie 2025 - suprafata construita utila de 140, 110 mp plus terasa de 15mp. - teren de 350 mp, cu front stradal de 11m. - detalii constructive : ziduri exterioare si interioare din caramida porotherm, termoizolata exterior, acoperis tip Terasa - compartimentare: parter : hol acces, bucatarie, loc de luat masa, camera de zi, baie, terasa, Etaj :3 camere, baie,.balcon - detalii AMENAJARE interioara : ferestre cu tamplarie PVC si geam Tripan, usa PVC la intrare, usi interioare noi, vopsea lavabila, incalzire Pardosea jos iar la etaj calorifere - CENTRALA termica PROPRIE Detalii suplimentare : teren imprejmuit, poarta acces auto si poarta acces pietonal, - dispune de toate utilitatile (apa, gaz, canalizare, curent), drumul de acces fiind asfaltat cablu tv, internet fibra Detalii pret : Pretul solicitat de proprietar este de 134.900Eur, negociabil LA Alb ( fara gresie faian?a,parchet ?i corpuri sanitare in bai) Se accepta si varianta de achizitionare prin intermediul unui credit bancar. Vecina in partea de N cu Dumbravita , partea de est cu Timisoara fiind una din cele mai vechi asezari din Banat, comuna se afla la 8 km de intrarea in oras , in partea de N-V fiind aliatul cetatii Timisoara inca de la inceput. In ultimii ani ca fiecare localitate periurbana populatia este in ascensiune mai accentuat in ultimul an. Utilitatiile nu au intraziat sa apara iar comuna se mandreste cu toate utilitatiile mai putin canalizarea care este montata in o parte mare din sat urmand si racordarea. Complex sportiv, restaurante, cabinete medicale , veterinare si accesul relativ rapid in oras sunt plusurile cu care se mandreste comuna momentan. ID anun? : 1763047296
Citește mai mult Citește mai puțin
ID anunț: 2731246 Actualizat în: 28 Decembrie 2025
Nr. camere: 4
Suprafață utilă: 110 mp
Suprafață utilă totală: 110 mp
An construcție: 2025

Istoric preț

Proprietăți similare

Casă cu 3 camere cu Canalizare în Calea Urseni
€ 147.900
Timișoara, Calea Urseni
3 camere
76 mp
200 mp teren
Casă cu 3 camere cu Teren 326 Mp în Calea Urseni
€ 132.000
Timișoara, Calea Urseni
3 camere
110 mp
326 mp teren
Casă cu 4 camere în Dorobanților
€ 135.000
Timișoara, Dorobanților
4 camere
70 mp
Casă cu 3 camere cu Teren 282 Mp în Central
€ 139.000
Timișoara, Central
3 camere
84 mp
282 mp teren
Casă cu 3 camere în Central
€ 145.000
Timișoara, Central
3 camere
106 mp
Casă cu 3 camere în Central
€ 129.000
Timișoara, Central
3 camere
91 mp
Casă cu 3 camere în Girocului
€ 139.000
Timișoara, Girocului
3 camere
76 mp
Casă cu Teren 564 Mp în Girocului
€ 145.000
Timișoara, Girocului
80 mp
564 mp teren
Casă cu 2 camere cu Teren 564 Mp în Girocului
€ 145.000
Timișoara, Girocului
2 camere
80 mp
564 mp teren

Abonează-te la newsletter să fii primul care primește cele mai noi recomandări de proprietăți și sfaturi de la experți.