TVA0%,PROPRIETAR,Duplex 5 camere,perete despartitor dublu

€ 147.990

Central, Timişoara

Nr. camere:
5
Suprafață utilă:
114 mp

Descriere

Raportează anunț

TVA0%,PROPRIETAR,Duplex 5 camere,perete despartitor dublu

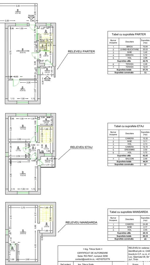
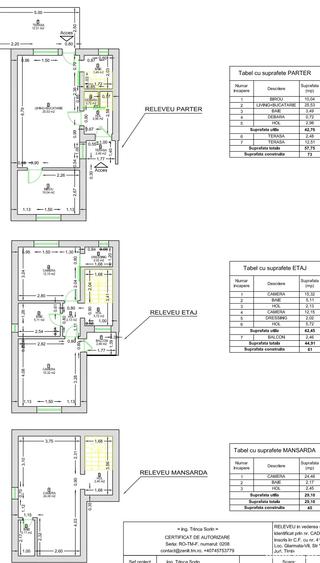
ULTIMA JUMATATE DISPONIBILA ! Duplex cu 5 camere situat langa Padurea Verde(apar?ine de Ghiroda) la 2km distanta fata de Muzeul Satului Bana?ean. perete departitor dublu casele sunt lipite prin casa scarii . DIRECT DE LA PROPRIETAR - NU SE PLATESTE TVA SAU COMISION! Pre? la alb 148.000cu centrala incalzire pe propan) Pre? la alb 153.000(pompa de caldura Hyundai 8kw) * Posibilitate asistenta finisare la cheie(mai necesita 7000 euro investi?ie pana la cheie,necesita u?i , pardoseli ?i utilare bai ) Vand jumatate de duplex(semi-independent energetic) , despar?it prin casa scarii-perete dublu+izolatie(25cm caramida +10izolatie+25cm caramida) -253mp teren cu loc liber mare in spatele casei. -izolatie fa?ada polistiren 15cm eps 100 -izolatie pod 25cm +15 cm -izolatie extrudat 5cm sub placa parter +5cm extrudat sub incalzire in pardoseala -geamuri Salamander 8 camere ?i geam 3 sticle (4 anotimpuri) -usa intrare metalica izolata cu vata minerala -tigla bramac (30 de ani garantie) -2 locuri de parcare in curte+3 locuri in fata casei -gard din placi de beton (20 de ani garantie) -foraj apa de mare adancime (80m adancime) -curent trifazat cu priza pentru incarcare ma?ini electrice -posibilitate de bucatarie inchisa in locul biroului (?evile de apa ?i scurgerile+prize trase ?i in birou) -3 bai (cate una pe fiecare nivel) -prize ?i intrerupatoare montate -gazon ?i pomi?ori planta?i de un an Parter: living+bucatarie , birou (bucatarie inchisa), baie cu dus, terasa 14 mp, hol+ casa scarii , debara la intrare, terasa 14 mp Etaj: dormitor cu balcon , dormitor cu dressing , baie cu cada, hol+ casa scarii Pod: baie de serviciu + o camera de 25mp ID anun?
Citește mai mult Citește mai puțin
ID anunț: 654524 Actualizat în: 06 Noiembrie 2025
Nr. camere: 5
Suprafață utilă: 114 mp
Suprafață utilă totală: 114 mp

Istoric preț

Proprietăți similare

Casă cu 3 camere cu Teren 282 Mp în Central
€ 139.000
Timișoara, Central
3 camere
84 mp
282 mp teren
Casă cu 4 camere în Central
€ 155.000
Timișoara, Central
4 camere
105 mp
Casă cu 3 camere cu Teren 320 Mp în Central
€ 153.000
Timișoara, Central
3 camere
73 mp
320 mp teren
Casă cu 4 camere cu Teren 297 Mp în Central
€ 160.000
Timișoara, Central
4 camere
95 mp
297 mp teren
Casă cu 4 camere cu Teren 217 Mp în Central
€ 160.000
Timișoara, Central
4 camere
100 mp
217 mp teren
Casă cu 6 camere în Central
€ 140.000
Timișoara, Central
6 camere
220 mp
Casă cu 3 camere în Central
€ 145.000
Timișoara, Central
3 camere
106 mp
Casă cu 4 camere în Central
€ 140.000
Timișoara, Central
4 camere
130 mp
Casă cu 3 camere în Central
€ 159.900
Timișoara, Central
3 camere
98 mp

Abonează-te la newsletter să fii primul care primește cele mai noi recomandări de proprietăți și sfaturi de la experți.