Casa noua 3 dormitoare | 102 mp utili | Teren 372 mp | Westfield Arad

149.500 €

Central, Timişoara

Nr. camere:
4
Suprafață utilă:
102 mp
Suprafață teren:
372 mp

Descriere casă

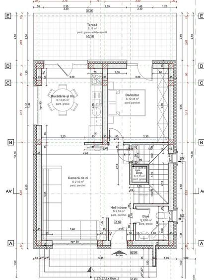
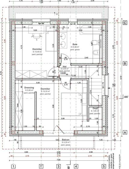
Iti doresti o casa noua, construita exact pentru tine, fara compromisuri?Aceasta locuinta din cartierul Westfield iti ofera combinatia ideala intre confort, functionalitate si realizeaza pe comanda si este gata in aproximativ 3 luni, ceea ce inseamna ca ai control si flexibilitate in proces.Compartimentare inteligenta:3 dormitoare, dintre care unul cu dressing2 baiLiving spatios cu zona de luat masaBucatarieTerasa perfecta pentru relaxareSuprafata utila: 102 mpParcela teren: 372 mpStadiul de predare al casei este dupa cum urmeaza: exteriorul complet finalizat, cu structurata si caramida aparaenta conform plan, iar interiorul are instalatiile sanitare, electrice si termice realizate, pardoseala este la nivel de sapa, iar peretii la nivel de este gandita pentru un stil de viata modern, cu spatii bine organizate si luminoase, ideale pentru o familie.Situata in cartierul Westfield zona linistita, in dezvoltare, cu acces facil catre oras.Pret: 149.500 euro TVA inclusPentru mai multe detalii sau vizionare, nu ezita sa ma contactezi.
Citește mai mult Citește mai puțin

Detalii casă

ID anunț: 3896264 Actualizat în: 19 Martie 2026
Nr. camere: 4
Suprafață utilă: 102 mp
Suprafață utilă totală: 102 mp
Suprafață teren: 372 mp
An construcție: 2026

Istoric preț

Puncte de interes

Mijloace transport
transport
Facultatea de Electrotehnica
Mijloace transport aprox. 76 m
transport
Statie Universitate Politehnica E8
Mijloace transport aprox. 99 m
transport
Statie Andrei Saguna E7, T19, E3
Mijloace transport aprox. 157 m
transport
Bd. Mihai Viteazu
Mijloace transport aprox. 177 m
Școală
education
UPT Electro
Învățământ aprox. 64 m
education
Universitatea Politehnica Timisoara - Electro
Învățământ aprox. 65 m
education
Corpul C (en)
Învățământ aprox. 66 m
education
Facultatea de Electrotehnica
Învățământ aprox. 66 m
Recreere
parks
Teren sportiv
Recreere aprox. 38 m
restaurants
Swiss House Club
Restaurante aprox. 74 m
shopping
Profi City
Supermarket/Mall aprox. 724 m
shopping
Materna-Modern
Supermarket/Mall aprox. 732 m

Proprietăți similare

Casă cu 30 camere cu Teren 30000 Mp în Central
135.000 €
Timișoara, Central
30 camere
2.000 mp
30.000 mp teren
Casă în Central
135.000 €
Timișoara, Central
500 mp
Casă cu 3 camere cu Teren 344 Mp în Central
138.990 €
Timișoara, Central
3 camere
92 mp
344 mp teren
Casă cu 4 camere cu Teren 213 Mp în Central
150.000 €
Timișoara, Central
4 camere
104 mp
213 mp teren
Casă cu 3 camere cu Teren 320 Mp în Central
153.000 €
Timișoara, Central
3 camere
73 mp
320 mp teren
Casă cu 4 camere cu Teren 367 Mp în Central
157.000 €
Timișoara, Central
4 camere
90 mp
367 mp teren
Casă cu 4 camere cu Teren 300 Mp în Central
150.000 €
Timișoara, Central
4 camere
86 mp
300 mp teren
Casă cu 3 camere cu Teren 380 Mp în Central
141.000 €
Timișoara, Central
3 camere
75 mp
380 mp teren
Casă cu 4 camere cu Teren 264 Mp în Central
139.000 €
Timișoara, Central
4 camere
129 mp
264 mp teren

Abonează-te la newsletter să fii primul care primește cele mai noi recomandări de proprietăți și sfaturi de la experți.