
23 ore în urmă
7
- Agenție
De vanzare apartamente noi tip SAD in zona Mosnita Veche
65.000 €
Central, Timișoara
Descriere
Raportează anunț
Sesizează o problemă
De vanzare apartamente noi tip SAD in zona Mosnita Veche
De vanzare apartamente noi tip SAD in zona Mosnita Veche
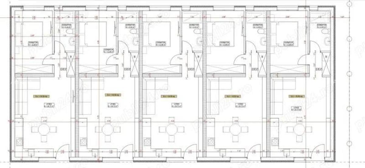
Apartamente de vanzare tip SAD (spatiu cu alta destinatie) in Mosnita Veche , situate intr o zona linistita la doar 800m de drumul principal. Constructia este compusa din 5 apartamente , fiecare cu intrare separata , curte proprie si pod. Suprafata utila este 44mp , compartimentare : living cu bucatarie open-space , dormitor , baie , hol , pod si curte aferenta. Constructia detine 2 locuri de parcare pentru fiecare apartament. Variante disponibile : 2 apartamente cu curte de 110mp la pretul de 65.000 euro , 2 apartamente cu curte de 160mp la pretul de 70.000 euro , 1 apartament cu curte de 250mp la pretul de 82.000 euro. Apartamentele se predau la cheie ( gresie , faianta , parchet , usi , obiecte sanitare incluse ) , toate utilitatile bransate ( gaz , curent , apa , iluminat stradal , fibra optica ) Apartamentele au intrare separata de la strada cu curte in partea din spate. Termen de finalizare maxim 2 luni. TEL : 07 arata numarul
Citește mai mult
Citește mai puțin
ID anunț: 9589593
Actualizat în: 17 Octombrie 2025
Nr. camere:
2
Suprafață utilă:
110 mp
Suprafață utilă totală:
110 mp
Proprietăți similare
Abonează-te la newsletter să fii primul care primește cele mai noi recomandări de proprietăți și sfaturi de la experți.
Căutări similare
- Case de vânzare în Central
- Case de vânzare în Timișoara
- Case de vânzare în Iosefin
- Case de vânzare în Fabric
- Case de vânzare în Lipovei
- Case de vânzare în Bălcescu
- Case de vânzare în Ciarda Roșie
- Case de vânzare în Complex Studențesc
- Case de vânzare în Elisabetin
- Case de vânzare în Odobescu
- Case de vânzare în Plopi
- Case de vânzare în Ronaț