Casa individuala, 4 camere, 200 mp, zona Braytim

530.000 €

Braytim, Timişoara

Nr. camere:
4
Suprafață utilă:
540 mp
Suprafață teren:
540 mp

Descriere casă

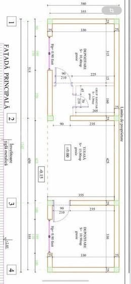
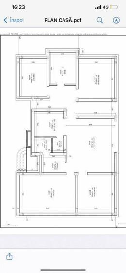
Blitz va ofera spre vanzare aceasta casa individuala in Braytim, la doar un minut de Lidl, Kaufland ?i Calea Girocului, oferind astfel o pozi?ie excelenta ?i acces rapid la facilita?i esen?iale, inclusiv gradini?e. Casa, aflata in curs de construc?ie, este o locuin?a pe parter, construita din caramida de 30 cm. Este dotata cu un sistem modern de incalzire ?i racire in pardoseala ?i tavan, precum ?i cu un sistem de ventila?ie in tavane. Ferestrele sunt echipate cu geamuri tripan ?i rulouri electrice cu telecomanda, toate dotate cu plase impotriva ?an?arilor. Casa este formata din doua corpuri de cladire: casa principala ?i o anexa care func?ioneaza ca un apartament separat. Terenul pe care se afla imobilul are o suprafa?a de 540 mp ?i este inregistrat pe numele proprietarului. Vanzarea se poate realiza in diferite etape, in func?ie de preferin?ele cumparatorului. Imobilul va dispune de un strat de polistiren grafitat de 15 cm, decorativa acrilica siliconata ?i forme la geamuri de calitate superioara. In prezent, casa principala se afla in stadiul de construc?ie la ro?u, iar anexa este disponibila la cheie, cu un pre? de pornire de la 420.000 euro. Aceasta locuin?a reprezinta o oportunitate excelenta pentru cei care doresc sa finalizeze construc?ia dupa propriul gust, intr-o zona foarte cautata ?i bine pozi?ionata din Timi?oara. Cod oferta / ID BLITZ: P137698 ID anun? : 1735285312
Citește mai mult Citește mai puțin
3 Parcări

Detalii casă

ID anunț: 256666 Actualizat în: 25 Martie 2026
Nr. camere: 4
Suprafață utilă: 540 mp
Suprafață utilă totală: 540 mp
Nr. băi: 2
Suprafață teren: 540 mp
An construcție: 2024
Nr. locuri parcare: 3

Istoric preț

Facilități

Utilități
Climă Apă Gaze

Proprietăți similare

Casă cu 4 camere cu Teren 540 Mp în Braytim
530.000 €
Timișoara, Braytim
4 camere
200 mp
540 mp teren
Casă cu 3 camere în Brâncoveanu
485.000 €
Timișoara, Brâncoveanu
3 camere
102 mp
Casă cu 1 camere cu Teren 2000 Mp în Central
520.000 €
Timișoara, Central
1 camere
500 mp
2.000 mp teren
Casă cu 5 camere cu Teren 600 Mp în Ciarda Roșie
570.000 €
Timișoara, Ciarda Roșie
5 camere
190 mp
600 mp teren
Casă cu 7 camere cu Teren 960 Mp în Spitalul Județean
580.000 €
Timișoara, Spitalul Județean
7 camere
257 mp
960 mp teren
Casă cu Teren 660 Mp în Lipovei
550.000 €
Timișoara, Lipovei
196 mp
660 mp teren
Casă cu 6 camere în Girocului
489.000 €
Timișoara, Girocului
6 camere
300 mp
Casă cu 2 camere cu Teren 376 Mp în Elisabetin
540.000 €
Timișoara, Elisabetin
2 camere
170 mp
376 mp teren
Casă cu 6 camere cu Canalizare în Bogdăneștilor
530.000 €
Timișoara, Bogdăneștilor
6 camere
240 mp
366 mp teren

Abonează-te la newsletter să fii primul care primește cele mai noi recomandări de proprietăți și sfaturi de la experți.