
Azi
6
- Agenție
Case noi in Livezeni locul unde lini?tea ?i confortul devin acasa
185.000 €
Livezeni, Târgu Mureș
Descriere
Raportează anunț
Sesizează o problemă
Case noi in Livezeni locul unde lini?tea ?i confortul devin acasa
Case noi in Livezeni locul unde lini?tea ?i confortul devin acasa
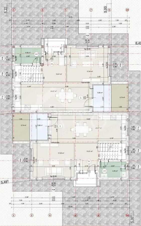
Case noi in Livezeni acolo unde lini?tea devine stil de via?a. La doar cateva minute de Targu Mure?, pe strada Paraului din comuna Livezeni, se ridica un mic col? de armonie un loc unde fiecare diminea?a incepe cu lumina, aer curat ?i lini?te. ?? Aici oferim doua tipuri de locuin?e moderne, construite cu grija pentru confortul ?i siguran?a familiei tale: TIP 1 Case cuplate P+E (165 mp construi?i) Parter: living generos, bucatarie, loc de luat masa, baie ?i terasa ? Etaj: 3 dormitoare, baie ?i dressing Intrarile caselor sunt amplasate pe strazi diferite, oferind intimitate totala fiecarei familii fiecare proprietate are propriul front de parcela. TIP 2 Case individuale, parter (140 mp construi?i) Compartimentare: living spa?ios, bucatarie cu camara, loc de luat masa, dressing, 3 dormitoare, 2 bai ?i terasa ? Ideala pentru familii care i?i doresc tot confortul la un singur nivel. Suprafa?a terenurilor: intre 465 mp ?i 612 mp Casele se predau la cheie, complet finisate, cu toate utilita?ile racordate. Detalii tehnice: ? Izola?ie exterioara cu polistiren de 15 cm ? Tamplarie PVC cu 3 foi de sticla ? Incalzire in pardoseala ? Finisaje de lux ? Curte imprejmuita ?i amenajata ? Strazi asfaltate ?i acces facil Pre?uri: Casa cuplata P+E 155.000 + TVA Casa parter 185.000 + TVA Loca?ie: Comuna Livezeni, strada Paraului Pentru detalii ?i vizionari:
0749 ****phone_0
Vezi tot numărul
ID anun?
Citește mai mult
Citește mai puțin
ID anunț: 8251637
Actualizat în: 10 Octombrie 2025
Nr. camere:
3
Suprafață utilă:
115 mp
Suprafață utilă totală:
115 mp
Suprafață teren:
500 mp
An construcție:
2025
Utilități
Utilități
Apă
Gaze
Proprietăți similare
Abonează-te la newsletter să fii primul care primește cele mai noi recomandări de proprietăți și sfaturi de la experți.
Căutări similare
- Case de vânzare în Livezeni
- Case de vânzare în Târgu Mureș
- Case de vânzare în Central
- Case de vânzare în Dâmbu Pietros
- Case de vânzare în Semicentral
- Case de vânzare în 7 Noiembrie
- Case de vânzare în Budai
- Case de vânzare în Cornișa
- Case de vânzare în Gheorghe Doja
- Case de vânzare în Mureșeni
- Case de vânzare în Platou
- Case de vânzare în Remetea