
9 luni în urmă
6
- Agenție
Ionut Paraschiv
91.804 €
Preț vechi
137.706 €
Actualizat pe: 26 Sep 2025
Casa si teren Stoenesti, ID: R2263337
91.804 €
Preț vechi
137.706 €
Stoenești, Județul Prahova
Descriere
Raportează anunț
Sesizează o problemă
Casa si teren Stoenesti, ID: R2263337
Casa si teren Stoenesti, ID: R2263337
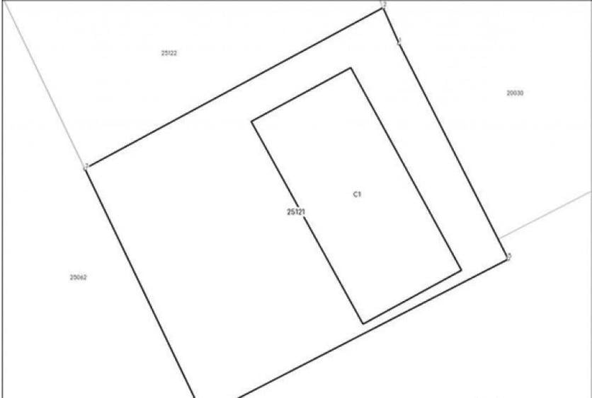
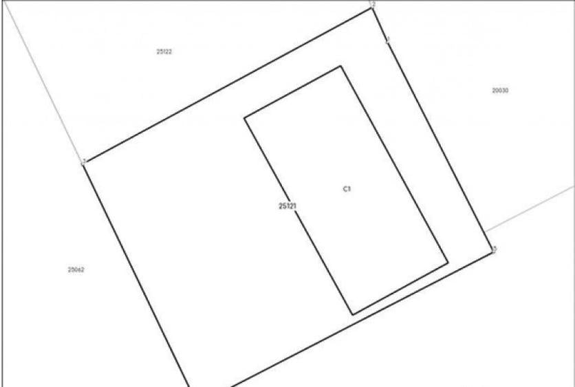
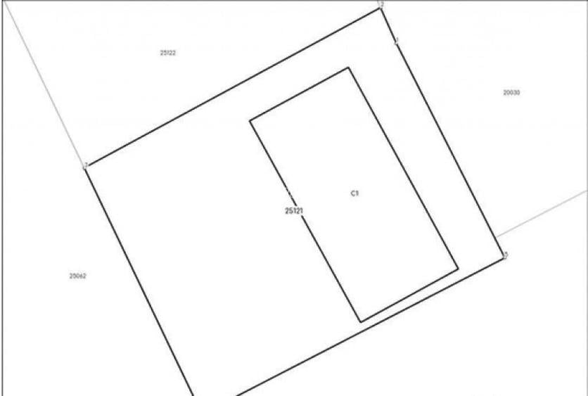
licitatie publica Loc. Aricestii Rahtivani, Sat Stoenesti, Nr. 257, Judetul Prahova Casa si teren Teren 200 mp Locuinta regim inaltime P SCD 55 mp. Fundatie Beton si zidarie din Caramida conform extrasului de carte funciara, dar in realitate este din BCA. Terenul imprejmuit-in partea din fata cu palci din beton si lateral cu gard din plasa. Accesul la propietate se face din strada Rahova, drum asfaltat.Constructia are tamplarie din PVC cu geam termopan,acoperis cu sarpanta din lemn si invelitoare din tabla simpla.Pod nelocuibil din placi OSB, avand urmatoarele utilitati-apa curenta, curent iar incalzirea se face cu soba pe lemne. Deschidere 13 ml. Anul PIF : necunoscut Numar niveluri imobil: mai mult de 12 Numar Bai: mai mult de 3 Posibilitate parcare: Nu Curent Apa Publicat prin HomeZZ.ro, vezi anuntul complet aici.
Citește mai mult
Citește mai puțin
ID anunț: 1830397
Actualizat în: 26 Septembrie 2025
Nr. camere:
3
Suprafață utilă:
45 mp
Suprafață utilă totală:
45 mp
Suprafață teren:
200 mp
An construcție:
1990
Istoric preț
Proprietăți similare
Abonează-te la newsletter să fii primul care primește cele mai noi recomandări de proprietăți și sfaturi de la experți.
Căutări similare
- Case de vânzare în Stoenești
- Case de vânzare în Ploiești
- Case de vânzare în Câmpina
- Case de vânzare în Bușteni
- Case de vânzare în Breaza
- Case de vânzare în Băicoi
- Case de vânzare în Strejnicu
- Case de vânzare în Măgurele
- Case de vânzare în Telega
- Case de vânzare în Vălenii de Munte
- Case de vânzare în Azuga
- Case de vânzare în Comarnic