1 lună în urmă
5
- Agenție
Duplex modern 125 mp Selimbar
250.000 €
Central, Sibiu
Descriere
Raportează anunț
Sesizează o problemă
Duplex modern 125 mp Selimbar
Duplex modern 125 mp Selimbar
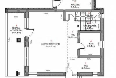
Duplex modern de 125 mp utili ?elimbar, zona in plina dezvoltare Smart Imobilare va ofera spre vanzare un duplex spa?ios ?i elegant, cu o suprafa?a utila de 125 mp, situat intr-o zona reziden?iala lini?tita ?i in continua dezvoltare din ?elimbar, cu acces facil catre toate punctele de interes ale Sibiului. Compartimentare moderna ?i func?ionala: Parter: living generos cu bucatarie open-space, baie ?i acces direct catre terasa din curte un spa?iu perfect pentru relaxare. Etaj 1: hol, dressing, baie mare, un dormitor cu acces la balcon ?i un al doilea dormitor luminos. Etaj 2: hol, dressing, dormitor matrimonial cu baie proprie ?i acces la o terasa de 18 mp, ideala pentru momentele de lini?te sau serile petrecute in aer liber. Stadiu de predare: Interior: la alb, cu centrala termica proprie ?i incalzire prin pardoseala; Exterior: la cheie, cu finisaje moderne ?i materiale de construc?ie de calitate superioara. Curte privata amenajata, cu doua locuri de parcare pavate cu dale. Imobilul face parte dintr-un ansamblu reziden?ial nou, amplasat intr-o zona aerisita, cu infrastructura in dezvoltare ?i acces rapid catre ora? locul ideal pentru o familie care i?i dore?te confort, spa?iu ?i calitate. Pentru mai multe detalii sau pentru a programa o vizionare precizati ID-ul anuntului: P18031 ID anun?
Citește mai mult
Citește mai puțin
ID anunț: 10359493
Actualizat în: 06 Noiembrie 2025
Nr. camere:
4
Suprafață utilă:
125 mp
Suprafață utilă totală:
125 mp
Nr. băi:
3
Suprafață teren:
200 mp
An construcție:
2025
Regim înălțime:
P+2E
Nr. locuri parcare:
2
Proprietăți similare
Abonează-te la newsletter să fii primul care primește cele mai noi recomandări de proprietăți și sfaturi de la experți.
Căutări similare
- Case de vânzare în Central
- Case de vânzare în Sibiu
- Apartamente de vânzare în Timișoara
- Apartamente de vânzare în Cluj-Napoca
- Apartamente de închiriat în Timișoara
- Apartamente de vânzare în Timișoara
- Apartamente de vânzare în Cluj-Napoca
- Apartamente de închiriat în Cluj-Napoca
- Garsoniere de închiriat în Timișoara
- Apartamente de vânzare în Iași
- Apartamente de vânzare în Brașov
- Apartamente de vânzare în Florești