Casa tip duplex I 3 camere I Curte I Panouri solare I Cristian

195.000 €

Central, Sibiu

Nr. camere:
3
Suprafață utilă:
103 mp
Suprafață teren:
479 mp

Descriere casă

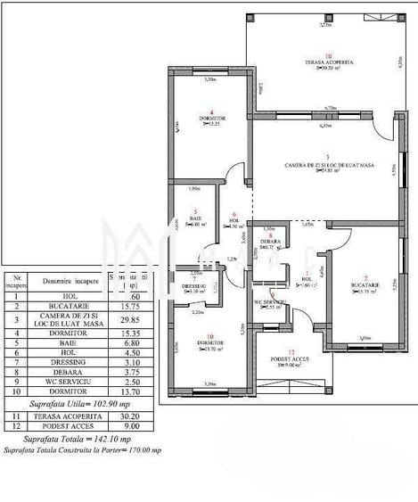
MAAC Imobiliare propune spre vanzare o parte a unei case tip duplex, construita si intabulata in 2025, amplasata intr-o zona linistita din comuna Cristian. Proprietatea dispune de un teren de 479 mp, o amprenta la sol de 142 mp, o suprafata utila de 103 mp, doua locuri de parcare si curte proprie, oferind un echilibru ideal intre confort si functionalitate. Locuinta este compartimentata eficient, cu un living generos prevazut cu zona de dining si acces pe terasa, bucatarie separata, doua dormitoare (unul dintre ele dotat cu dressing), baie principala, baie de serviciu, camera tehnica si hol de acces. De asemenea, podul este accesibil prin scara ascunsa si poate fi folosit ca spatiu suplimentar de depozitare. Constructia este realizata din caramida pe fundatie de beton izolata cu polistiren extrudat, peretii exteriori fiind termoizolati cu polistiren de 15 cm, iar tavanul cu spuma poliuretanica cu celula inchisa. Acoperisul este executat din cherestea cu folie anticondens si acoperit cu tigla Bramac gri antracit, completat de panouri solare. Tamplaria PVC cu 3 foi de sticla si peretele comun dublat contribuie la un nivel ridicat de izolare fonica si termica. Proprietatea este racordata la gaz, apa, canalizare si electricitate, avand instalatiile interioare finalizate, incalzire in pardoseala, precum si panouri solare cu baterii de stocare deja instalate. Construita conform noilor standarde, locuinta se incadreaza in clasa energetica A. Predarea este programata pentru mai 2026, in stadiul de exterior la cheie, iar interiorul poate fi livrat la alb sau la cheie, in functie de preferintele viitorului proprietar. Pentru mai multe detalii, contactati MAAC Imobiliare si specificati ID CP2937678
Citește mai mult Citește mai puțin

Detalii casă

ID anunț: 3615023 Actualizat în: 02 Aprilie 2026
Nr. camere: 3
Suprafață utilă: 103 mp
Suprafață utilă totală: 103 mp
Suprafață teren: 479 mp
An construcție: 2025

Istoric preț

Puncte de interes

Mijloace transport
transport
Barsei
Mijloace transport aprox. 131 m
transport
Hategului
Mijloace transport aprox. 142 m
transport
Biserica Strand
Mijloace transport aprox. 361 m
transport
Maramuresului
Mijloace transport aprox. 361 m
Școală
education
Scoala Nr. 1
Învățământ aprox. 160 m
education
Facultatea de Stiinte Agricole
Învățământ aprox. 1073 m
education
Scoala Gimnaziala Turnisor
Învățământ aprox. 1152 m
education
FasTracKids
Învățământ aprox. 1166 m
Recreere
parks
Parcul Strand
Recreere aprox. 399 m
shopping
Profi Strand
Supermarket/Mall aprox. 443 m
restaurants
Mai Coffe Lounge
Restaurante aprox. 706 m
shopping
Penny Market
Supermarket/Mall aprox. 793 m

Proprietăți similare

Casă cu 4 camere cu Teren 300 Mp în Central
212.000 €
Sibiu, Central
4 camere
120 mp
300 mp teren
Casă cu 6 camere cu Teren 305 Mp în Central
196.000 €
Sibiu, Central
6 camere
178 mp
305 mp teren
Casă cu 3 camere cu Teren 250 Mp în Central
200.000 €
Sibiu, Central
3 camere
136 mp
250 mp teren
Casă cu 5 camere în Central
210.000 €
Sibiu, Central
5 camere
945 mp
Casă cu 4 camere cu Teren 150 Mp în Central
180.000 €
Sibiu, Central
4 camere
81 mp
150 mp teren
Casă cu 4 camere cu Canalizare în Central
182.000 €
Sibiu, Central
4 camere
110 mp
Casă cu 4 camere decomandat în Central
197.900 €
Sibiu, Central
4 camere
100 mp
Casă cu Teren 150 Mp în Central
199.000 €
Sibiu, Central
124 mp
150 mp teren
Casă cu 2 camere cu Teren 329 Mp în Central
199.000 €
Sibiu, Central
2 camere
52 mp
329 mp teren

Abonează-te la newsletter să fii primul care primește cele mai noi recomandări de proprietăți și sfaturi de la experți.