Casa tip duplex cu garaj si deschidere la 2 strazi

229.000 €

Şelimbăr, Judeţul Sibiu

Nr. camere:
4
Suprafață utilă:
132 mp

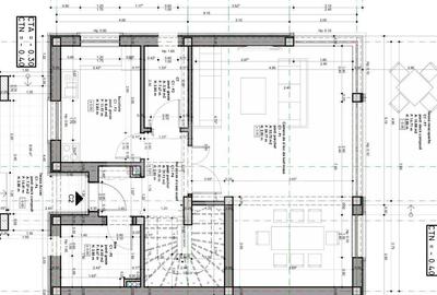
Descriere casă

Oferim spre vanzare, CU COMISION 0, un duplex spatios si bine intretinut, situat intr-o zona linistita de case din Selimbar zona Dracula, cu deschidere la doua strazi, ideal pentru familii sau pentru cei care cauta confort si intimitate aproape de oras. Caracteristici principale: Teren: 300 mp, cu aproximativ 200 mp curte libera Amprenta la sol: 80 mp Compartimentare: 4 camere luminoase, 2 bai, bucatarie complet utilata si 2 balcoane la etaj An constructie: 2008 Structura: caramida cu acoperis din tigla de beton Spatii suplimentare: Pod podit pe toata suprafata casei, cu fereastra (spatiu ideal de depozitare sau amenajare ulterioara) Filigorie perfecta pentru relaxare Garaj Dotari si utilitati: Toate utilitatile racordate: gaz, apa, canalizare, curent Centrala termica proprie pe gaz Se vinde mobilata si utilata (exceptand obiectele personale si cateva piese de mobilier) Avantaje: Zona rezidentiala linistita, cu trafic redus Camere generoase si functionale Suprafata utila mare Acces facil din doua strazi Curte ideala pentru relaxare Pret: 229.000 Euro - COMISION 0 Tel: (folosesti formularul de contact) - Gabriel
Citește mai mult Citește mai puțin
Mobilat Grădină Curte Calorifere Centrală proprie Beci Bine întreținut (Bună)

Detalii casă

ID anunț: 151615 Actualizat în: 22 Martie 2026
Nr. camere: 4
Suprafață utilă: 132 mp
Suprafață utilă totală: 132 mp

Istoric preț

Facilități

Pereți
Vopsea lavabilă Faianță
Podele
Parchet Gresie
Ușă intrare
Parchet PVC Lemn
Uși interior
PVC Lemn
Stare interior
Stare bună
Izolații termice
Exterior
Ferestre cu geam termopan
PVC Lemn
Contorizare
Apometre Contor gaz
Bucătărie
Mobilată Utilată
Mobilat
Mobilat
Alte spații utile
Pivniță Cramă Spațiu depozitare WC Serviciu Anexe Dependințe
Facilități imobil
Curte Grădină
Sistem încălzire
Centrală proprie Calorifere
Amenajare străzi
Asfaltate Iluminat stradal

Puncte de interes

Mijloace transport
transport
Statia Sibiu Grupa Selimbar
Mijloace transport aprox. 915 m

Proprietăți similare

Casă cu 4 camere cu Teren 176 Mp în Șelimbăr
220.000 €
Județul Sibiu, Șelimbăr
4 camere
120 mp
176 mp teren
Casă cu 4 camere în Șelimbăr
215.000 €
Județul Sibiu, Șelimbăr
4 camere
120 mp
Casă cu 4 camere în Șelimbăr
235.000 €
Județul Sibiu, Șelimbăr
4 camere
125 mp
Casă cu 4 camere cu Teren 130 Mp în Șelimbăr
220.000 €
Județul Sibiu, Șelimbăr
4 camere
120 mp
130 mp teren
Casă cu 4 camere cu Canalizare în Șelimbăr
241.000 €
Județul Sibiu, Șelimbăr
4 camere
120 mp
204 mp teren
Casă cu 5 camere cu Canalizare în Șelimbăr
215.000 €
Județul Sibiu, Șelimbăr
5 camere
160 mp
184 mp teren
Casă cu 4 camere în Șelimbăr
215.000 €
Județul Sibiu, Șelimbăr
4 camere
120 mp
Casă cu 4 camere în Șelimbăr
235.000 €
Județul Sibiu, Șelimbăr
4 camere
120 mp
Casă cu 4 camere în Șelimbăr
220.000 €
Județul Sibiu, Șelimbăr
4 camere
120 mp

Abonează-te la newsletter să fii primul care primește cele mai noi recomandări de proprietăți și sfaturi de la experți.