Vanzare vila deosebita D+P+1+M | Unirii- Piata Regina Maria |

400.000 €

Unirii, Bucureşti

Nr. camere:
8
Suprafață utilă:
219 mp
Suprafață teren:
100 mp
Nr. niveluri:
1

Descriere casă

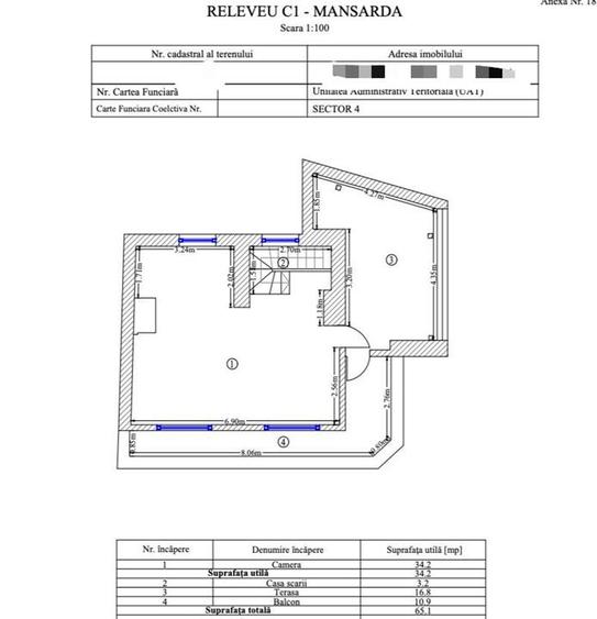
Într-un cartier istoric al Bucureștiului, aproape de Piața Regina Maria, această vilă cochetă își dezvăluie farmecul aparte, oferind un spațiu generos, bine compartimentat, potrivit atât pentru locuință, cât și pentru un sediu de firmă. Cu o suprafață utilă de 219 mp,iar totala 273 mp, imobilul îmbină eleganța arhitecturii clasice cu funcționalitatea modernă, fiind un loc unde confortul și rafinamentul se întâlnesc armonios. Parterul te întâmpină cu un living primitor, unde șemineul pe gaze adaugă o notă de căldură și rafinament. În completarea acestuia, două camere versatile pot fi folosite ca dormitoare, birouri sau spații de relaxare. Bucătăria este bine organizată, iar grupul sanitar și spațiul de depozitare adaugă un plus de funcționalitate. Tot la acest nivel, o mică curte de 28 mp oferă suficient spațiu pentru parcare sau pentru a crea un colț verde, unde să te bucuri de liniștea dimineților. La etaj, trei dormitoare luminoase își așteaptă noii proprietari, două dintre ele având acces către un balcon,respectiv logie, ideal pentru momente de relaxare. Mansarda locuibilă completează perfect atmosfera intimă a casei, cu terasa si balcon,fiind compartimentată în două camere, dintre care una este dotată cu un șemineu pe lemne, aducând un farmec aparte serilor petrecute acasă. Mezaninul dispune de o baie și un grup sanitar, în timp ce demisolul, compartimentat în patru camere, poate fi folosit pentru depozitare sau alte amenajări, în funcție de necesități. În fața casei, două locuri de parcare rezervate asigură un confort suplimentar într-o zonă în care astfel de facilități sunt greu de găsit. Pretul de vanzare este 400.000 EURO. !!Pentru serviciile de intermediere imobiliara, Agentia percepe un comision de: 3% din prețul de vanzare!! !!Vizionarile se fac doar în baza semnării în prealabil a Fisei de Vizionare.!!
Citește mai mult Citește mai puțin
Centrală proprie Bine întreținut (Bună)

Detalii casă

ID anunț: 115880 Actualizat în: 06 Februarie 2026
Nr. camere: 8
Suprafață utilă: 219 mp
Suprafață utilă totală: 219 mp
Nr. băi: 3
Suprafață teren: 100 mp
An construcție: 1946
Etaj: Etaj 1 / 1
Regim înălțime: P+1E

Istoric preț

Facilități

Pereți
Faianță Vopsea lavabilă
Podele
Parchet Gresie
Stare interior
Bună
Ferestre cu geam termopan
PVC
Contorizare
Apometre Contor gaz
Utilități
Apă Curent Gaze Canalizare
Sistem încălzire
Centrală proprie
Amenajare străzi
Asfaltate Iluminat stradal Mijloace de transport în comun

Puncte de interes

Mijloace transport
transport
Statia Autogara Filaret linii : 232, N107, 7, 47
Mijloace transport aprox. 221 m
transport
Statia Parcul Carol I, linia 232, 7, 23, 27, 47
Mijloace transport aprox. 230 m
transport
Autogara Filaret
Mijloace transport aprox. 262 m
transport
Autogara Filaret
Mijloace transport aprox. 270 m
Școală
education
Gradinita nr. 269
Învățământ aprox. 437 m
education
Academia Tehnica Militara
Învățământ aprox. 482 m
education
Gradinita nr. 224
Învățământ aprox. 485 m
education
Gradinita nr.224, "Vestitorii Primaverii"
Învățământ aprox. 496 m
Recreere
restaurants
IL CANTUCCIO
Restaurante aprox. 66 m
parks
Parc
Recreere aprox. 87 m
shopping
Succes
Supermarket/Mall aprox. 348 m
shopping
Shop & Go
Supermarket/Mall aprox. 362 m

Proprietăți similare

Casă cu 5 camere cu Teren 300 Mp în Decebal
385.000 €
București, Decebal
5 camere
260 mp
300 mp teren
Casă cu 3 camere cu Teren 150 Mp în Alba Iulia
380.000 €
București, Alba Iulia
3 camere
80 mp
150 mp teren
Casă cu 8 camere cu Canalizare în P-ța Unirii
424.000 €
București, P-ța Unirii
8 camere
296 mp
155 mp teren
Casă cu 4 camere cu Teren 251 Mp în Theodor Pallady
398.000 €
București, Theodor Pallady
4 camere
100 mp
251 mp teren
Casă cu 6 camere cu Canalizare în Industriilor
379.000 €
București, Industriilor
6 camere
198 mp
389 mp teren
Casă cu 4 camere cu Teren 225 Mp în Splaiul Unirii
390.000 €
București, Splaiul Unirii
4 camere
360 mp
225 mp teren
Casă cu 5 camere în Decebal
395.000 €
București, Decebal
5 camere
185 mp
Casă cu 10 camere cu Teren 93 Mp în P-ța Unirii
390.000 €
București, P-ța Unirii
10 camere
302 mp
93 mp teren
Casă cu 6 camere cu Teren 255 Mp în Titan
430.000 €
București, Titan
6 camere
225 mp
255 mp teren

Abonează-te la newsletter să fii primul care primește cele mai noi recomandări de proprietăți și sfaturi de la experți.